### Standout Features:
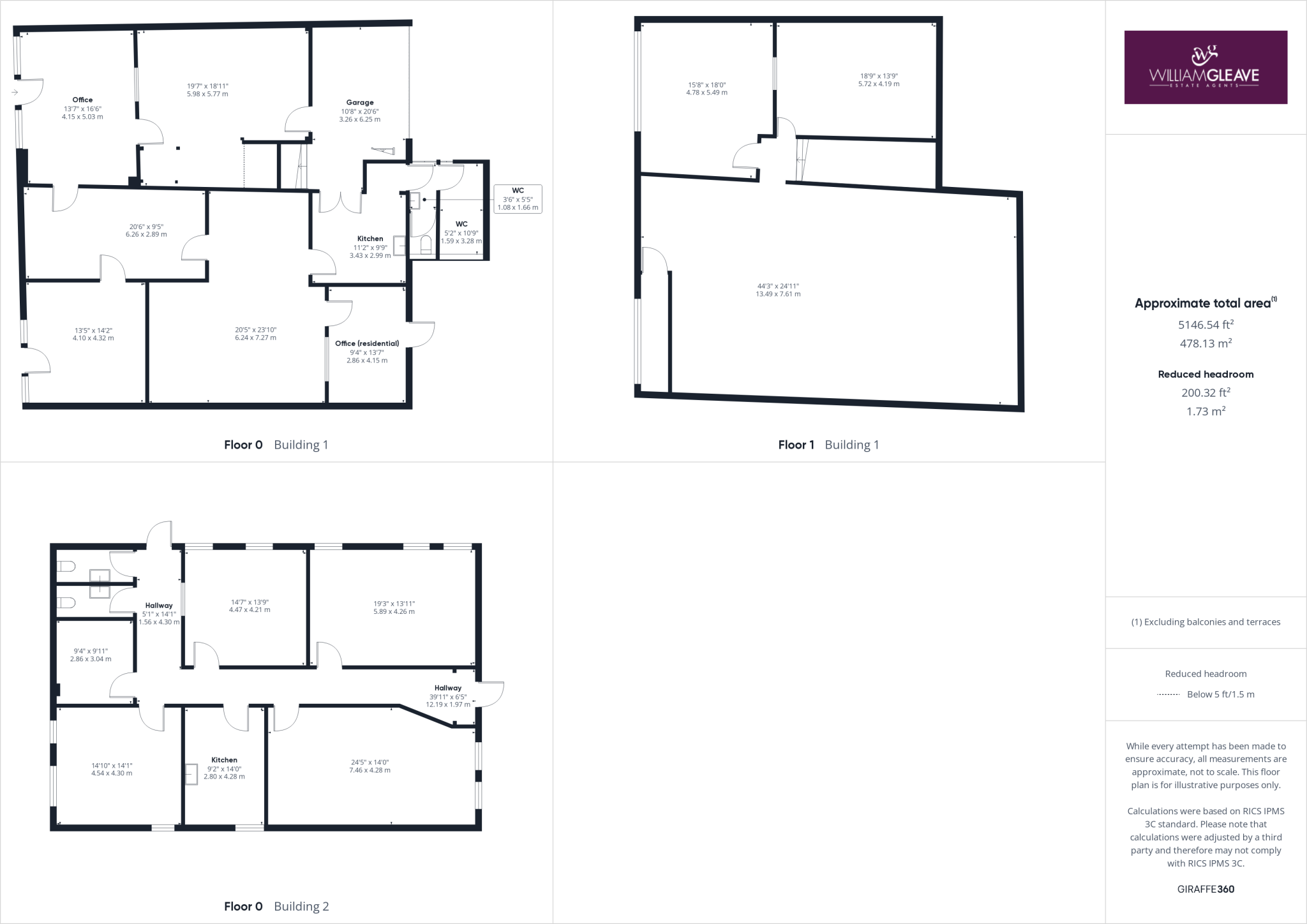
- **Spacious Commercial Property**: 5,146 sq ft of versatile space with high ceilings.
- **Character Building**: Grade II listed with unique industrial features.
- **Large Outdoor Areas**: Two sizable yards with gated entrances for accessibility.
- **Existing Facilities**: Includes office, bathroom, and kitchen amenities in a lockable cabin.
- **Renovation Potential**: Interior structure adaptable to suit various business needs.
- **Historical Significance**: Originally owned by British Rail, offering a unique backdrop for business.
- **Strong Connectivity**: Fast broadband speeds and average mobile signal.
### Summary Description:
Discover this expansive Grade II listed commercial property, offering 5,146 sq ft of versatile space perfect for a range of industrial or commercial uses. With its high ceilings and robust industrial character, this building combines history with functionality, ideal for businesses looking to make a mark. The property features two large yards with gated access, allowing for ample parking and storage, along with a lockable cabin equipped with essential office, bathroom, and kitchen facilities.
While the surrounding area is classified as having above-average crime rates and greater economic deprivation, the property holds significant potential for those seeking to establish or expand their business. Its prime location, coupled with fast broadband and a spacious layout, makes it a promising investment opportunity, especially for those looking to customize or renovate the space to fit their needs. This unique offering in a small town setting won't last long—seize the opportunity to transform this space into your vision!
Light industrial facility for sale in Design & Build , Tir Llwyd Enterprise Park, Kinmel Bay, Rhyl, Conwy, LL18 — POA • 1 bed • 1 bath
Commercial property for sale in Chester Road, Sandycroft, Chester, CH5 2QN, CH5 — £750,000 • 1 bed • 1 bath • 12489 ft²
Commercial property for sale in Wright Street, Wallasey, CH44 — £130,000 • 1 bed • 1 bath • 2425 ft²
Detached house for sale in Abergele Road, Old Colwyn, Colwyn Bay, LL29 — £485,000 • 1 bed • 1 bath • 2473 ft²
Light industrial facility for sale in Bromfield Industrial Estate, Mold, CH7 — £195,000 • 1 bed • 1 bath
Commercial property for sale in High Street, Denbigh, LL16 — £135,000 • 1 bed • 1 bath • 1902 ft²










































































