Large fenced yard with fast road links and refurbished office accommodation.
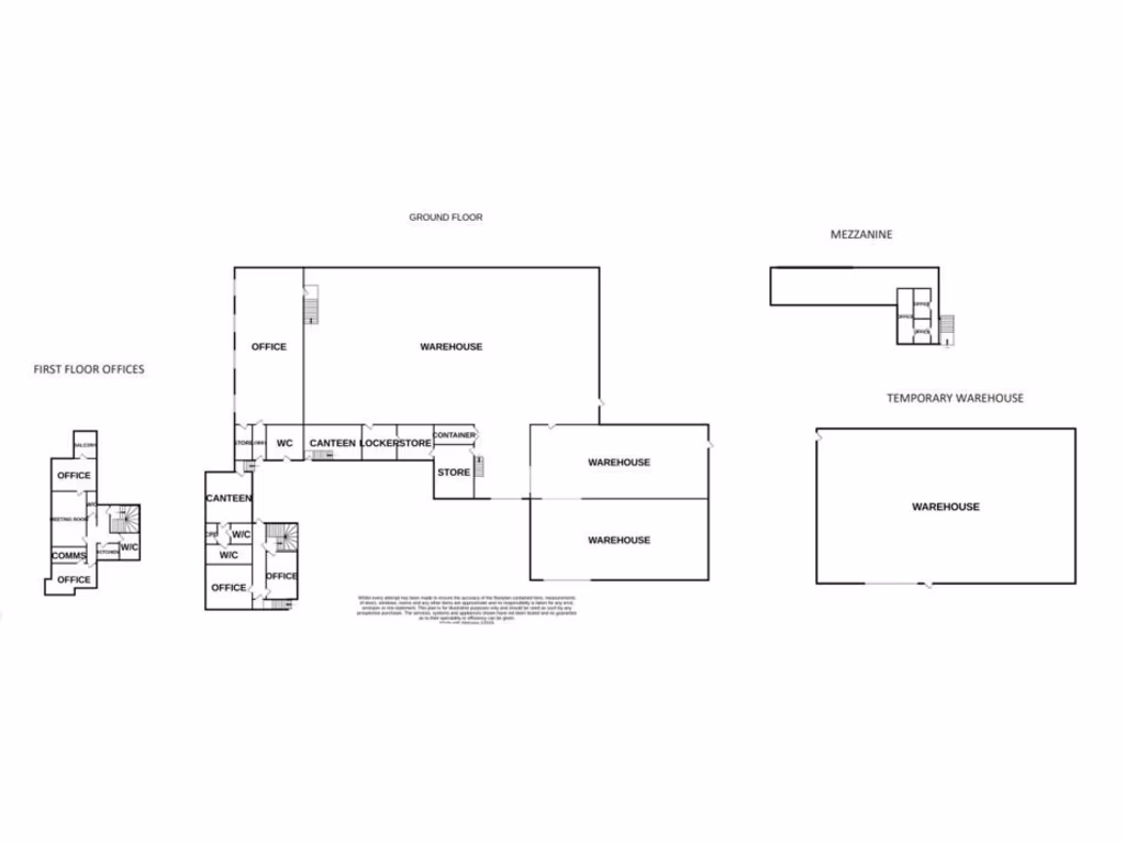
Detached four-bay steel-framed warehouse, 16,323 sq ft
A substantial detached light-industrial complex on approximately 1.689 acres, offering 22,837 sq ft of covered space including a four-bay steel portal-frame warehouse, mezzanine and newly refurbished offices. The fully surfaced, fenced and gated yard plus a canopied bay suit manufacturing, storage and distribution operations; good vehicular access connects quickly to the A137 and A14, with rail services to London from nearby stations.
The site includes a permitted temporary storage/workshop building (ref DC/23/00582) and practical welfare facilities – canteen, kitchen and WC. The premises benefit from an EPC C (73) rating and mains services are understood to be connected. VAT is payable on the price; the property will be available for occupation from November 2025.
Planning consent covers Class B2 (general industrial). Note the temporary building has restricted operating hours (07:00–17:00). Prospective buyers should verify rates liability and utility capacities with the relevant authorities, and allow time for vacant-possession completion. This asset suits operators seeking turnkey industrial capacity or investors targeting long-lease industrial income.
Warehouse for sale in Units A & B Baird Close, Hadleigh Road Industrial Estate, Ipswich, Suffolk, IP2 0UF, IP2 — £3,300,000 • 1 bed • 1 bath • 27633 ft²
Light industrial facility for sale in Port Plaza, Port Lane, Colchester, Essex, CO1 — POA • 1 bed • 1 bath • 15280 ft²
Light industrial facility for sale in Units A & B, Baird Close, Hadleigh Industrial Estate, Ipswich, IP2 0UF, IP2 — £3,300,000 • 1 bed • 1 bath • 27633 ft²
Warehouse for sale in Soprema House & 20 Freebournes Road, Freebournes Industrial Estate, Witham, Essex, CM8 — £11,000,000 • 1 bed • 1 bath
Land for sale in Plot A Factory Lane, CO11 — £6,270,000 • 1 bed • 1 bath
Land for sale in Plot B Factory Lane, CO11 — £2,976,000 • 1 bed • 1 bath


















































































