Spacious period house with 100ft south garden and major renovation potential.
Grade II listed late-Regency end terrace, c.1835
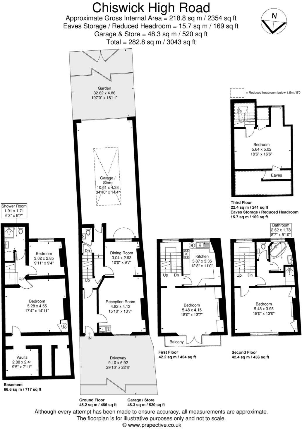
A rare Grade II late Regency end-of-terrace in Stamford Brook, this substantial house offers over 3,000 sq ft and a long south-facing garden of about 100ft — a genuine family-scale plot in Chiswick. The property retains tall ceilings, period proportions and a classic façade, giving scope to create bright family reception rooms and flexible bedroom layouts while enjoying excellent local schools and transport (Stamford Brook tube within walking distance).
The house is currently arranged as multiple dwellings and requires comprehensive reconfiguration and modernisation (subject to Listed Building consent). Services are traditional (mains gas boiler and radiators) and walls are solid brick with assumed no insulation, so buyers should allow for extensive upgrading, thermal improvement and rewiring where required.
Important practical points: the property is Grade II listed, which will restrict works and may complicate alteration or extension. There is only one bathroom recorded for four bedrooms in the current layout and some accommodation sits at lower-ground level, so a refurbishment programme would likely include re-planning bathrooms, bedrooms and circulation to suit a modern family.
For a buyer prepared to work within listed constraints, this is a high‑potential opportunity to restore a handsome period home in a very affluent Chiswick location, creating a comfortable, light-filled family house with a rare long south-facing garden and useful garage/storage space.
5 bedroom terraced house for sale in Chiswick Lane South, London, W4 — £2,500,000 • 5 bed • 1 bath • 2389 ft²
5 bedroom terraced house for sale in St. Peters Square, Hammersmith, London, W6 — £5,400,000 • 5 bed • 3 bath • 3758 ft²
6 bedroom detached house for sale in Stamford Brook Road, London, W6 — £3,300,000 • 6 bed • 1 bath • 3365 ft²
5 bedroom house for sale in Goldhawk Road, London W12 — £2,250,000 • 5 bed • 3 bath • 2293 ft²
6 bedroom detached house for sale in Roman Road, Chiswick, W4 — £5,500,000 • 6 bed • 3 bath • 4069 ft²
5 bedroom terraced house for sale in Black Lion Lane, St Peter's Square Conservation Area, Hammersmith, W6 — £1,750,000 • 5 bed • 2 bath • 1675 ft²


































































































