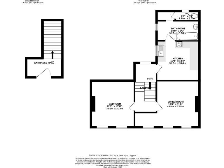
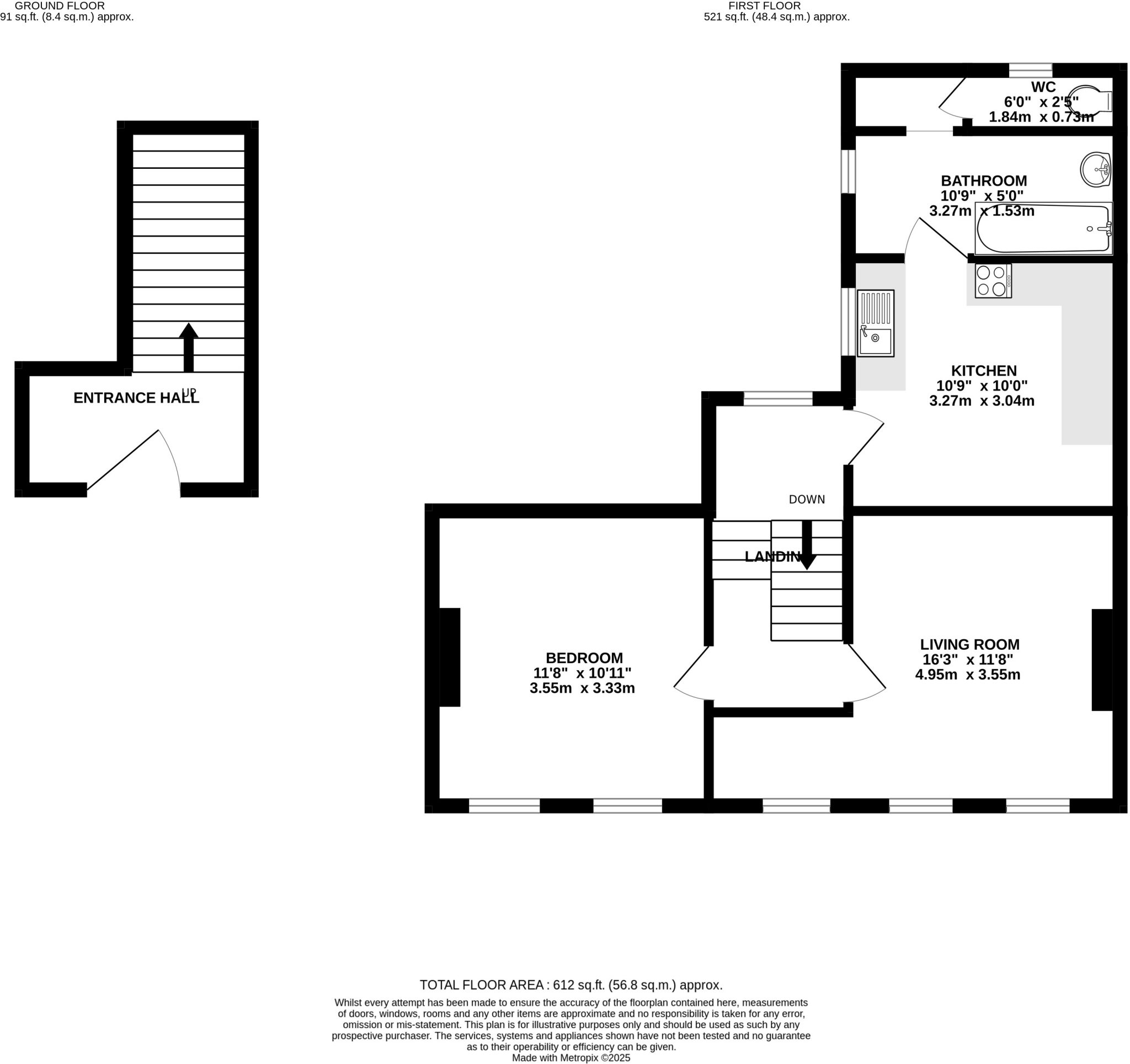
Characterful first-floor one-bedroom with parking and strong transport links..
One double bedroom with period features and good natural light
Separate living room and eat-in kitchen; practical layout
Private off-street parking — uncommon for central locations
Share of freehold — longer-term ownership control
Living room has damp patches; requires investigation and redecoration
Located close to Nunhead station and Queen’s Road Peckham transport links
Fast broadband; cheap council tax
Area classified as deprived; crime levels average
Set on the first floor of a period conversion in Nunhead, this one-bedroom apartment combines original character with practical modern touches. The square footage (approx. 612 sq ft) feels generous for a one-bedroom, with a separate living room, eat-in kitchen and good built-in storage. Private off-street parking is a rare local perk for central London locations.
The flat benefits from large sash-style windows and plenty of natural light, double glazing throughout and modern kitchen fittings. Fast broadband and excellent bus and rail links (Nunhead and Queen’s Road Peckham nearby) make it well suited to commuters or a single professional. Nearby parks and a strong cluster of primary and secondary schools add everyday convenience.
There are some maintenance considerations: the living room shows damp patches and decorative wear, so redecoration and investigation of the damp will be needed. The property is in a more deprived wider area, and local crime levels are average; buyers should weigh neighbourhood dynamics alongside the flat’s transport and amenity strengths. The tenure is a share of freehold, which can be attractive for longer-term control and value.
At £360,000 this apartment will appeal to first-time buyers seeking space and parking in leafy Nunhead, and investors targeting steady rental demand near transport and parks. It’s a practical, characterful home that will reward modest cosmetic investment.
1 bedroom flat for sale in Gautrey Road, Nunhead, SE15 — £335,000 • 1 bed • 1 bath • 451 ft²
1 bedroom apartment for sale in St Marys Road, Nunhead, SE15 — £425,000 • 1 bed • 1 bath • 527 ft²
1 bedroom apartment for sale in Beacon Gate, London, SE14 — £290,000 • 1 bed • 1 bath • 422 ft²
1 bedroom apartment for sale in Naylor Road, Peckham, London, SE15 — £300,000 • 1 bed • 1 bath • 576 ft²
2 bedroom apartment for sale in Beacon Gate, Nunhead, London, SE14 — £350,000 • 2 bed • 1 bath • 540 ft²
1 bedroom flat for sale in Nunhead Grove, Nunhead, London, SE15 — £325,000 • 1 bed • 1 bath • 626 ft²






















































