Large retail and flat with parking — investor opportunity needing refurbishment.
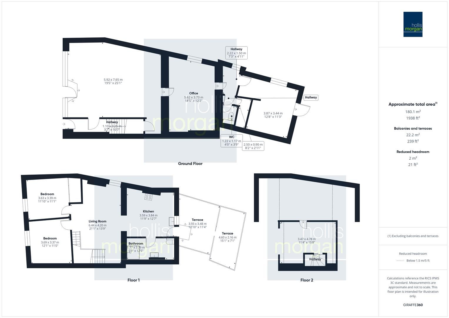
Freehold mixed‑use building, approximately 1,938 sq ft total
A substantial freehold mixed‑use building in a busy Kingswood parade, offered for sale by live online auction with a reduced guide price. The property extends to about 1,938 sq ft over ground and upper floors and combines a street‑facing retail unit with a self‑contained two‑bed flat above and a converted attic. The flat includes a roof terrace and the rear shared courtyard provides an off‑street parking space.
This is a practical opportunity for an investor or owner‑occupier prepared to manage an upgrade and planning route. The ground floor retail benefits from good street visibility and steady footfall; the upper‑floor accommodation is large for a two‑bed and could be reconfigured to add further bedrooms or convert the attic, subject to consents. The building was constructed early 20th century in solid brick and will need modernisation in parts to achieve better thermal performance and rental value.
Material considerations are straightforward and important: the property will be sold at auction, a buyer’s premium (fixed fee) applies, and completion is on an extended eight‑week timetable. A planning appeal for creating a one‑bed flat from the rear shop area was dismissed in September 2024 — further applications may succeed but there is no guaranteed consent. The building shows external wear and will require refurbishment; some fabric upgrades (insulation, finishes, services testing) are likely before re‑letting or resale.
For buyers seeking a prominent trading position with short‑term rental income and medium‑term redevelopment potential, this mixed‑use asset in an accessible location offers scope — but expect renovation costs, planning uncertainty for additional units, and auction purchase conditions.
Commercial property for sale in Mixed Use | Kingswood, BS15 — £275,000 • 2 bed • 2 bath • 1938 ft²
2 bedroom house for sale in MIXED USE | £21,540 pa | SHIREHAMPTON, BS11 — £150,000 • 2 bed • 2 bath • 1445 ft²
Commercial property for sale in Mixed Use | Updating | Kingswood, BS15 — £195,000 • 2 bed • 2 bath • 1258 ft²
Commercial property for sale in MIXED USE | £21,540 pa | SHIREHAMPTON, BS11 — £150,000 • 2 bed • 2 bath • 1445 ft²
2 bedroom semi-detached house for sale in Mixed Use | Updating | Kingswood, BS15 — £195,000 • 2 bed • 2 bath • 1258 ft²
Commercial development for sale in Two Mile Hill Road, Kingswood, Bristol, BS15 — £360,000 • 1 bed • 1 bath • 1426 ft²


















































































































































































