Ideal starter home with private garden and allocated parking, ready for refurbishment.
- Freehold one-bedroom terraced house, chain-free
- Conservatory extension opening to west-facing 24ft garden
- Allocated off-street parking space included
- Compact internal area; small rooms throughout
- Requires updating/renovation to modern standards
- Gas boiler and radiators; double glazing pre-2002
- No flood risk; located in very affluent, low-crime area
- Ideal alternative to a flat for first-time buyers or investors
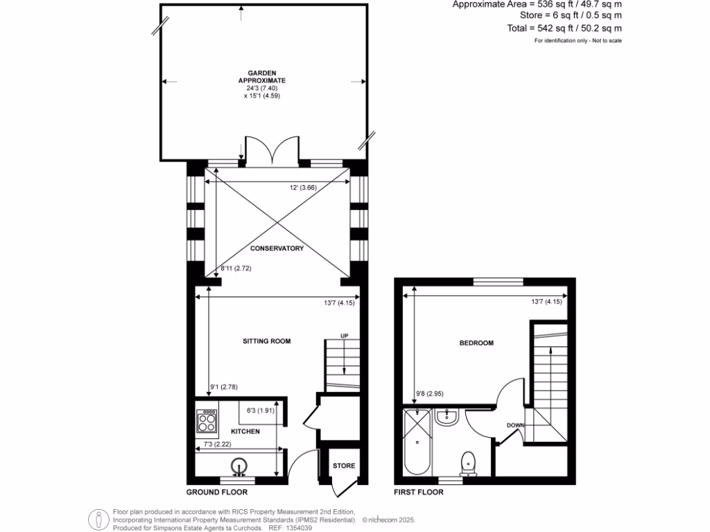
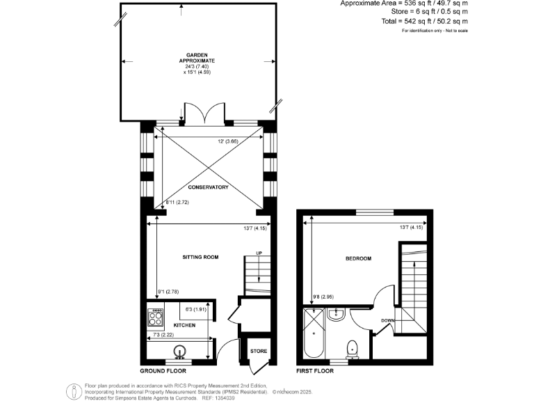
A compact, freehold one-bedroom terraced house in North Kingston, offered chain-free and well placed for the River Thames and town centre. The property includes a conservatory extension that increases usable living space and opens onto a west-facing garden of about 24ft, giving afternoon and evening sun. An allocated off-street parking space is included — a valuable local perk.
The house is small (approximately 407–542 sq ft depending on measurement) and would benefit from updating throughout; finishes and some fittings are dated and renovation is recommended to unlock full potential. Heating is gas central heating with an existing boiler and double glazing installed before 2002. There is no reported flood risk and the area is very affluent with very low crime.
This home suits a first-time buyer or buy-to-let investor seeking a low-maintenance freehold alternative to a flat, close to good schools and local amenities. Be aware the internal footprint is compact and renovation costs should be allowed for when budgeting. Viewing will best show how the conservatory and garden extend the living space.
1 bedroom flat for sale in Surbiton, Kingston Upon Thames, KT1 — £200,000 • 1 bed • 1 bath • 427 ft²
3 bedroom end of terrace house for sale in Beresford Road, Kingston Upon Thames, KT2 — £950,000 • 3 bed • 1 bath • 1076 ft²
2 bedroom terraced house for sale in Yeovilton Place, Kingston Upon Thames, KT2 — £647,500 • 2 bed • 1 bath • 823 ft²
3 bedroom detached house for sale in New Road, Kingston Upon Thames, KT2 — £850,000 • 3 bed • 1 bath • 692 ft²
1 bedroom end of terrace house for sale in Hawks Road, Kingston Upon Thames, KT1 — £349,950 • 1 bed • 1 bath • 437 ft²
1 bedroom terraced house for sale in Friars Avenue, Putney, SW15 — £400,000 • 1 bed • 1 bath • 491 ft²






























































