**Standout Features:**
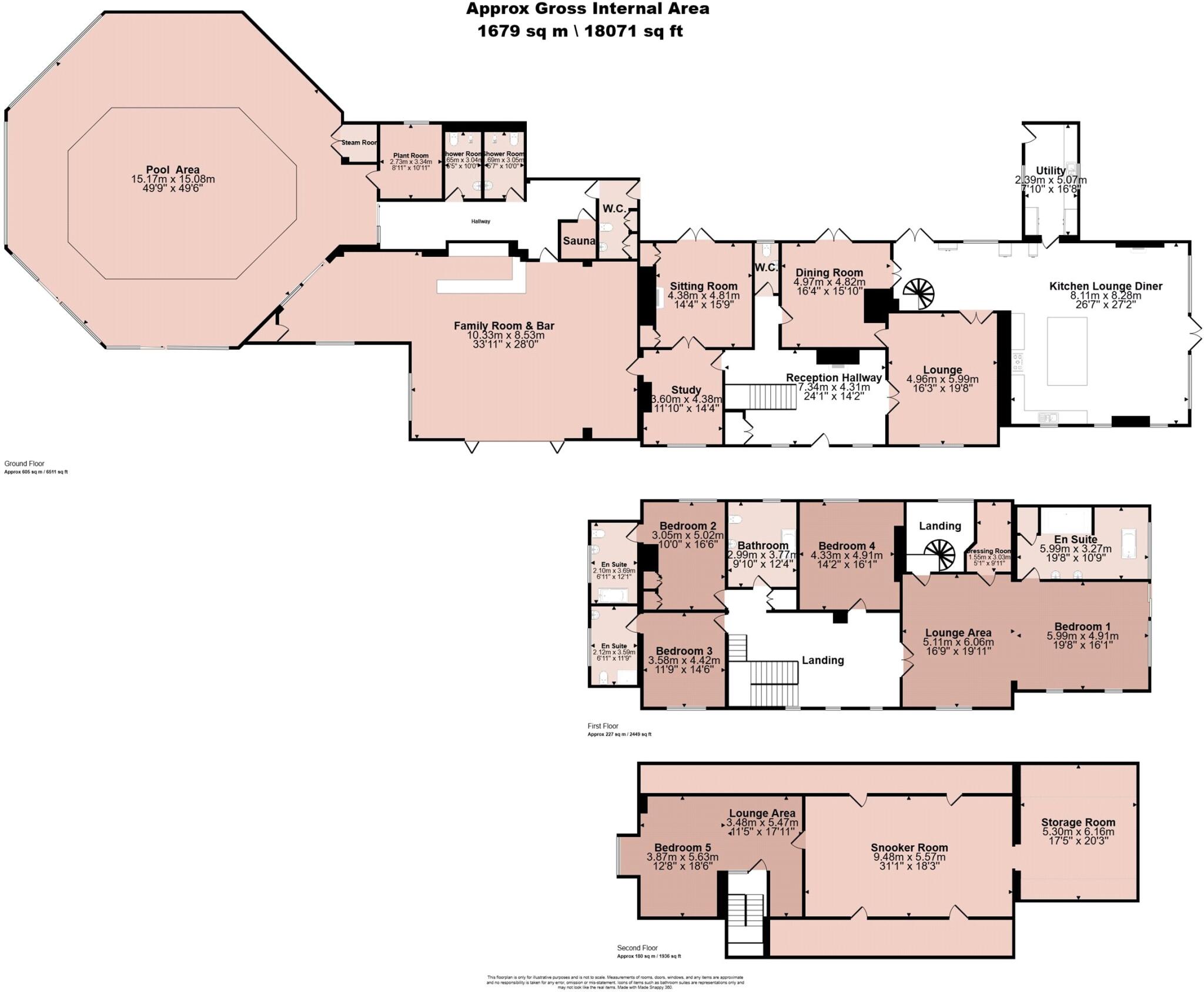
- Expansive living space: Over 9,000 sqft.
- Five spacious bedrooms with luxury finishes, including a unique split-level principal suite.
- Impressive leisure complex with a swimming pool, sauna, steam room, and bar.
- Extensive grounds with 12.5 acres, formal gardens, two ponds, a tennis lawn, and a 6.2-acre paddock featuring a gallop.
- Versatile outbuildings including stabling, workshops, and a helicopter hangar.
**Concerns:**
- Energy rating of E indicates potential for improvement in efficiency.
- Council tax band H is on the higher side.
- Broadband speeds classified as very slow may affect connectivity.
**Summary:**
Fields Farm is a stunning Georgian residence offering an exceptional lifestyle for families seeking comfort and space. With an impressive 9,000 sqft of living space, this detached home features five generous bedrooms—ideal for family living. The sophisticated leisure complex includes a swimming pool, sauna, and steam room, perfect for relaxation and entertainment. Set within 12.5 acres of landscaped grounds, the property includes a paddock for outdoor activities, beautiful gardens with ponds, and extensive outbuildings for various uses.
The location in the unspoiled village of Osbaston ensures peace and tranquility while providing convenient access to local amenities and the historic attractions of Market Bosworth. Invest in a home that promises both exclusivity and room for future expansion. This exceptional estate is a rare find—schedule your viewing today to fully appreciate the grandeur and potential that Fields Farm offers!
4 bedroom detached house for sale in Barr Lane, Higham-On-The-Hill, CV13 — £995,000 • 4 bed • 2 bath • 3360 ft²
Land for sale in Hissar House Farm, Leicester Road, Barwell, LE9 — £950,000 • 5 bed • 3 bath • 2565 ft²
5 bedroom detached house for sale in Market Bosworth Road, Dadlington,CV13 — £1,100,000 • 5 bed • 3 bath • 2288 ft²
4 bedroom detached house for sale in Laughton Lodge Farm, Laughton, LE17 — £1,150,000 • 4 bed • 1 bath • 3133 ft²
5 bedroom detached house for sale in Hallcroft Farm, Stanton Under Bardon, LE67 — £890,000 • 5 bed • 3 bath • 11989 ft²
5 bedroom detached house for sale in Portway Lane, Harlaston, B79 — £1,250,000 • 5 bed • 3 bath • 5096 ft²






















































































































































































































































