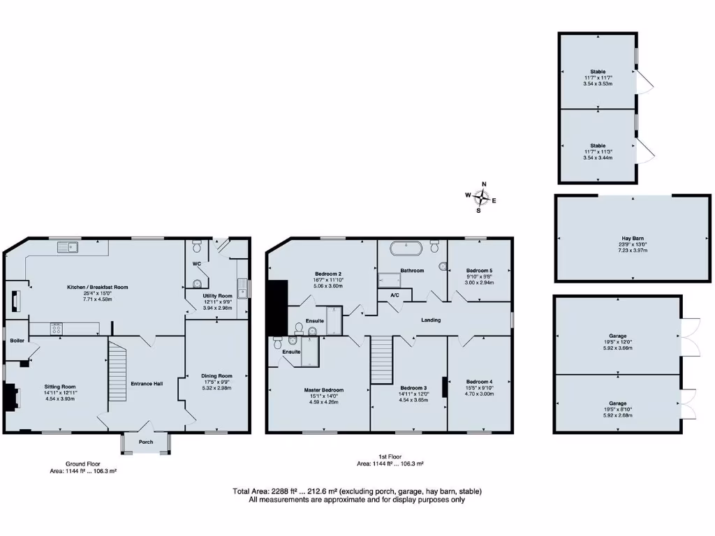
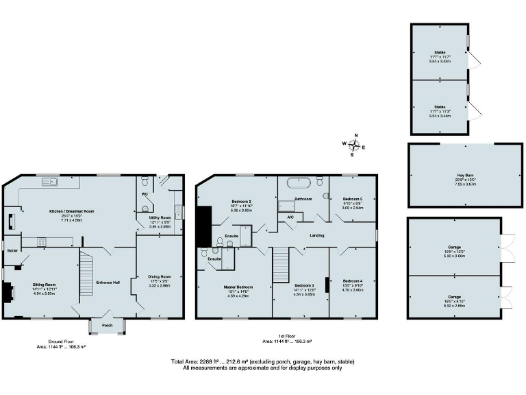
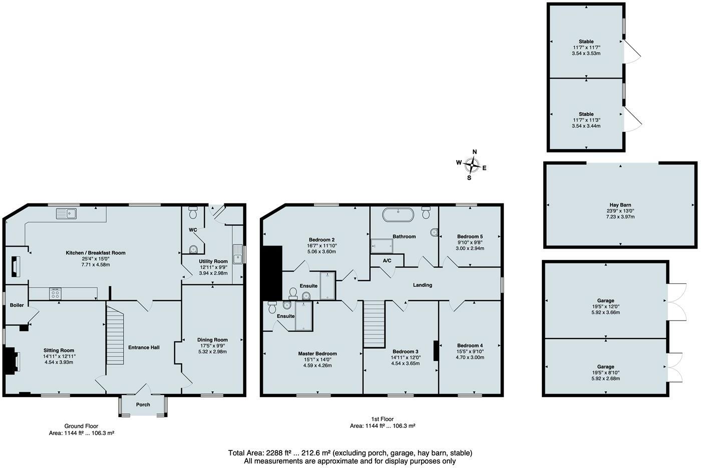
Substantial five-bed farmhouse on 3+ acres with stables and triple garage.
Five excellent bedrooms, main two with en‑suites
Large kitchen/breakfast room with range cooker and beams
Plot just over 3 acres including paddock, stables and hay barn
Triple/brick garage with substantial outbuildings
Oil-fired boiler and radiators (oil fuel, not community)
Solid brick walls with internal insulation; period fabric may need upkeep
Council Tax Band G — relatively high running costs
Services/fixtures untested; buyers must verify utilities and condition
Lodge Farm is a substantial detached country home set on just over 3 acres, combining traditional farmhouse character with useful modern additions. The property offers five excellent-sized bedrooms, two en-suites and generous living space including a lounge, separate dining room and a large kitchen/breakfast room with exposed beams and a Range cooker — ideal for family life and entertaining. Outside there is a triple/brick garage, stable block, hay barn and adjoining paddock that will appeal to equestrian or smallholding buyers.
Internally the house retains period features and solid brick construction with internal insulation. Practical spaces include a utility room and downstairs WC. Heating is by an oil-fired boiler with radiators; mains services are available locally but buyers should verify utility arrangements and capacities. The plot and outbuildings create scope for hobby farming, private leisure or limited development subject to consents.
Buyers should note a few material points plainly: the property dates from before 1900 and may need ongoing maintenance and sympathetic updating in places. The heating is oil-fired (not a community system) and the council tax band is G, reflecting higher running costs. Also, services, fixtures and appliances have not been tested and purchasers are advised to make their own enquiries and inspections before offer.
This home suits families seeking space and country living, or buyers wanting equestrian and smallholding potential close to Market Bosworth. Its hamlet setting provides seclusion and countryside views, while Market Bosworth and the Midland motorway network are within easy reach.
4 bedroom detached house for sale in Barr Lane, Higham-On-The-Hill, CV13 — £995,000 • 4 bed • 2 bath • 3360 ft²
6 bedroom detached house for sale in Breach Oak Lane, Corley, Coventry, Warwickshire, CV7 — £1,600,000 • 6 bed • 4 bath • 9451 ft²
3 bedroom barn conversion for sale in Market Bosworth Road, Dadlington, CV13 — £595,000 • 3 bed • 2 bath • 1164 ft²
5 bedroom detached house for sale in Billington Road East, Elmesthorpe, LE9 — £1,300,000 • 5 bed • 5 bath • 3567 ft²
4 bedroom detached house for sale in Waltham Road, Harby, Melton Mowbray, LE14 — £950,000 • 4 bed • 3 bath • 2005 ft²
4 bedroom character property for sale in Ansley Common, Nuneaton, CV10 — £825,000 • 4 bed • 2 bath • 2500 ft²


























































































































































































