Large private plot, garage and walkable to station for commuter families.
Chain free detached home on approximately a third of an acre
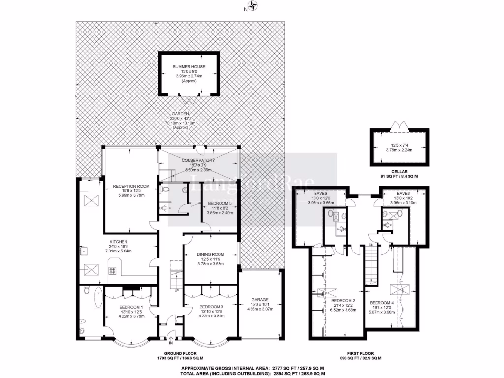
230ft secluded rear garden with summer house, greenhouse and patio
Five double bedrooms and four bathrooms, including ensuites
Large 24ft kitchen/breakfast and garden room/conservatory
Carriage driveway, garage and extensive off-street parking
Needs renovation throughout; potential to extend subject to planning
Cellar storage and original parquet flooring retained
Council tax band expensive; broadband average, mobile signal average
This detached mid-20th-century home sits on a substantial plot of about a third of an acre with a long, private 230ft rear garden — rare for the area and ideal for families who want outdoor space, entertaining room and scope to extend (STPP). The house currently provides flexible accommodation across ground and first-floor layouts, including two reception rooms, a large 24ft kitchen/breakfast, garden room/conservatory and five double bedrooms, plus four bathrooms.
The property is chain free and offers immediate practical benefits: a carriage driveway, integral garage, cellar storage, summer house with power, greenhouse and plentiful off-street parking. It also benefits from double glazing, gas central heating with boiler and underfloor heating in parts, solid parquet flooring and picture rails — features that preserve character while allowing modernisation.
Important: the home needs renovation and updating throughout. Cosmetic and systems upgrades will be required to modern standards; planning or extension work would need statutory permissions. Council tax is high, and broadband/mobile signals are average, though the area is very affluent with very low crime and good local schools.
Positioned within the Chelsfield Park Estate residents association, the location adds community amenities such as private sports grounds, and the property is within walking distance of shops and Chelsfield mainline station. Good road links (near M25 junction 4) and strong nearby schooling make this a practical family purchase with long-term capital potential for buyers willing to invest in refurbishment or extension (STPP).
4 bedroom detached house for sale in Chelsfield Hill, Orpington, BR6 — £995,000 • 4 bed • 2 bath • 1831 ft²
5 bedroom detached house for sale in The Hillside, Chelsfield Park, BR6 — £2,150,000 • 5 bed • 3 bath • 3500 ft²
6 bedroom detached house for sale in Warren Road, Chelsfield, Orpington, BR6 — £1,850,000 • 6 bed • 4 bath • 2638 ft²
5 bedroom detached house for sale in Oak Road, Orpington, BR6 — £725,000 • 5 bed • 2 bath • 1850 ft²
4 bedroom chalet for sale in Glentrammon Avenue, Orpington, BR6 — £575,000 • 4 bed • 2 bath • 1061 ft²
4 bedroom end of terrace house for sale in Highfield Avenue, Orpington, BR6 — £535,000 • 4 bed • 2 bath • 1400 ft²






































































