Spacious detached home with secluded garden and excellent schools, walking distance to Chelsfield station.
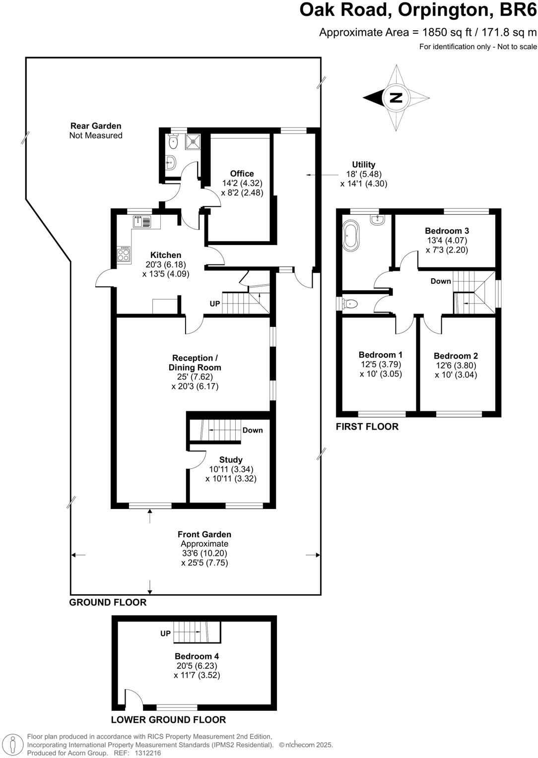
Flexible multi-room layout — bedroom arrangement can suit family or multi-generational use
Secluded rear garden with picturesque views across Kentish countryside
Walking distance to Chelsfield station (around 15 minutes) and good transport links
Garage and driveway parking; decent plot size
Double glazing present; install date unknown
Energy Efficiency Rating D — scope for insulation/efficiency improvements
Council Tax Band F — relatively expensive ongoing cost
Built 1967–1975; reflects mid-20th-century construction and finishes
Set in a peaceful, semi-rural pocket of Orpington, this versatile detached house offers roomy living for growing families. The layout provides multiple reception areas, a kitchen/breakfast room and flexible bedroom arrangements — useful for home working, guests or multi-generational use. The secluded rear garden looks across open Kentish countryside and delivers privacy and a calm outdoor space.
Practical benefits include a garage and driveway parking, double glazing, mains gas central heating and a convenient walk (around 15 minutes) to Chelsfield station. Local transport links and excellent nearby schools — including two outstanding grammar schools — add strong appeal for families and long-term owners.
Built in the late 1960s–1970s, the property is well maintained but not newly modernised. Energy Efficiency Rating D and an unspecified double-glazing installation date suggest some scope for improvement to reduce running costs. Council Tax is high (Band F) and buyers should be aware of this ongoing cost.
Overall this freehold detached home is a good fit for buyers seeking generous accommodation, a private garden and strong local schools, who are happy to carry modest energy or cosmetic upgrades to tailor the house to their tastes.
4 bedroom detached house for sale in Warnford Road, Orpington, BR6 — £625,000 • 4 bed • 1 bath • 1291 ft²
5 bedroom detached house for sale in Worlds End Lane, Orpington, BR6 — £850,000 • 5 bed • 2 bath • 1508 ft²
4 bedroom detached house for sale in Chelsfield Hill, Orpington, BR6 — £1,050,000 • 4 bed • 2 bath • 1831 ft²
4 bedroom detached house for sale in Abingdon Way, Orpington, Kent, BR6 — £750,000 • 4 bed • 2 bath • 1206 ft²
6 bedroom detached house for sale in Brimstone Close, Orpington, Kent, BR6 — £1,250,000 • 6 bed • 3 bath • 3550 ft²
4 bedroom detached house for sale in Long Acre, Orpington, BR6 — £695,000 • 4 bed • 1 bath • 1143 ft²


















































































































