Chain-free, newly fitted kitchen and close to North Street amenities.
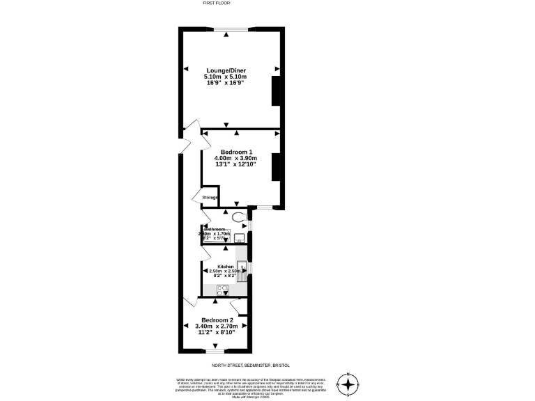
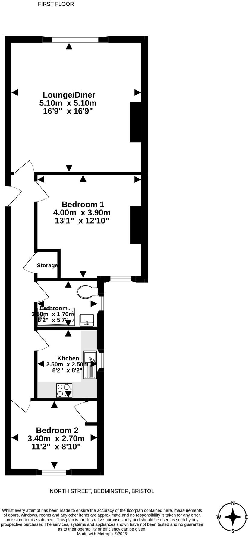
First-floor two-bedroom flat, approx 659 sq ft (71 sqm)
A bright first-floor two-bedroom flat on North Street, Southville, with a newly fitted kitchen and no onward chain. At about 659 sq ft (71 sqm) the layout is straightforward and practical, with a spacious living room, two well-proportioned bedrooms and a modern three-piece bathroom. The property benefits from an EPC C, double glazing (installed before 2002) and gas central heating via a boiler and radiators.
The building dates from before 1900 and has solid brick walls, which often lack cavity insulation — upgrading thermal insulation could reduce bills and improve comfort. The lease has 114 years remaining and the flat is offered leasehold: service charge £2,600pa and ground rent £100pa. Council tax band A makes local running costs relatively low, but the service charge is notable for buyers to factor into affordability.
Located in lively Southville (BS3), the flat sits close to cafes, shops and transport links — attractive for first-time buyers wanting city convenience or investors targeting steady rental demand. Mobile signal and broadband speeds are strong and the neighbourhood is described as affluent and achieving. Buyers should be aware of the leasehold costs and potential retrofit work to bring insulation and glazing up to modern standards.
2 bedroom flat for sale in North Street, Southville, BS3 — £300,000 • 2 bed • 2 bath • 600 ft²
2 bedroom apartment for sale in North Street, Bristol, BS3 — £284,000 • 2 bed • 1 bath • 618 ft²
2 bedroom flat for sale in Lombard Place, 17 Brook Hill, Southville, Bristol, BS3 1GB, BS3 — £310,000 • 2 bed • 1 bath • 775 ft²
2 bedroom flat for sale in Cooperage Court, Cooperage Lane, Southville, Bristol, BS3 — £300,000 • 2 bed • 1 bath • 667 ft²
2 bedroom flat for sale in Brigstow Apartments, High Street, Shirehampton, BS11 — £200,000 • 2 bed • 1 bath • 531 ft²
2 bedroom flat for sale in Charlotte Street, City Centre, Bristol, BS1 — £375,000 • 2 bed • 1 bath • 829 ft²














































