Chain-free two-bedroom project: affordable entry, needs full modernisation and careful buyer's due diligence..
Chain free Victorian mid-terrace, freehold
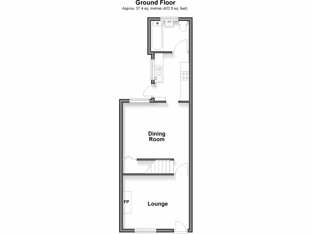
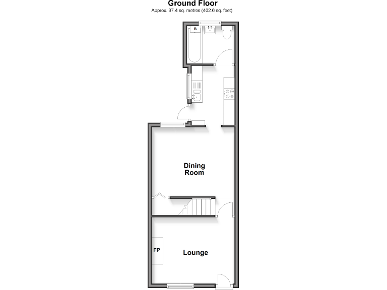
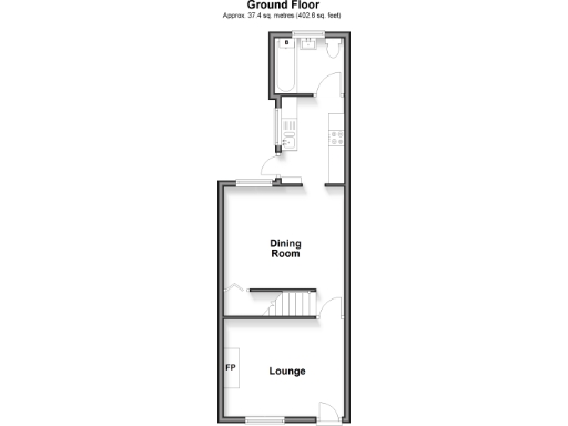
Compact 610 sq ft — two bedrooms, one bathroom
Needs full modernisation throughout; cosmetic and systems likely
Solid brick walls; likely no wall insulation
Small front and rear gardens with scope to improve
Close to multiple 'Good' schools and public transport links
High local crime and very deprived area — affects demand
Fast broadband and excellent mobile signal
A two-bedroom Victorian mid-terrace offered chain free and ready for a buyer to modernise throughout. The house is a compact 610 sq ft and provides a clear refurbishment project: structural fabric is traditional solid brick (likely without wall insulation) and the interior requires updating to create a comfortable, efficient home. The rear garden is modest but offers scope to improve outdoor living and add value.
Location is a strong practical selling point: close to local shops, bus links and several Ofsted-rated Good primary and secondary schools, plus fast broadband and excellent mobile signal. These factors make the property suitable for first-time buyers seeking an affordable starter home or investors looking for a lower-entry refurbishment to add to a rental portfolio.
Buyers should note important drawbacks upfront. The house needs comprehensive modernisation — cosmetic and likely some systems work — and sits in an area with high crime and very high deprivation indices, which will influence resale and rental demand. Room sizes are compact, and the plot and overall property size are small. Tenure is freehold and there is no flood risk.
This property suits someone who wants a low-price entry and is prepared to carry out renovations to unlock value. Verify all services, appliances and any necessary consents before purchase; the property is sold as a project rather than a move-in-ready home.
2 bedroom terraced house for sale in Alexandra Road, Chatham, Kent, ME4 — £240,000 • 2 bed • 1 bath • 754 ft²
2 bedroom terraced house for sale in Castle Road, Chatham, Kent, ME4 — £119,500 • 2 bed • 1 bath • 610 ft²
3 bedroom terraced house for sale in Connaught Road, Chatham, Kent, ME4 — £230,000 • 3 bed • 1 bath • 765 ft²
2 bedroom terraced house for sale in Castle Road, Chatham, ME4 — £190,000 • 2 bed • 1 bath • 560 ft²
3 bedroom terraced house for sale in Albert Road, Gillingham, Kent, ME7 — £180,000 • 3 bed • 1 bath • 677 ft²
3 bedroom end of terrace house for sale in Melbourne Road, Chatham, Kent, ME4 — £260,000 • 3 bed • 1 bath • 797 ft²


























