ME4 5HX - 2 bedroom terraced house for sale in Castle Road, Chatham,…

View on Property Piper

2 bedroom terraced house for sale in Castle Road, Chatham, Kent, ME4

Summary - Castle Road, Chatham, Kent ME4 5HX

2 bed 1 bath Terraced

Over‑60s Lifetime Lease on a small Victorian terrace with renovation potential..
- Lifetime Lease option for over‑60s; guide price £119,500 (typical 33% saving)
- Full market price £180,000; non‑eligible buyers can buy at full price
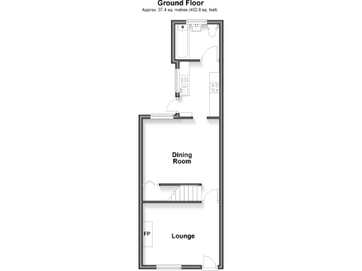
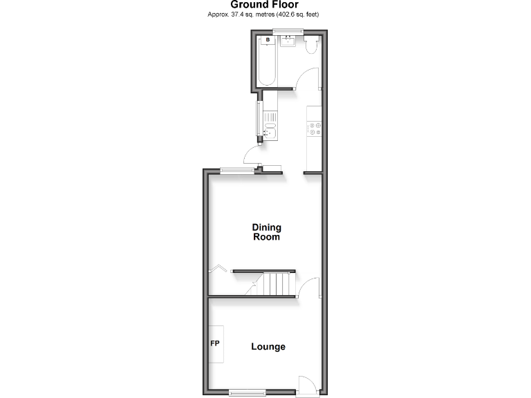
- Mid‑terrace Victorian, freehold, built before 1900, small footprint (610 sqft)
- Requires full modernisation; damp signs and likely insulating work needed
- Compact rear garden with potential to improve and add value
- High local crime and very deprived area may affect resale prospects
- Chain free; no flood risk; council tax described as cheap
- Excellent mobile signal and fast broadband, mains gas heating present
This mid-terrace Victorian house on Castle Road is being offered with a Home for Life Lifetime Lease option for buyers aged 60 and over. The Lifetime Lease guide price shown is £119,500 (typical saving around 33% versus the full market price of £180,000), with the actual price dependent on age and personal circumstances. The plan allows purchase of up to a 50% share to protect some capital for the future; non-eligible buyers can buy at full market value.

The property is chain free and presents a clear renovation project: small rooms across two storeys, original solid brick walls (likely uninsulated), signs of damp in places and generally needing modernisation throughout. Accommodation includes two bedrooms, a small lounge, dining room, kitchen and bathroom, and a compact rear garden that offers scope to improve outdoor space and add value. Heating is mains gas with a boiler and radiators; glazing is double glazed though installation date is unknown.

Practical positives include freehold tenure, no flood risk, excellent mobile signal and fast broadband — useful for staying connected. The area has many local amenities and good-rated schools nearby, but note the neighbourhood has high crime statistics and is in a very deprived area, which will affect resale and rental appeal. This is best suited to an over‑60 buyer seeking an affordable, long-term home with renovation potential, or an investor prepared to carry out works and accept local-area challenges.

Viewings are by appointment; interested over‑60s should request a personalised Homewise quote or use the online calculator to estimate the Lifetime Lease price for their circumstances. All measurements and services must be independently verified; the property is sold as needing modernisation and with visible damp that will require investigation and repair.

Property Details

Image Descriptions

Rooms

Textual Property Features

Target Audience

AI Tags

Detected Visual Features

EPC Details

Nearby Schools

Nearest Bars And Restaurants

,,,,}

Nearest General Shops

,,}

Nearest Grocery shops

,,}

Nearest Supermarkets

,,}

Nearest Religious buildings

,,}

Nearest Medical buildings

,,,}

Nearest Airports

,}

Nearest Leisure Facilities

,,,,}

Nearest Tourist attractions

,,}

Nearest Train stations

,,,,}

Nearest Bus stations and stops

,,,,}

Nearest Hotels

,,}

Tags

Local Market Stats

AirBnB Data

Similar Properties

Meta

High Res Images

Compatible Images

Low res Images

Thumbnails

Raw Images

High Res Floorplan Images

Compatible Floorplan Images

Low res Floorplan Images

FloorplanImages Thumbnail

Raw Floorplan Images