ME4 5DH - 3 bedroom terraced house for sale in Connaught Road, Chatha…

View on Property Piper

3 bedroom terraced house for sale in Connaught Road, Chatham, Kent, ME4

Summary - 67 CONNAUGHT ROAD CHATHAM ME4 5DH

3 bed 1 bath Terraced

Affordable three-bed home with rear extension, close to schools and transport..
Freehold mid-terrace with three bedrooms
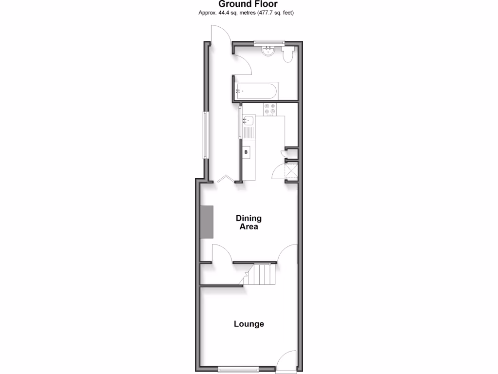
Rear extension with utility and large downstairs bathroom
Approx. 765 sq ft; compact room sizes throughout
Small, low-maintenance rear garden
Solid brick walls; no known cavity insulation
Area classed very deprived; crime above average
Excellent mobile signal and fast broadband
Close to shops, buses and several Good-rated schools
A well-presented three-bedroom mid-terraced house offering practical family living and simple rental potential. The ground-floor rear extension provides a useful utility room plus a large downstairs family bathroom — a handy layout for busy households or tenants. The property has a small, low-maintenance rear garden and compact, separate living and dining rooms.

Positioned close to local shops, frequent bus routes and several Good-rated primary and secondary schools, this freehold home suits first-time buyers seeking an affordable step onto the ladder or investors adding to a portfolio. Broadband and mobile signal are strong locally, supporting modern working-from-home needs.

Buyers should note the house is modest in overall size (approximately 765 sq ft) and dates from the early 20th century with solid brick walls (no known cavity insulation). The area has higher-than-average crime and is classed as very deprived; prospective purchasers should factor this into personal and letting considerations. Any buyer must verify planning/building consents for the extension, plus fixtures, services and tenure details with their solicitor.

Overall this property offers sensible, well-kept accommodation and easy access to transport and schools, with potential to improve energy performance and personalise interiors to add value over time.

Property Details

Image Descriptions

Floorplan Description

Rooms

Textual Property Features

Target Audience

AI Tags

Detected Visual Features

EPC Details

Nearby Schools

Nearest Bars And Restaurants

,,,,}

Nearest General Shops

,,}

Nearest Grocery shops

,,}

Nearest Supermarkets

,,}

Nearest Religious buildings

,,}

Nearest Medical buildings

,,,}

Nearest Airports

,}

Nearest Leisure Facilities

,,,,}

Nearest Tourist attractions

,,}

Nearest Train stations

,,,,}

Nearest Bus stations and stops

,,,,}

Nearest Hotels

,,}

Tags

Local Market Stats

AirBnB Data

Similar Properties

Meta

High Res Images

Compatible Images

Low res Images

Thumbnails

Raw Images

High Res Floorplan Images

Compatible Floorplan Images

Low res Floorplan Images

FloorplanImages Thumbnail

Raw Floorplan Images