Spacious family living with indoor pool, large garden and function space.
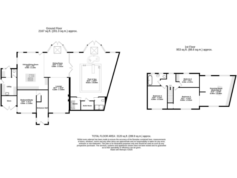
Over 3,000 sq ft interior space across multiple reception rooms
Set on a very desirable stretch of Leeds Road, this substantial detached home extends to over 3,000 sq ft and is arranged around versatile family living spaces. The ground floor centres on an impressive indoor pool, sauna and steam/shower room, alongside generous reception rooms, a large fitted kitchen and useful utility and boot rooms. Outside there is a gated gravel driveway, attached brick store, extensive rear lawns, a timber-built bar/function room and a shepherd’s hut.
The layout currently provides four bedrooms and two bathrooms, plus a 19ft dressing room formerly used as the master bedroom, offering straightforward scope to reconfigure or add an en suite if required. The plot is unusually large for the area and adjoins parkland, with an approximately three-acre pony paddock nearby — an appealing feature for buyers wanting space or potential outdoor hobbies.
Practical details are clear: freehold tenure, Council Tax Band E and an EPC rating of D (67) with scope for improvement. The house dates from the mid 20th century and shows mixed modern and character features; the cavity walls are assumed uninsulated and some updating or energy-efficiency work may be needed to raise the EPC. An accompanied viewing is recommended to appreciate the size, pool complex and external grounds in person.
This property suits a family seeking long-term space and flexibility, or purchasers wanting a distinctive home with leisure facilities and room to tailor layouts. Be aware of running and maintenance costs associated with the pool, spa and older construction when considering the overall budget.
6 bedroom detached house for sale in Leeds Road, Selby, YO8 — £875,000 • 6 bed • 3 bath • 4219 ft²
5 bedroom detached house for sale in Blackmoor Lane, Leeds, LS17 — £1,500,000 • 5 bed • 4 bath • 5003 ft²
4 bedroom detached house for sale in Shipton By Beningbrough, York, YO30 — £575,000 • 4 bed • 2 bath • 1780 ft²
4 bedroom detached house for sale in Field Lane, Wakefield, WF2 — £750,000 • 4 bed • 2 bath • 3106 ft²
9 bedroom detached house for sale in Sandmoor Drive, Alwoodley, Leeds, West Yorkshire, LS17 — £2,999,000 • 9 bed • 9 bath • 8644 ft²
4 bedroom detached house for sale in Old Bradford Road, Carr Gate, Wakefield, WF2 — £999,950 • 4 bed • 1 bath • 3422 ft²














































































































