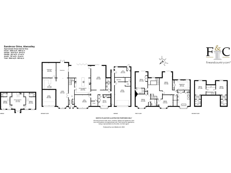
Substantial family residence with private leisure facilities and guest annexe.
- Nine bedrooms and nine bathrooms across three floors
- Extensive leisure wing: pool, gym, steam room, outdoor jacuzzi
- Self-contained two-bedroom annexe (Pine Lodge) for guests or office
- Bespoke Mark Wilkinson kitchen with concertina doors to terrace
- South-facing landscaped gardens on a 0.46-acre plot
- Double garage, utility, boot room and multiple reception rooms
- Constructed 1950–66; large property requires ongoing maintenance
- Very expensive council tax and higher running costs for facilities
Set on a wide, south-facing plot in one of North Leeds’ most sought-after locations, this exceptional detached residence spans approximately 8,644 sq ft across three floors. The house offers nine bedrooms and nine bathrooms, with a principal suite that includes two dressing rooms, an en suite and a private lounge opening onto a balcony overlooking the landscaped gardens. A fully fitted Mark Wilkinson kitchen, multiple reception rooms and a cinema/bar create extensive family and entertaining space.
The lower garden level is arranged as a dedicated leisure wing with an indoor/outdoor pool, steam and shower facilities, gym and treatment room. Outside there is an open-air spa with jacuzzi, horseshoe seating and a BBQ/entertaining terrace, plus a self-contained two-bedroom Pine Lodge annexe ideal for guests or a home office. A double garage, utility and generous boot room add practical convenience for everyday family life.
This home has been significantly extended and upgraded by the present owners and benefits from double glazing (post-2002) and modern heating. It sits close to highly regarded schools and easy commuting routes to Leeds city centre, Harrogate, Wetherby and Leeds Bradford Airport — appealing to families seeking space, privacy and leisure at home.
Buyers should note the property’s age (originally constructed mid-20th century) and the scale of on-site facilities; running and maintenance costs for the pool, spa, gym and large grounds will be material. Council tax is very expensive. Prospective purchasers should factor ongoing upkeep and service requirements into their plans when viewing.
6 bedroom detached house for sale in Navaron House, Wigton Lane, Alwoodley, Leeds, West Yorkshire, LS17 — £3,875,000 • 6 bed • 7 bath • 6963 ft²
7 bedroom detached house for sale in Sandmoor Avenue, Leeds, West Yorkshire, LS17 — £3,250,000 • 7 bed • 6 bath • 5626 ft²
8 bedroom detached house for sale in King Lane, Moortown, Leeds, LS17 — £1,250,000 • 8 bed • 7 bath • 7404 ft²
7 bedroom detached house for sale in Prestigious Alwoodley Lane, Alwoodley, LS17 — £2,750,000 • 7 bed • 6 bath • 5997 ft²
9 bedroom detached house for sale in Horsforth, Leeds, LS18 — £1,950,000 • 9 bed • 8 bath • 9034 ft²
6 bedroom detached house for sale in Sandmoor Avenue, Alwoodley, Leeds, LS17 — £2,250,000 • 6 bed • 4 bath • 5618 ft²






































































































































