Freehold plot with permission and footings started — ideal for small developers.
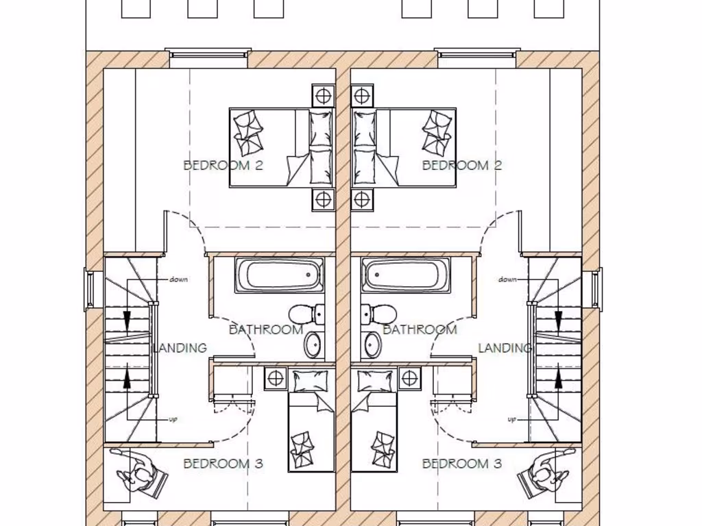
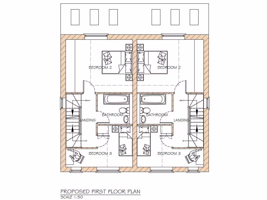
Planning permission granted for two 3-bed, 2-bath semi-detached homes
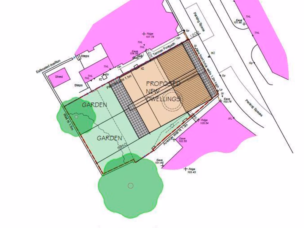
An excellent opportunity for builders or small developers: a freehold building plot on St. Mary Street with planning permission for two semi-detached, three-bedroom, two-bathroom homes (Erewash Council ref ERE/0222/0026). The site has already had footings started, shortening the build lead time and offering immediate scope to progress works.
The location is a short walk from Ilkeston town centre, with ready access to shops, schools and transport links to Derby, Nottingham and the M1. Proposed elevations show a brick, Georgian‑inspired frontage and modern rear elevations, suited to a mixed traditional/modern street character.
Buyers should note this is a small plot and the scheme will require completion from the existing footings stage. The wider area is classified as deprived and recorded crime levels are very high — these factors will affect sales values and rental demand and should be factored into pricing, security and specification decisions.
This plot suits builders or investors seeking a short-term development project in a market town location. The permissioned layout and partial groundwork reduce early-stage risk, but realistic budgets for build costs, site security and potential mitigation for local market conditions are essential.
Land for sale in Bridge Street, Ilkeston, DE7 — £50,000 • 1 bed • 1 bath
Land for sale in 128 Church Street, Eastwood, Nottingham, NG16 — £100,000 • 1 bed • 1 bath • 2585 ft²
Land for sale in Stevens Lane, Breaston, DE72 — £295,000 • 1 bed • 1 bath • 6840 ft²
Land for sale in Derby Road, Risley, Derby, DE72 — £250,000 • 4 bed • 2 bath • 658 ft²
Land for sale in Kenilworth Drive, Kirk Hallam, DE7 — £125,000 • 1 bed • 1 bath
Plot for sale in Windy Lane, Little Eaton, Derby, DE21 — £550,000 • 1 bed • 1 bath • 3047 ft²










































