Development-ready plot ideal for childcare operators or development investors.
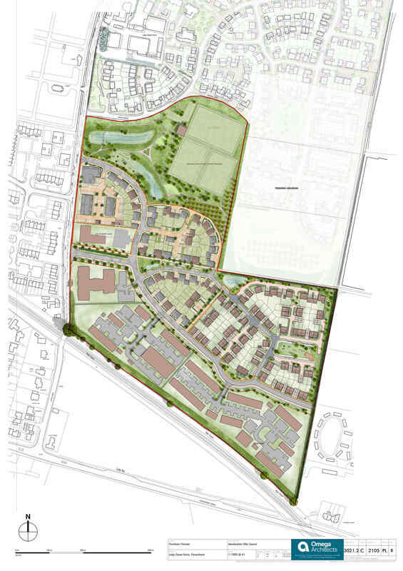
Large development plot approximately 0.65 acres (0.26 ha)
Planning permission available for day nursery/creche on-site
Part of mixed-use new-build scheme with housing and retail
Generous outdoor space suitable for playgrounds and landscaping
No flood risk; fast broadband; average mobile signal
Area classified as deprived; constrained renter demographic locally
Tenure unknown; purchaser must verify ownership and legal terms
Listing price shown as 1 — confirm actual price and sale conditions
A substantial development parcel fronting Love Lane, offered for the construction of a purpose-built day nursery/creche as part of a larger mixed-use new-build scheme. The plot extends to approximately 0.65 acres (0.26 ha) with around 28,314 sq ft of site area, providing generous outdoor space suitable for play areas and secure landscaping. The site benefits from fast broadband, average mobile signal and no flood risk.
The location sits within a predominantly residential development that includes housing, retail, a care home and business units—bringing an established local catchment of families and future tenants. Nearby schools include an Ofsted Outstanding primary and several Good-rated primaries and secondaries, which supports demand for childcare places in the locality. Local amenities and public transport stops are within reach.
Buyers should note material constraints: the site sits in an area classified as deprived with a high proportion of constrained renters in the immediate locality, and the tenure is currently unknown. The listing price figure appears to be a placeholder and requires confirmation; any purchaser will need to verify planning conditions, S106 obligations, utilities and delivery timetable for the wider development. Overall, the plot offers clear development potential for operators or investors prepared to engage with the wider masterplan and local market dynamics.
 Land for sale in Land To The East Of Love Lane, Faversham, ME13 8BJ, ME13 — POA • 1 bed • 1 bath
 Land for sale in Land To The East Of Love Lane, Faversham, ME13 8BJ, ME13 — POA • 1 bed • 1 bath Land for sale in Norton Ash Site, London Road, Teynham, Sittingbourne, Kent, ME9 9JY, ME9 — £2,750,000 • 1 bed • 1 bath
 Land for sale in Norton Ash Site, London Road, Teynham, Sittingbourne, Kent, ME9 9JY, ME9 — £2,750,000 • 1 bed • 1 bath Land for sale in Beaumont Davey Close, Faversham, Kent, ME13 — £1,500,000 • 3 bed • 2 bath • 6250 ft²
 Land for sale in Beaumont Davey Close, Faversham, Kent, ME13 — £1,500,000 • 3 bed • 2 bath • 6250 ft² High street retail property for sale in Retail Units, Love Lane, Faversham, ME13 8BJ, ME13 — POA • 1 bed • 1 bath • 4086 ft²
 High street retail property for sale in Retail Units, Love Lane, Faversham, ME13 8BJ, ME13 — POA • 1 bed • 1 bath • 4086 ft² Land for sale in Plot E Perry Court Farm, Tettenhall Way, Faversham, ME13 8ZB, ME13 — POA • 1 bed • 1 bath
 Land for sale in Plot E Perry Court Farm, Tettenhall Way, Faversham, ME13 8ZB, ME13 — POA • 1 bed • 1 bath Land for sale in Brogdale Road, Faversham, ME13 — £220,000 • 1 bed • 1 bath • 1506 ft²
 Land for sale in Brogdale Road, Faversham, ME13 — £220,000 • 1 bed • 1 bath • 1506 ft²










