Shell retail units up to 4,086 sqft in a new mixed-use development — ideal for investors or occupiers..
Extensive retail space up to 4,086 sqft suitable for large occupiers
Delivered as shell units with capped services — tenant fit-out required
Leasehold tenure — check lease length, service charges and terms
Completion expected in roughly 12 months; no immediate income
Located within mixed-use development to generate local residential footfall
Area classified as deprived; local demand may skew toward constrained renters
Fast broadband and no flooding risk; average crime levels
Price shown as "1" in data — verify as likely placeholder
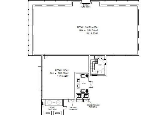
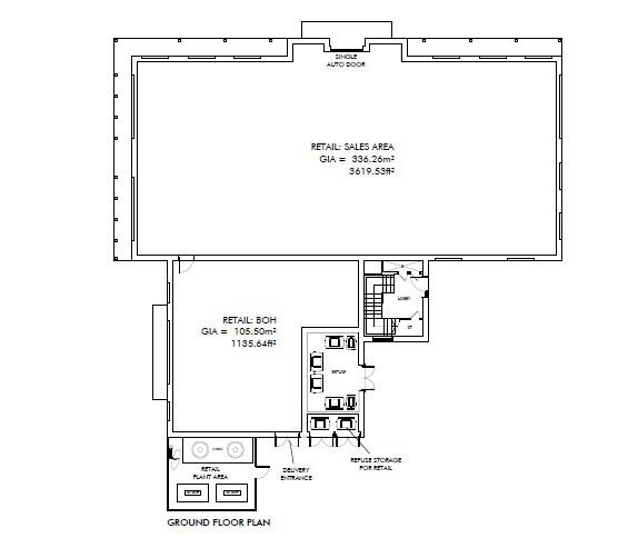
These are new-build high street retail units forming part of a larger mixed-use development on Love Lane, Faversham. The scheme combines modern brick-fronted architecture with traditional details to sit within the local streetscape. Units will be delivered as shells with capped services, offering buyers flexibility to fit out to specific trade requirements.
The largest available unit provides up to 4,086 sqft (units range from 1,136–4,086 sqft), making the space suitable for larger single-occupier retail, showroom, or service uses. The location benefits from fast broadband, no flood risk, and placement within a residential-led scheme that includes housing, offices, a care home and nursery — generating local footfall once complete.
Important considerations: these units are leasehold and will require full tenant fit-out from shell condition. The wider area is classified as deprived with a local profile of constrained renters, and crime levels are average. Completion is anticipated in about 12 months, so income or occupation cannot commence immediately. The listing shows a price of "1" — this should be verified as it appears to be a placeholder.
For investors or owner-occupiers targeting long-term local trade, these units offer scale and flexibility in a regenerating mixed-use plot. Factor fit-out costs, leasehold terms and the local socioeconomic profile into rental and return projections before committing.
 Land for sale in Land To The East Of Love Lane, Faversham, ME13 8BJ, ME13 — POA • 1 bed • 1 bath
 Land for sale in Land To The East Of Love Lane, Faversham, ME13 8BJ, ME13 — POA • 1 bed • 1 bath High street retail property for sale in Station Road, Faversham, ME13 — £389,000 • 1 bed • 1 bath • 1604 ft²
 High street retail property for sale in Station Road, Faversham, ME13 — £389,000 • 1 bed • 1 bath • 1604 ft² Commercial property for sale in Upper Brents, The Shipyard, ME13 — £220,000 • 1 bed • 1 bath • 2346 ft²
 Commercial property for sale in Upper Brents, The Shipyard, ME13 — £220,000 • 1 bed • 1 bath • 2346 ft² 1 bedroom apartment for sale in West Street, Faversham, Kent, ME13 — £189,995 • 1 bed • 1 bath • 592 ft²
 1 bedroom apartment for sale in West Street, Faversham, Kent, ME13 — £189,995 • 1 bed • 1 bath • 592 ft² Light industrial facility for sale in Highstreet Road, Hernhill, ME13 — £245,000 • 1 bed • 1 bath • 1000 ft²
 Light industrial facility for sale in Highstreet Road, Hernhill, ME13 — £245,000 • 1 bed • 1 bath • 1000 ft² Light industrial facility for sale in Highstreet Road, Hernhill, ME13 — £295,000 • 1 bed • 1 bath • 1000 ft²
 Light industrial facility for sale in Highstreet Road, Hernhill, ME13 — £295,000 • 1 bed • 1 bath • 1000 ft²










































