Former office cleared and structurally remediated, suited to residential conversion.
Very large freehold town‑centre plot (approx. 318 m² / 3,424 sq ft)
A substantial freehold town-centre plot on Hill Street offering clear redevelopment potential for residential conversion. The former Victorian office building has been fully stripped and structural remediation (including internal steels) completed, leaving a largely blank canvas for a new scheme subject to planning. The site sits less than 50m from the high street and close to Staffordshire University, Royal Stoke Hospital and Stoke railway station, making it well placed for rental demand.
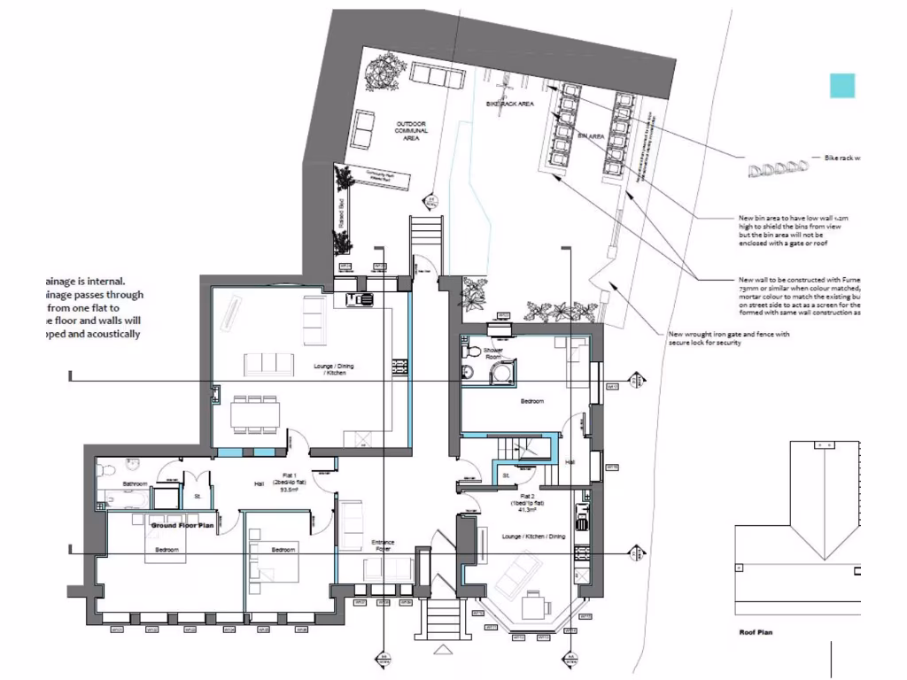
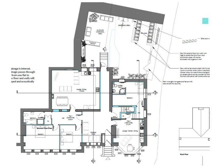
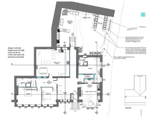
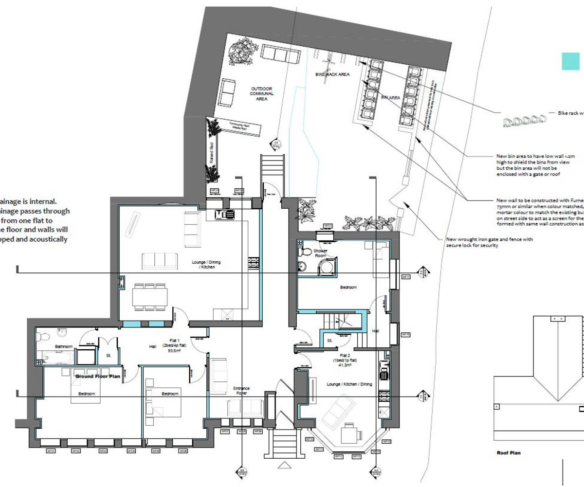
Planning history is material: a 2024 application for nine one‑bed flats was refused. The seller has submitted a pre‑application for a revised scheme of six apartments (mixture of 1‑bed, 2‑bed and duplex units) and feedback is awaited ahead of auction. Interested buyers should factor in the planning risk and carry out their own due diligence; full drawings and the planning pack are available on request.
Practical points for buyers: the property is sold at auction with a 10% deposit (min £3,000), a buyers’ administration fee of £1,800 (inc VAT) applies, and legal pack review is essential before bidding. The building needs renovation but is structurally stabilised, offering time and cost savings compared with a full rebuild. Note the area is very deprived with very high local crime rates — worth considering for insurance, management and lettings strategies.
For developers and buy‑to‑let investors the site provides scale and connectivity in a city centre location with fast broadband and excellent mobile signal. The combination of proximity to major employers and transport links supports rental demand, but any conversion depends on securing a viable planning consent and appropriate risk pricing at auction.
Land for sale in Gitana Street, Stoke on Trent, ST1 — £150,000 • 1 bed • 1 bath • 3961 ft²
Commercial property for sale in Campbell Place, Stoke On Trent, ST4 1NA, ST4 — £140,000 • 4 bed • 2 bath • 1816 ft²
Land for sale in Stonor Street, Cobridge, Stoke On Trent, ST6 3HJ, ST6 — £1,000,000 • 53 bed • 53 bath • 1125 ft²
Land for sale in Queen Street, Burslem, ST6 — £410,000 • 1 bed • 1 bath • 2178 ft²
Commercial property for sale in Jollees, 279 London Road, Stoke-on-Trent, Staffordshire, ST4 5AG, ST4 — £250,000 • 2 bed • 2 bath • 5924 ft²
Office for sale in 53 - 57 Harley Street, Stoke-On-Trent ST1 3LB, ST1 — £150,000 • 1 bed • 1 bath • 883 ft²


















































