ST1 1DY - 1 bed town centre development opportunity in Gitana Street,…

View on Property Piper

Land for sale in Gitana Street, Stoke on Trent, ST1

Summary - BISHOPS CHAMBERS, GITANA STREET ST1 1DY

1 bed 1 bath Land

Large freehold city-centre office with conversion potential, sold at auction..
Freehold three-storey town-centre office, approx. 3,961 sq ft
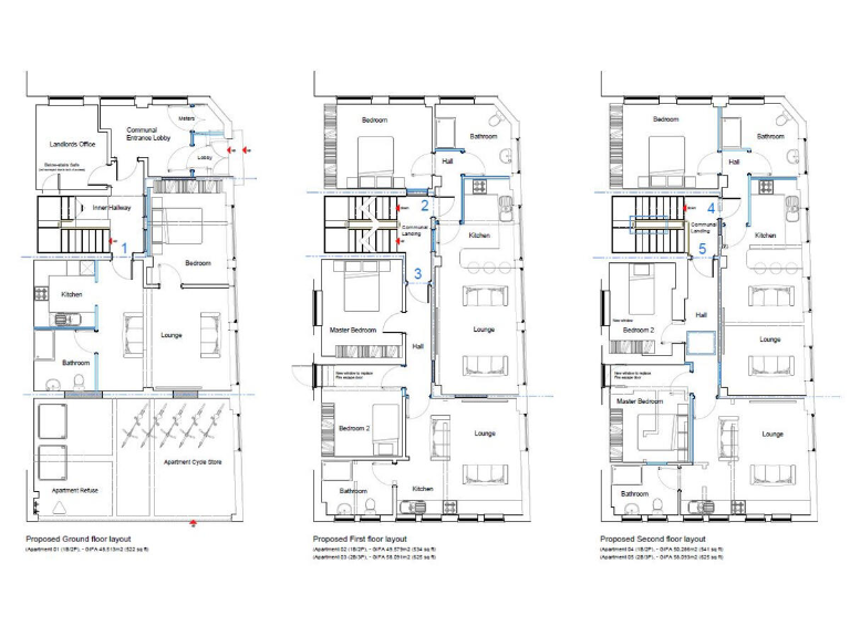
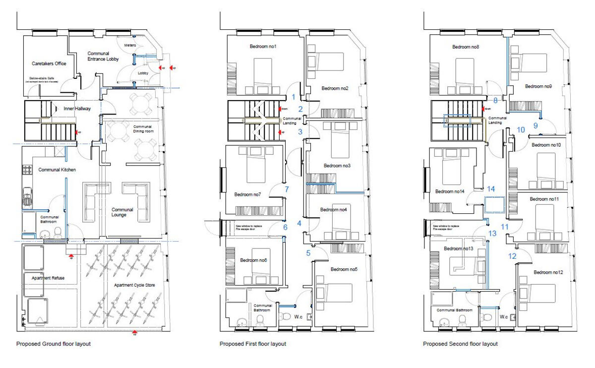
This three-storey town-centre office offers a large, freehold development opportunity in Hanley CBD. The building measures approximately 3,961 sq ft and sits close to retail, transport links and leisure amenities, making it a potentially sustainable site for city-centre housing.

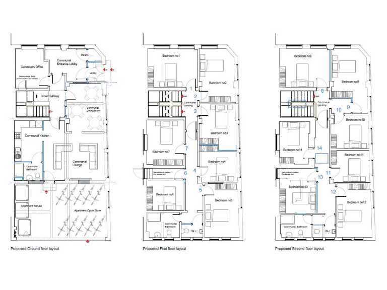
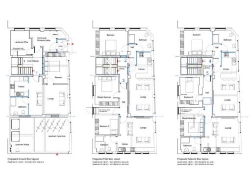
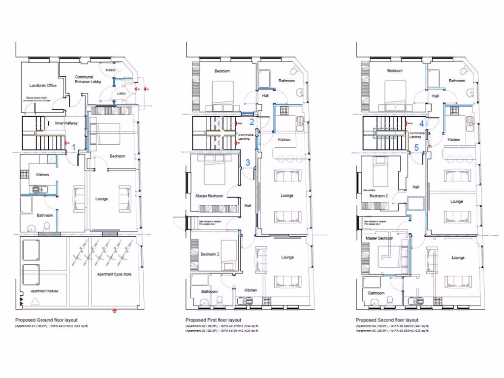
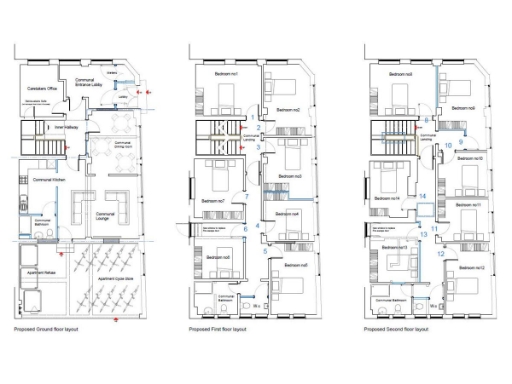
A commissioned planning report (available on request) suggests conversion options: five self-contained apartments or a 14-bedroom HMO, with estimated rental incomes outlined. These schemes could deliver immediate rental yield for an investor or a developer prepared to secure planning consent and carry out refurbishment works.

Important negatives are clear: the property will be sold at auction with a 10% deposit (minimum £3,000) and an additional buyer administration fee of £1,800. The area records very high crime levels, very slow broadband, and high deprivation—factors that will influence lettings, management and financing. No planning consent is in place; all redevelopment is subject to statutory approval and buyer due diligence.

Property Details

Image Descriptions

Floorplan Description

Rooms

Textual Property Features

Target Audience

AI Tags

Detected Visual Features

Nearby Schools

Nearest Bars And Restaurants

,,,,}

Nearest General Shops

,,}

Nearest Grocery shops

,,}

Nearest Supermarkets

,,}

Nearest Religious buildings

,,}

Nearest Medical buildings

,,,}

Nearest Leisure Facilities

,,,,}

Nearest Tourist attractions

,,}

Nearest Train stations

,,,,}

Nearest Bus stations and stops

,,,,}

Nearest Hotels

,,}

Tags

Local Market Stats

AirBnB Data

Similar Properties

Meta

High Res Images

Compatible Images

Low res Images

Thumbnails

Raw Images

High Res Floorplan Images

Compatible Floorplan Images

Low res Floorplan Images

FloorplanImages Thumbnail

Raw Floorplan Images