Vacant-possession site with major conversion and expansion potential for investors.
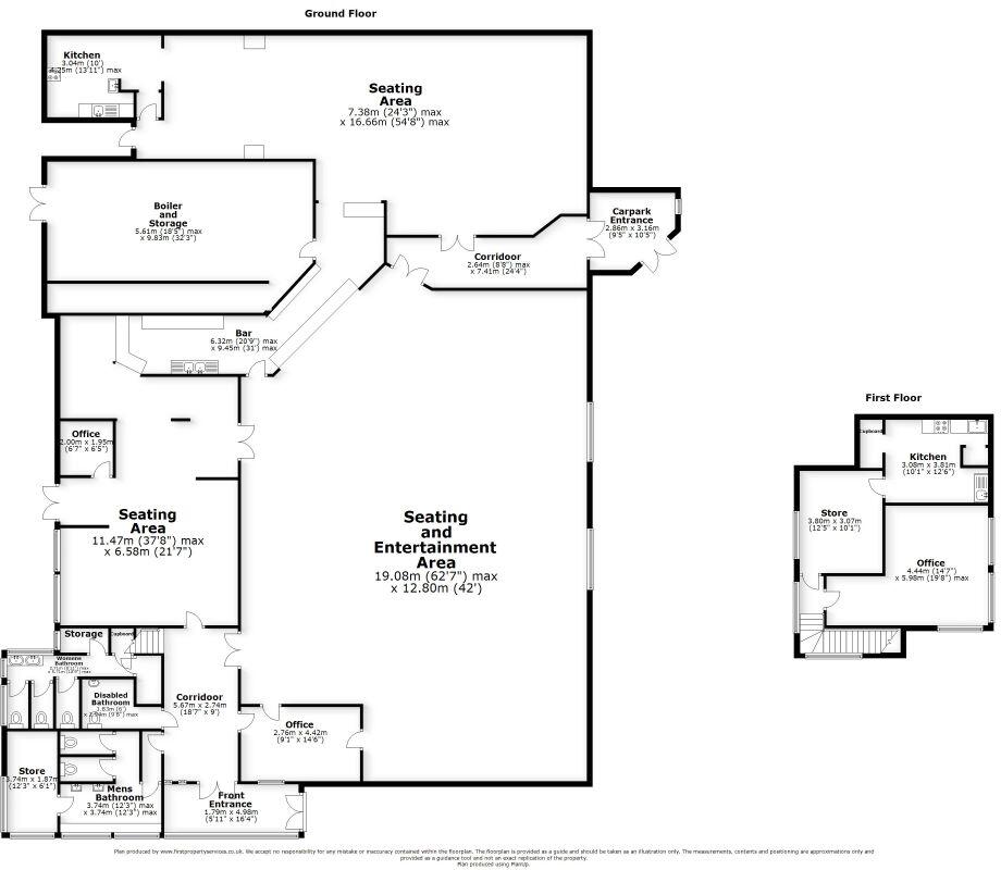
- Substantial freehold; c.5,924 sq ft multi-storey building
- Site size c.0.45 acres with generous off-street car park
- Vacant possession; sold via online auction 13 Aug 2025
- Unconditional sale: 10% deposit on fall of hammer
- High redevelopment potential; conversion subject to planning
- Building requires modernization and refurbishment throughout
- Area is very deprived with above-average local crime
- No recorded flood risk; fast broadband and excellent mobile
A substantial freehold opportunity on London Road, Stoke-on-Trent, tailored for investors and developers. The mid-20th-century building provides approximately 5,924 sq ft of internal space across multiple floors and sits on about 0.45 acres including a generous car park. The property is offered with vacant possession, making it suitable for conversion to residential units, mixed-use schemes, or continued commercial/leisure use, subject to planning consent.
The site benefits from high visibility, excellent transport links, fast broadband and strong mobile signal — practical advantages for many end uses. There is no recorded flood risk, and the large plot offers scope for expansion or reconfiguration. Legal and auction information is available in the legal pack; the property will be sold at online auction on 13th August 2025 and requires registration to bid. The sale will be unconditional on the fall of the hammer with a 10% deposit payable.
Buyers should note material considerations: the building needs modernization and refurbishment to suit most alternative uses, and any change of use will require planning permission. The surrounding area is very deprived with above-average crime statistics, which may affect residential rental values or regeneration timescales. Prospective purchasers should review the legal pack and special conditions for any additional costs and investigate planning prospects before bidding.
Land for sale in Hill Street, Stoke on Trent, ST4 — £225,000 • 1 bed • 1 bath • 3423 ft²
Office for sale in 53 - 57 Harley Street, Stoke-On-Trent ST1 3LB, ST1 — £150,000 • 1 bed • 1 bath
Land for sale in Liverpool Road, Newcastle, ST5 — £200,000 • 1 bed • 1 bath • 3853 ft²
Commercial property for sale in 4 Bridgewood Street, Longton, Stoke-On-Trent, Staffordshire ST3 1HW, ST3 — £145,000 • 1 bed • 1 bath • 4791 ft²
Detached house for sale in Newcastle Street, Stoke-On-Trent, ST6 — £30,000 • 1 bed • 1 bath
Block of apartments for sale in Unit 4, Parkhall Works, Sutherland Road, Stoke-On-Trent, Staffordshire ST3 1HJ, ST3 — £150,000 • 1 bed • 1 bath • 10000 ft²






















