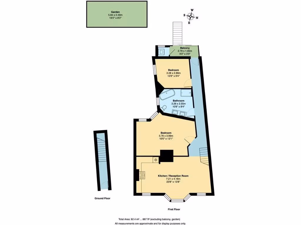
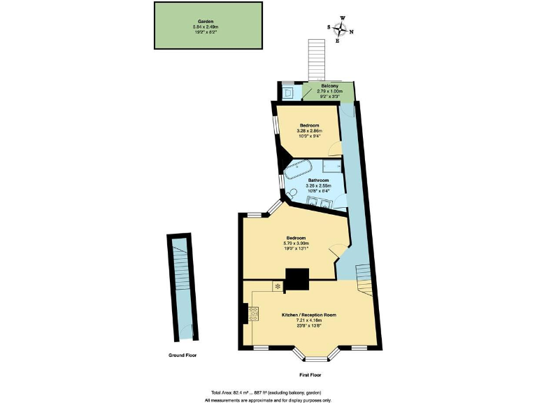
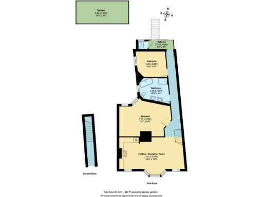
Bright two-bedroom home with private garden near St James Street transport.
Own front door and large, open-plan kitchen/lounge with bay windows
Private rear garden plus glazed balcony, usable year-round
Retains period features: exposed brick, wood burners, timber floors
Approx 887 sq ft — generous for a two-bedroom conversion
Leasehold with c.125 years remaining — check service charges and terms
Solid brick walls likely uninsulated; consider energy-efficiency upgrades
Medium flooding risk for the area — obtain specialist advice
Potential to extend subject to planning permission (STPP)
Set on a quiet Walthamstow street, this first‑floor two-bedroom conversion offers generous living space and original period character. The wide open-plan kitchen/lounge, large bay windows and exposed brick chimneys create a bright, sociable heart to the home. A glazed balcony and private rear garden extend the living space outdoors.
Presented to a good standard throughout, the apartment measures approximately 887 sq ft and retains features such as timber floors, wood burners and sash-style windows. The layout suits a professional couple or first-time buyers wanting flexible space for entertaining and home working, while nearby St James Street Overground and Walthamstow Central tube keep central London within easy reach.
Practical details to note: the property is leasehold with about 125 years remaining. The building is an early-20th-century solid-brick construction likely without cavity insulation; the glazing is double glazed but the installation date is unknown. There is medium flood risk for the area, and any extension or significant alteration would require planning consent (STPP).
Overall this is a well-proportioned period conversion with outdoor space and strong transport links. It will particularly suit buyers prioritising character, light and a private garden, though purchasers should factor in long-term maintenance, potential insulation improvements and the leasehold tenure when calculating costs.
2 bedroom terraced house for sale in Queens Road, Walthamstow, E17 — £600,000 • 2 bed • 1 bath • 677 ft²
2 bedroom flat for sale in Northcote Road, Walthamstow, London, E17 — £550,000 • 2 bed • 1 bath • 690 ft²
2 bedroom flat for sale in Wellesley Road, Walthamstow, E17 — £500,000 • 2 bed • 1 bath • 609 ft²
2 bedroom flat for sale in Shernhall Street, Walthamstow, London, E17 — £525,000 • 2 bed • 1 bath • 655 ft²
2 bedroom flat for sale in Forest Road, Walthamstow, E17 — £425,000 • 2 bed • 1 bath • 818 ft²
1 bedroom flat for sale in Northcote Road, Walthamstow, London, E17 — £400,000 • 1 bed • 1 bath • 619 ft²










































































































