**Standout Features:**
- Central location on High Street, Lewes
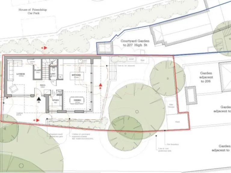
- Full planning permission for a contemporary 2-storey detached house
- Proposed design includes 3 bedrooms (1 ensuite), a bathroom, sitting room, study, and spacious kitchen/dining area
- Off-street parking and private garden included
- Located within South Downs National Park
**Potential Concerns:**
- Small plot size may limit outdoor space
- Local area has a higher crime rate than average
Situated in the heart of Lewes, this building plot offers an exceptional opportunity to create your dream home within a flourishing community. With full planning permission in place for a modern, eco-friendly 3-bedroom detached house, the proposed design features comfortable living spaces, including a study and an open-plan kitchen/dining room that seamlessly blends functionality with contemporary style. Enjoy the luxury of a private garden and off-street parking while being just steps away from a variety of amenities, including shops, cafes, and public transport.
This site not only promises a cornerstone for family life, but also boasts proximity to highly-rated schools, making it a prime location for both families and professionals. However, potential buyers should be aware of the small plot size and use caution regarding the local crime statistics. Offering a unique chance to invest in a vibrant area within the South Downs National Park, this land may not be available for long—don't miss out on the chance to shape this prime piece of real estate into your future home!
Land for sale in Garden Plot, High Street, Lewes, BN7 2NS, BN7 — £400,000 • 1 bed • 1 bath • 4241 ft²
Plot for sale in Green Lane, South Chailey, BN8 — £225,000 • 1 bed • 1 bath • 1011 ft²
Land for sale in Court Road, Lewes, BN7 — £1,250,000 • 1 bed • 1 bath
Land for sale in Trinity Gables, Eastgate Street, Lewes, East Sussex, BN7 — £4,250,000 • 1 bed • 1 bath
Plot for sale in Greenhill Way, Peacehaven, BN10 — £200,000 • 1 bed • 1 bath
Land for sale in Firle Road, Peacehaven, BN10 — £115,000 • 1 bed • 1 bath






























