**Standout Features:**
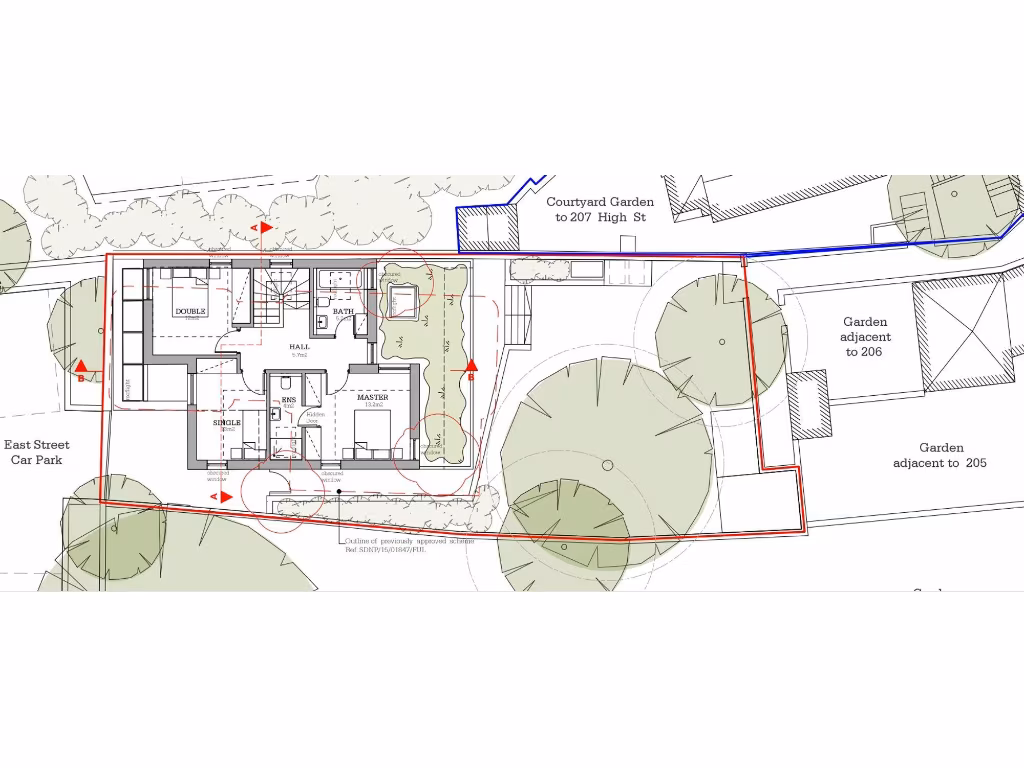
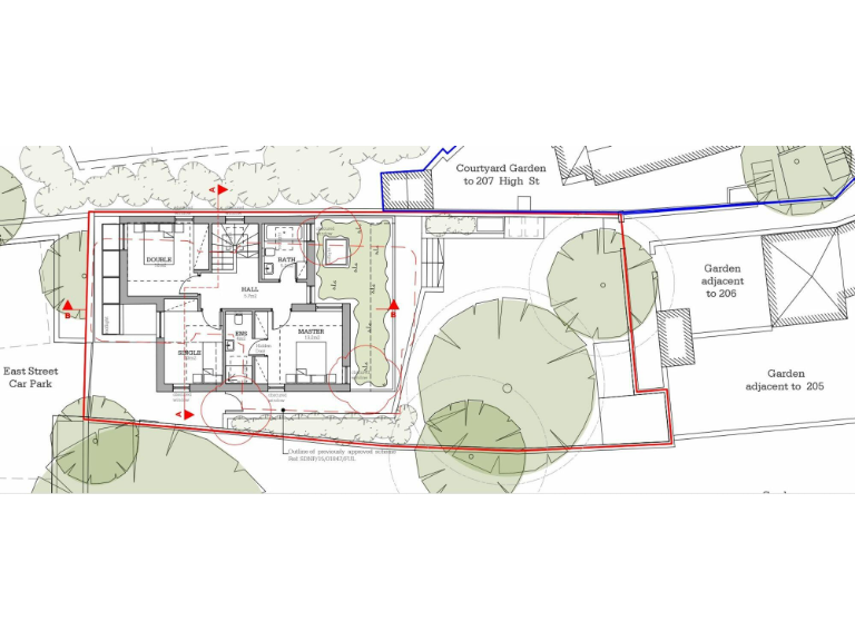
- Approved planning permission for a 3-bedroom detached home (SDNP/22/03497/FUL)
- Located in the vibrant Lewes Town Centre
- Allocated off-street parking and a southerly facing garden
- Future potential for modern architectural features, including vaulted ceilings and floor-to-ceiling windows
- Proximity to amenities, transport links, and local attractions, including historic sites and leisure facilities
**Summary:**
Seize an exceptional opportunity to develop in the heart of Lewes Town Centre with approved planning for a 3-bedroom, 1313 sq.ft. detached home. This prime location guarantees not only a tranquil setting away from the busy High Street but also direct access to diverse shops, eateries, and essential services. The exciting design includes an open-plan kitchen/dining area, study, and a generous garden that basks in the sun, creating an appealing outdoor retreat.
With allocated off-street parking and local amenities just a stroll away, including schools and public transport, this plot is perfect for families or investors looking to add value. While the project will require connecting utilities and some groundwork, the potential for a stunning, contemporary home in this affluent neighborhood cannot be overstated. Don't miss out—this development opportunity offers the perfect combination of convenience, comfort, and future potential!
Land for sale in Court Road, Lewes, BN7 — £1,250,000 • 1 bed • 1 bath
Land for sale in High Street, Lewes, BN7 — £400,000 • 3 bed • 1 bath
3 bedroom terraced house for sale in Western Road, Lewes, BN7 — £400,000 • 3 bed • 1 bath • 1261 ft²
Land for sale in Trinity Gables, Eastgate Street, Lewes, East Sussex, BN7 — £4,250,000 • 1 bed • 1 bath
2 bedroom terraced house for sale in Foundry Lane, Lewes, BN7 — £500,000 • 2 bed • 2 bath • 784 ft²
3 bedroom terraced house for sale in Edward Street, Lewes, East Sussex, BN7 2QH, BN7 — £350,000 • 3 bed • 2 bath • 970 ft²






















































































