Private garden and quick Northern Line access, ready to personalise.
Bright open-plan reception and kitchen with patio doors
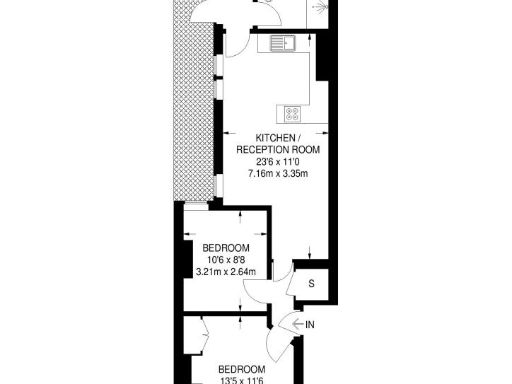
A compact two-bedroom ground-floor flat offering bright open-plan living and a private garden, ideal for a first-time buyer seeking central connections and scope to personalise. The reception and kitchen flow together through patio doors, bringing natural light into functional living space across approximately 573 sq ft.
Location is a genuine strength: Colliers Wood Underground is within easy reach for Northern Line services into central London, and local shops, cafes and several highly rated primary and secondary schools are nearby. Council tax is described as affordable and broadband and mobile signal are strong — practical pluses for everyday life or working from home.
This property will be offered at an online auction, so buyers should be prepared to proceed quickly. Tenure is a share of freehold. The building dates from the 1930s–40s with solid brick walls that likely lack cavity insulation, and glazing is double but install date is unknown. EPC rating C.
Notable cautions: the immediate area records higher crime levels, and the flat’s overall size is small, meaning limited storage and compact rooms. Buyers seeking long-term energy efficiency may need to consider insulation improvements. The auction sale process and shared freehold require buyers to review legal pack and be comfortable with auction timelines.
2 bedroom flat for sale in College Road, Colliers Wood, London, SW19 — £450,000 • 2 bed • 1 bath • 573 ft²
2 bedroom maisonette for sale in Byegrove Road, Colliers Wood, London, SW19 — £475,000 • 2 bed • 1 bath • 676 ft²
2 bedroom flat for sale in Kimble Road, Colliers Wood, London, SW19 — £375,000 • 2 bed • 1 bath • 531 ft²
2 bedroom flat for sale in High Street, Colliers Wood, London, SW19 — £350,000 • 2 bed • 2 bath • 599 ft²
2 bedroom flat for sale in Fortescue Road, Colliers Wood, London, SW19 — £450,000 • 2 bed • 1 bath • 554 ft²
1 bedroom flat for sale in Briscoe Road, Colliers Wood, London, SW19 — £400,000 • 1 bed • 1 bath • 440 ft²






























































