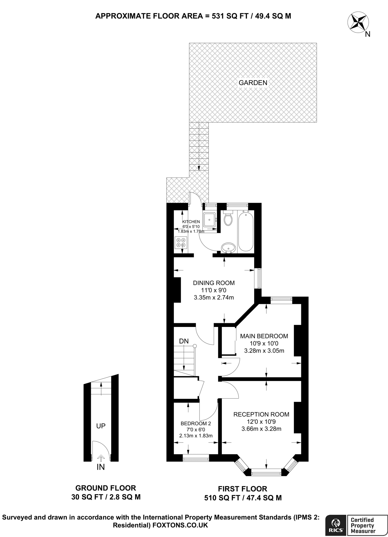
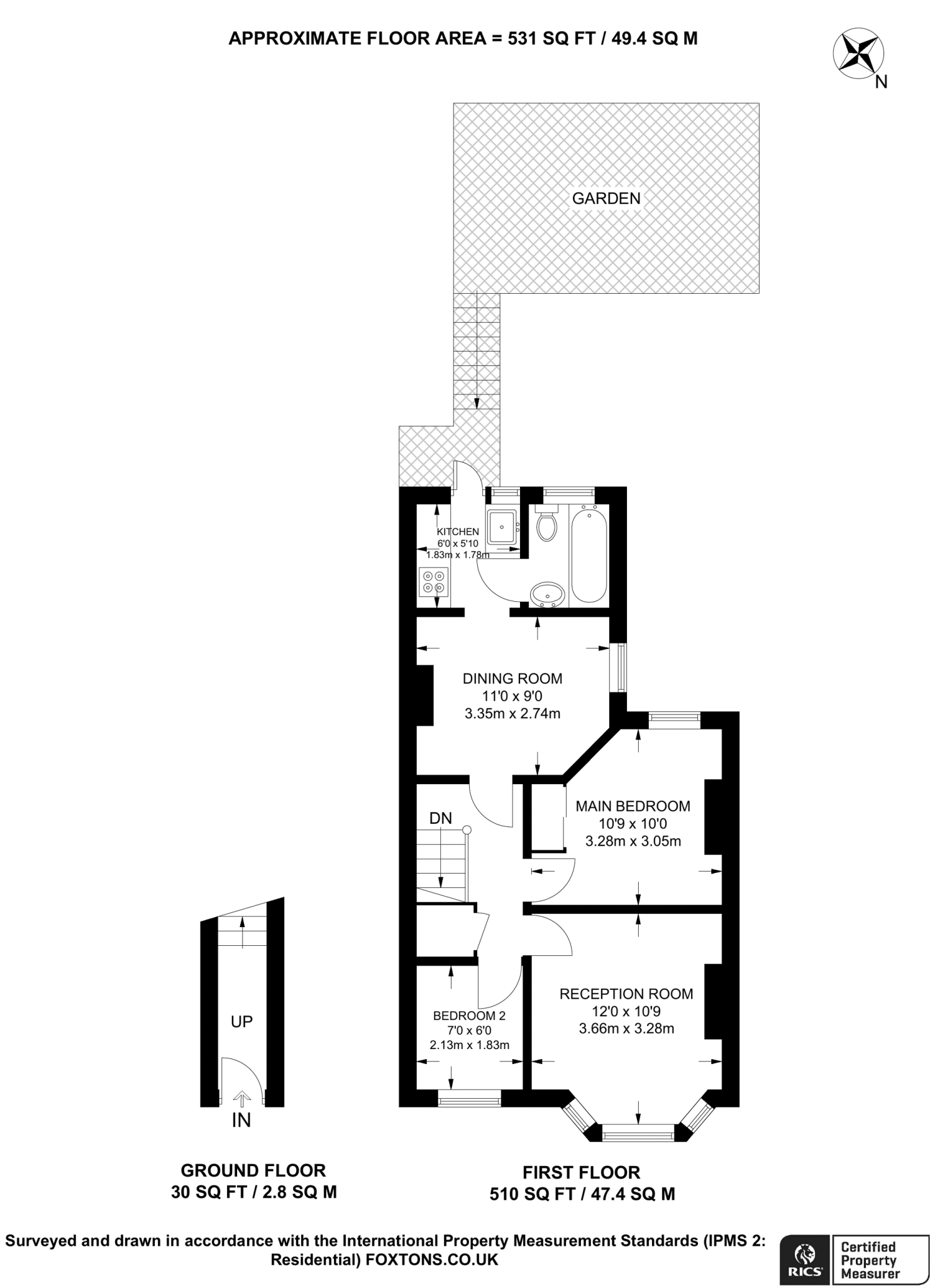
Great starter home with private garden and long lease in sought SW19 location.
Private ground-floor entrance with internal stairs to first-floor accommodation
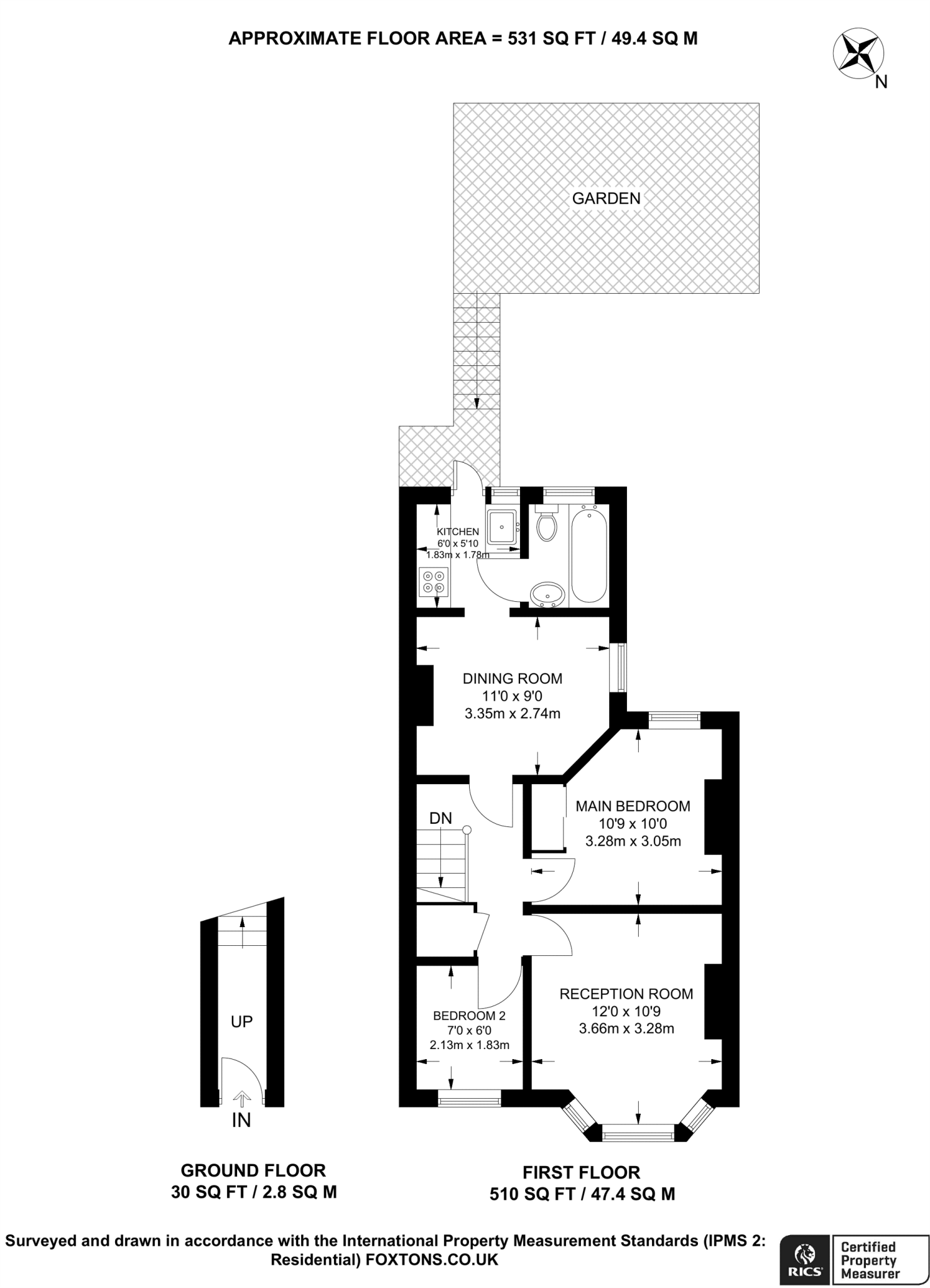
Set on a quiet residential road in SW19, this compact two-bedroom maisonette offers a private ground-floor entrance and a sunny patio garden. The bay-front reception room and separate dining-adjacent kitchen provide a straightforward layout that will suit first-time buyers seeking a manageable project with outdoor space.
The property requires modernisation throughout, so buyers should budget for updating kitchen, bathroom and general decorative works. The building dates from the 1930s–1940s with solid brick walls (likely uninsulated) and double glazing of unknown install date. Heating is mains gas via a boiler and radiators; the long lease (147 years) reduces immediate lease-related costs.
At about 531 sq ft, the flat is small but well laid out with two bedrooms and a private section of garden reached by internal stairs. Transport, shops and cafés in Wimbledon and Tooting are close by; excellent mobile signal and fast broadband support home working. Flood risk is medium — factor insurance and any ground-floor prevention measures into your plans.
This is a clear buy-for-improvement: buyers wanting a ready-to-move-in home should look elsewhere, but those prepared to renovate can add value and personalise the space while benefiting from a long lease and a private outdoor area.
1 bedroom maisonette for sale in Hartfield Crescent, Wimbledon, London, SW19 — £425,000 • 1 bed • 1 bath • 446 ft²
2 bedroom flat for sale in Hartfield Crescent, Wimbledon, London, SW19 — £450,000 • 2 bed • 1 bath • 589 ft²
2 bedroom maisonette for sale in Boundary Road, London, SW19 — £465,000 • 2 bed • 1 bath • 681 ft²
2 bedroom maisonette for sale in Havelock Road, London, SW19 — £450,000 • 2 bed • 1 bath • 651 ft²
2 bedroom house for sale in Abbey Road, London, SW19 — £450,000 • 2 bed • 1 bath • 521 ft²
2 bedroom maisonette for sale in Boyd Road, SW19 — £490,000 • 2 bed • 1 bath • 639 ft²






































































































































































































































































