**Standout Features:**
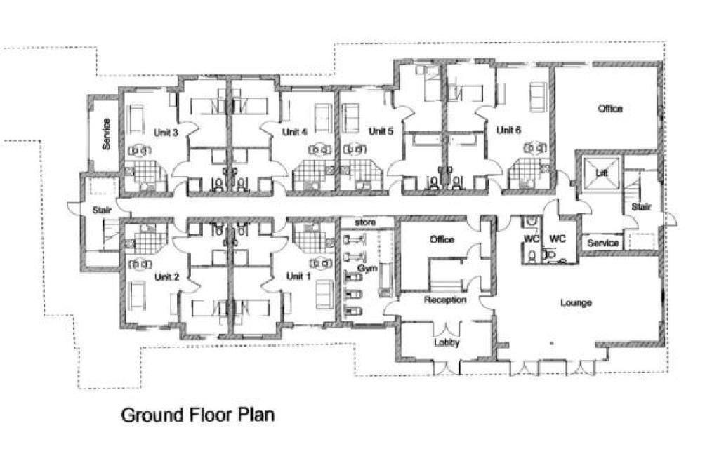
- Former site of St Nicholas' Church with approved planning permission for 30+ one-bedroom apartments and associated amenities.
- Contemporary design incorporating modern elements and traditional features.
- Potential to tailor the development for various residential and care facility needs.
- Spacious plot size with potential for gated executive entrance.
- Excellent mobile signal and fast broadband speeds.
**Notable Considerations:**
- High local crime rate and a classification of area deprivation.
- Development flexibility contingent on planning permissions for additional construction options.
This unique freehold land opportunity is perfect for ambitious investors and developers looking to capitalize on a prime location with existing permissions. With a strategic plan approved for 30+ stylish one-bedroom apartments complemented by office space, a gym, and community areas, this site can cater to a diverse demographic. Nestled within a well-connected major conurbation, the property lies close to reputable schools and essential amenities. 
Whether you envision creating a thriving residential community or a specialized care facility, the flexibility in development options allows you to personalize your vision. This rare offering won't last long—seize the chance to transform this expansive plot into a lucrative investment!
 Land for sale in Former St. Nicholas Church, Front Street, Hetton, DH5 — £300,000 • 1 bed • 1 bath
 Land for sale in Former St. Nicholas Church, Front Street, Hetton, DH5 — £300,000 • 1 bed • 1 bath Property for sale in Front Street, Hetton-Le-Hole, Houghton-Le-Spring, DH5 — £300,000 • 1 bed • 1 bath
 Property for sale in Front Street, Hetton-Le-Hole, Houghton-Le-Spring, DH5 — £300,000 • 1 bed • 1 bath Property for sale in Crossgate, Durham, DH1 — £300,000 • 1 bed • 1 bath • 7000 ft²
 Property for sale in Crossgate, Durham, DH1 — £300,000 • 1 bed • 1 bath • 7000 ft² Land for sale in House & Two Plots, Smithfield, Pity Me, Durham, DH1 — £600,000 • 1 bed • 1 bath
 Land for sale in House & Two Plots, Smithfield, Pity Me, Durham, DH1 — £600,000 • 1 bed • 1 bath Land for sale in Land Rear Of John Street South, Meadowfield, DH7 — £750,000 • 1 bed • 1 bath • 5630 ft²
 Land for sale in Land Rear Of John Street South, Meadowfield, DH7 — £750,000 • 1 bed • 1 bath • 5630 ft² Land for sale in Land At Back John Street, Meadowfield, Durham, DH7 — £295,000 • 1 bed • 1 bath • 20473 ft²
 Land for sale in Land At Back John Street, Meadowfield, Durham, DH7 — £295,000 • 1 bed • 1 bath • 20473 ft²














































