**Standout Features:**
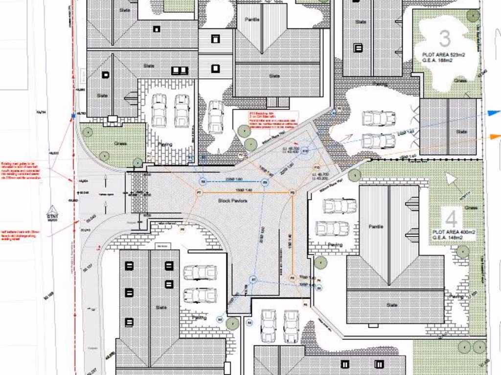
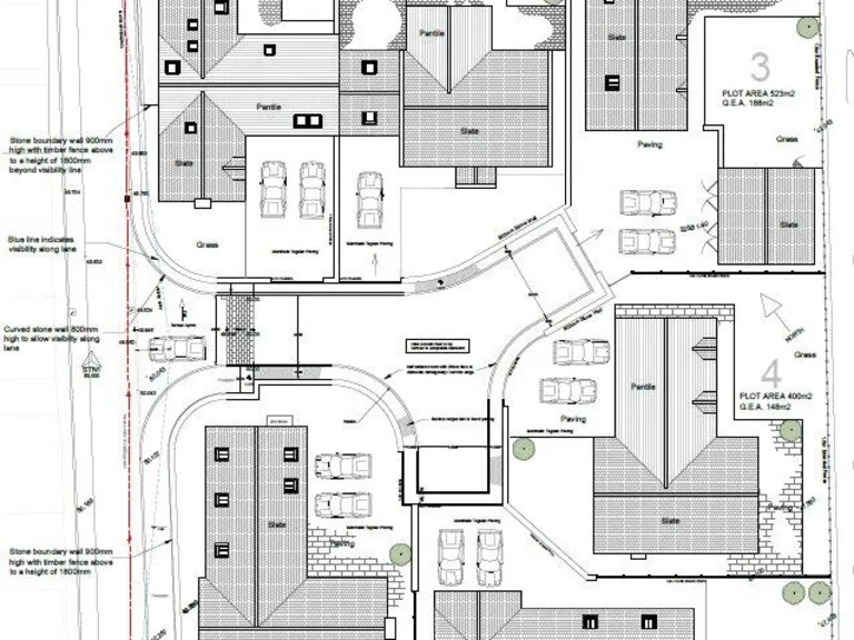
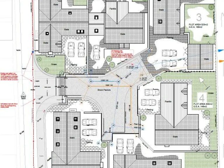
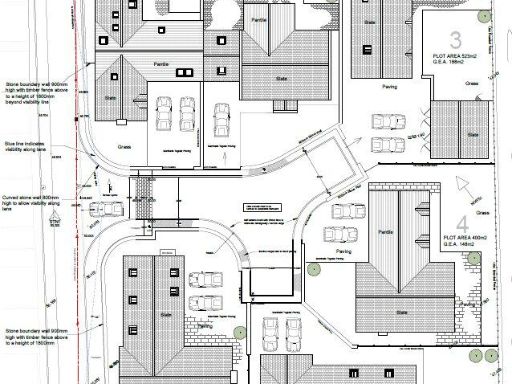
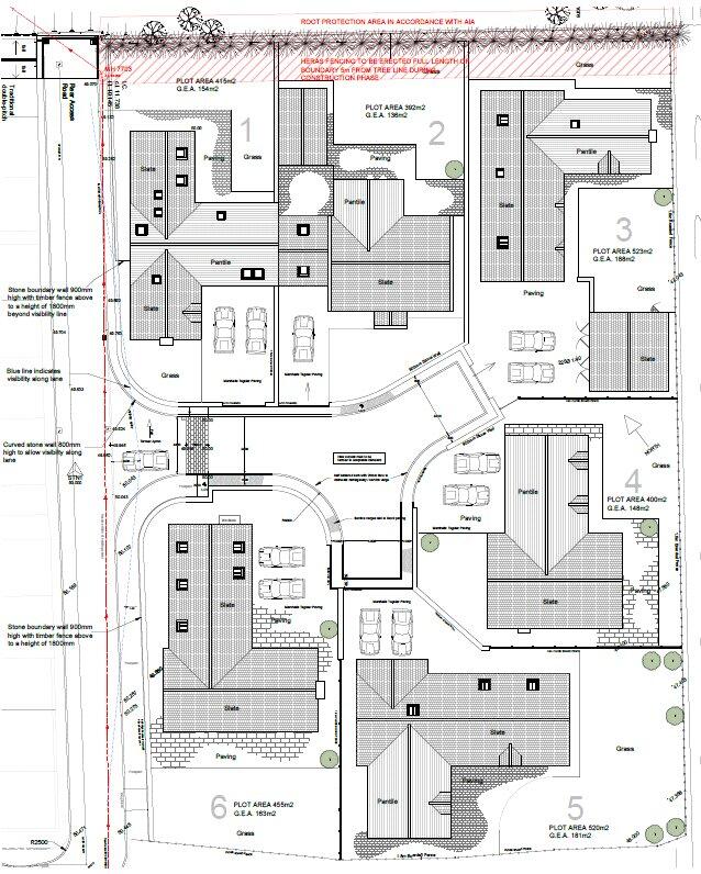
- **Large Development Land**: 6 exclusive plots totaling approximately 0.32 hectares (0.79 acres)
- **Planning Permission**: Approved for 6 residential dwellings, enhancing investor value
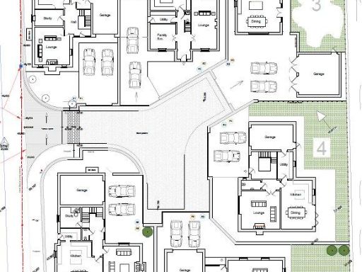
- **Flexible Design Options**: Requires minor modifications for individual dream home proposals
- **Affluent Location**: Situated in a low-crime, well-educated area with excellent mobile signal and average broadband speeds
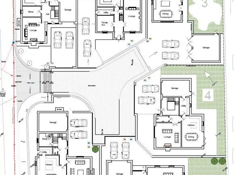
- **Garden and Garage**: Each plot offers ample outdoor space and designated parking
This prime development opportunity in Meadowfield, Durham, boasts a generous size of 5,630 square feet per plot, making it ideal for investors or builders looking to create a residential haven. With planning permission secured for the erection of six modern homes, this site is primed for development in a thriving community characterized by its affluent status and excellent school options, including Good-rated primary schools and an Outstanding secondary school nearby.
Although the site is primarily vacant, potential purchasers should note the requirement to apply for any variations to the existing planning consent. However, with support from a knowledgeable in-house planning team, navigating this process can be seamless. The surrounding area combines residential comfort with commercial convenience, yielding both lifestyle and investment potential.
Do not miss out on this unique chance to secure your piece of desirable real estate. With plots starting at just £100,000, seize the opportunity to develop in a community that prioritizes comfort, safety, and future growth, before these exclusive offerings are claimed!
Property for sale in Land At Back John Street, Meadowfield, Durham, DH7 — £295,000 • 1 bed • 1 bath
Land for sale in Land At Back John Street, Meadowfield, Durham, DH7 — £295,000 • 1 bed • 1 bath • 20473 ft²
Plot for sale in Fair View, Esh Winning, Durham, DH7 — £180,000 • 1 bed • 1 bath
Land for sale in House & Two Plots, Smithfield, Pity Me, Durham, DH1 — £600,000 • 1 bed • 1 bath
Land for sale in Residential Plot, St Oswald's Drive, Durham, DH1 — £275,000 • 1 bed • 1 bath
Land for sale in Land To The West Of 10 Farnley Ridge, Durham, DH1 — £250,000 • 1 bed • 1 bath • 3441 ft²


















