**Standout Features:**
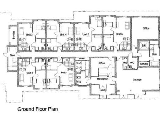
- Planning permission approved for 30+ one-bedroom apartments, including amenities like office space, reception, lounge area, and a gym.
- Excellent location in Hetton Le Hole, near a diverse range of shops and local services.
- Options for future development exist, pending additional planning approvals.
**Key Considerations:**
- The area is classified as high crime, which may impact desirability.
- The parcel of land requires a covenant fee.
- Local demographics indicate a blend of white professionals and social renters.
Elevate your investment portfolio with this exceptional land opportunity in Hetton Le Hole, complete with approved planning for over 30 contemporary one-bedroom apartments. Envision a thriving residential care facility or multifamily housing enriched with essential amenities like a lobby and gym for future residents. Positioned near a variety of shopping and recreational options, this site attracts not only investors but also developers with vision. While the area faces challenges such as higher crime rates, it offers significant rental and development potential, especially with its proximity to quality schools and local conveniences.
Don’t miss out on the chance to transform this property into a valuable asset catering to community needs. With flexible development options and excellent mobile and broadband connectivity, now is the time to secure your stake in this promising location. Take action today—opportunities like this don’t last long!
Office for sale in Front Street Hetton Le Hole Houghton Le Spring, DH5 — £100,000 • 1 bed • 1 bath
Property for sale in Front Street, Hetton-Le-Hole, Houghton-Le-Spring, DH5 — £300,000 • 1 bed • 1 bath
Commercial development for sale in Development Opportunity For Sale in Hetton, Hetton Nursery School, Victoria Street, Hetton, Houghton Le Spring, DH5 9DG, DH5 — POA • 1 bed • 1 bath • 22651 ft²
High street retail property for sale in Front Street, Hetton-le-Hole, Houghton Le Spring, Tyne and Wear, DH5 9PF, DH5 — £360,000 • 1 bed • 1 bath
Land for sale in Development Land, Silksworth Lane, Sunderland, SR3 — £650,000 • 1 bed • 1 bath • 1920 ft²
Land for sale in High Grange Farm, Hett, DH6 — £100,000 • 1 bed • 1 bath






















