**Standout Features:**
- **Size:** Large plot of land measuring approximately 0.17 acres (7405 sq ft).
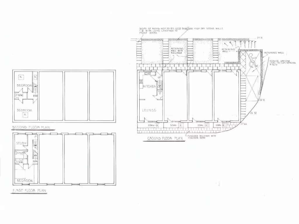
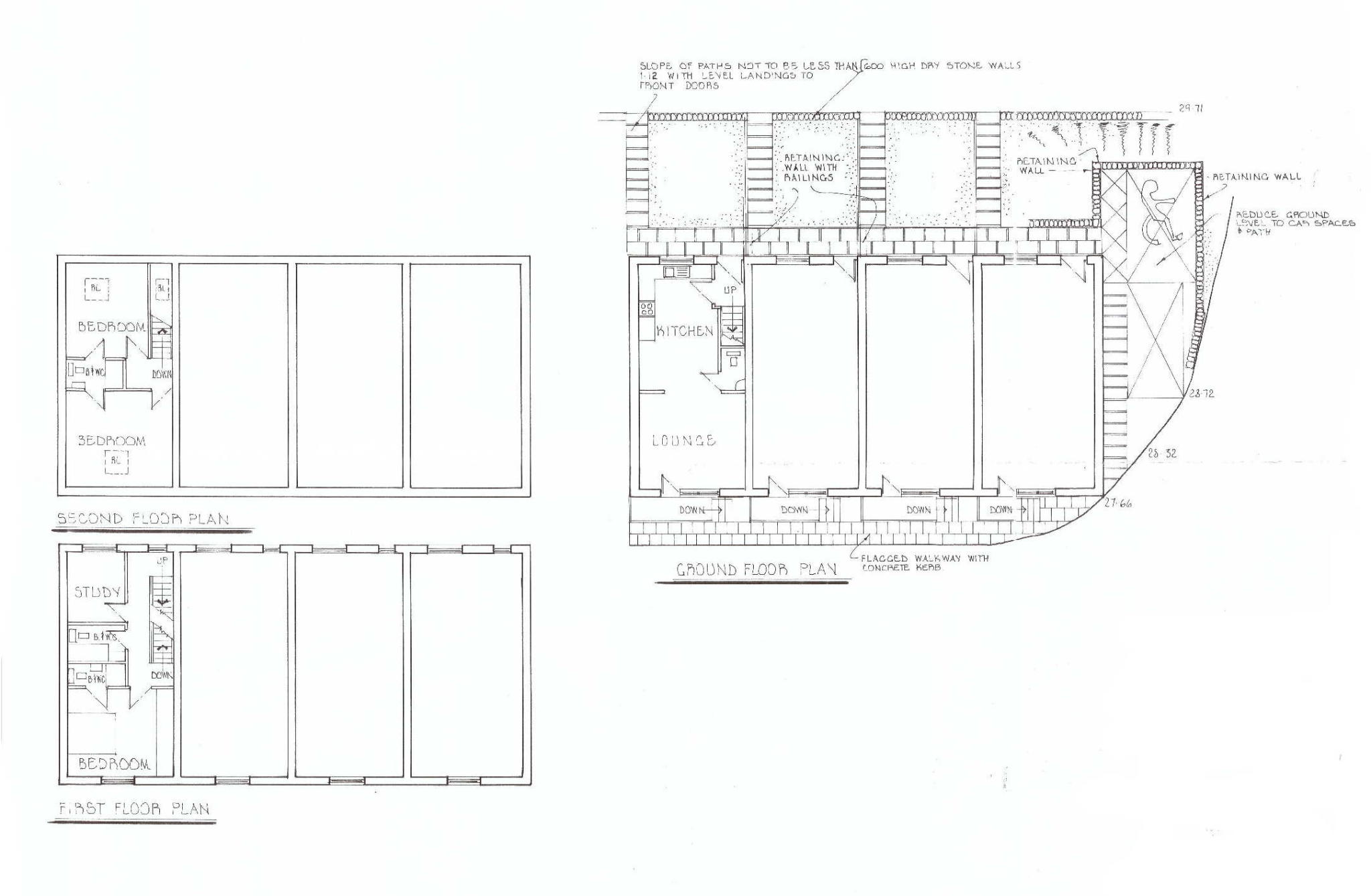
- **Planning Permission:** Full planning permission granted for 4 townhouses.
- **Residential Location:** Nestled in a popular area with strong potential for urban development, close to Saddleworth and Lees.
- **Accessibility:** Convenient access to local amenities, schools, and major roads (A62).
- **Community:** Part of a neighborhood with low crime rates and a mix of white professionals and aspiring urban households.
**Summary:**
Discover a prime development opportunity with this generous 0.17-acre plot in the sought-after OL4 3PZ area. Fully approved for the construction of four modern townhouses, this land offers the perfect canvas for a lucrative investment in a thriving residential community. Surrounded by amenities, schools with good ratings, and excellent transport links to Oldham, Manchester, and Huddersfield, this site is ideal for both builders and investors looking to capitalize on urban growth.
The property currently features sloping grasslands with timber garages that can be easily demolished to make way for your vision. With planning reference VAR/351088/23 available from Oldham Council, prospective buyers can confidently explore this unique opportunity without delay. The low crime rates and vibrant local atmosphere make it an appealing choice for families, ensuring a strong rental market or resale potential. Don’t miss out on the chance to make your mark in this attractive residential neighborhood!
Land for sale in Land at Falinge Fold, Healey, Rochdale OL12 6LE , OL12 — £180,000 • 1 bed • 1 bath • 1345 ft²
Land for sale in Land at Delph New Rd OL3 5BY, OL3 — £330,000 • 1 bed • 1 bath
Land for sale in Woolley Bridge, Hadfield, SK13 — £725,000 • 1 bed • 1 bath • 679 ft²
Land for sale in Rochdale Old Rd, Bury - Land With Planning For 5 Homes, BL9 — £200,000 • 3 bed • 2 bath
Land for sale in Land running along Watersheddings Street, Oldham, Greater Manchester OL4 2RF, OL4 — £2,000 • 1 bed • 1 bath • 9217 ft²
Plot for sale in Waterfold Lane, Bury, BL9 — £400,000 • 1 bed • 1 bath






















