BL9 7JY - Plot for sale in Waterfold Lane, Bury, BL9

View on Property Piper

Plot for sale in Waterfold Lane, Bury, BL9

Summary - HEAP BRIDGE SOCIAL CLUB, WATERFOLD LANE BL9 7JY

1 bed 1 bath Plot

**Standout Features:**
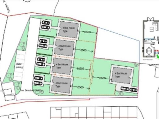
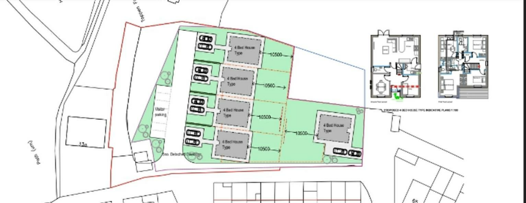
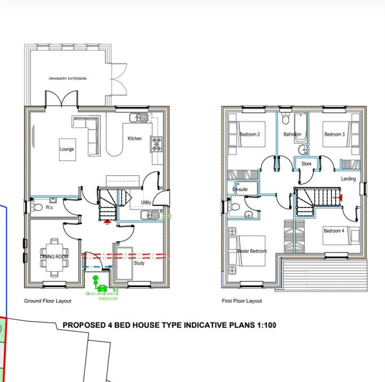
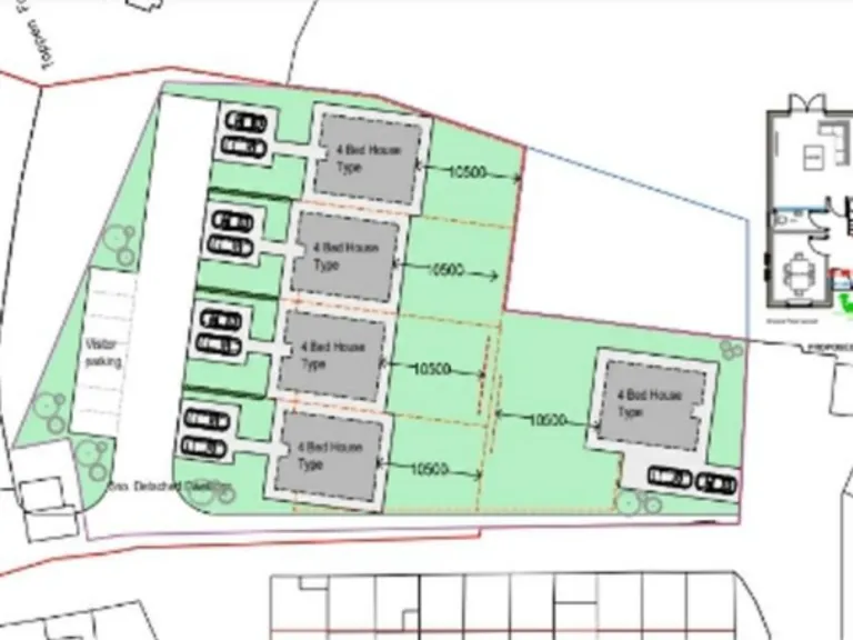
- Freehold land with outline planning permission for 5 detached homes
- Conveniently located near M66 motorway, 1 mile from both Bury and Heywood town centres
- Excellent mobile signal and fast broadband speeds
- Very low crime rate in the area
- Close to a selection of schools with Good Ofsted ratings

**Details & Potential Concerns:**
- Plot size conducive for moderate-sized gardens and private driveways
- Some areas may require clean-up and site restoration due to current overgrown conditions
- The vendor will retain a single plot on the south side of the site, which will be fenced off upon completion

**Summary:**
Explore a lucrative opportunity with this Freehold parcel of land, ideally suited for developers or investors looking to capitalize on the granted outline planning permission for the construction of five modern detached houses. Nestled conveniently off Waterfold Lane, this property boasts easy access to major transport routes and local amenities, ensuring a desirable location for future homeowners.

While the site may need some initial cleanup due to its overgrown state, the potential for a community of upscale residences is undeniable. Given the proximity to various schools rated 'Good' by Ofsted, this property is perfectly positioned for families seeking safety and convenience. With the added benefit of low crime rates and fast internet connectivity, there's no need to wait—seize your chance to transform this developing land into a thriving residential area! Offers are sought in the region of £390,000 for four plots, so act quickly before this opportunity passes you by.

Property Details

Brochure Descriptions

Image Descriptions

Textual Property Features

Detected Visual Features

Nearby Schools

Nearest Bars And Restaurants

,,,,}

Nearest General Shops

,,}

Nearest Grocery shops

,,}

Nearest Supermarkets

,,}

Nearest Religious buildings

,,}

Nearest Medical buildings

,,,}

Nearest Airports

}

Nearest Leisure Facilities

,,,,}

Nearest Tourist attractions

,,}

Nearest Train stations

,,,,}

Nearest Bus stations and stops

,,,,}

Nearest Hotels

,,}

Tags

Local Market Stats

Similar Properties

Meta

High Res Images

Compatible Images

Low res Images

Thumbnails

Raw Images