Cleared, permitted plot with foundations in place — ready for your designed family home.
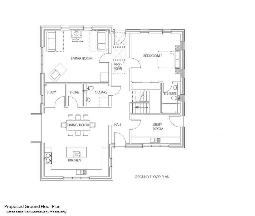
Full planning permission for a 1,733 sq ft family home (Ref: LIVE/0458/FUL/17)
Foundations installed and service track in place for immediate access
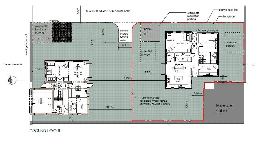
Plot bounded by stone walls and timber fencing; elevated country views
Freehold title; no recorded flood risk
Plot within small residential cluster; semi-private setting
Broadband speeds reported as slow; expect limited rural internet
Site constraints from existing boundaries and neighbouring buildings
Buyer must complete construction and connect remaining services
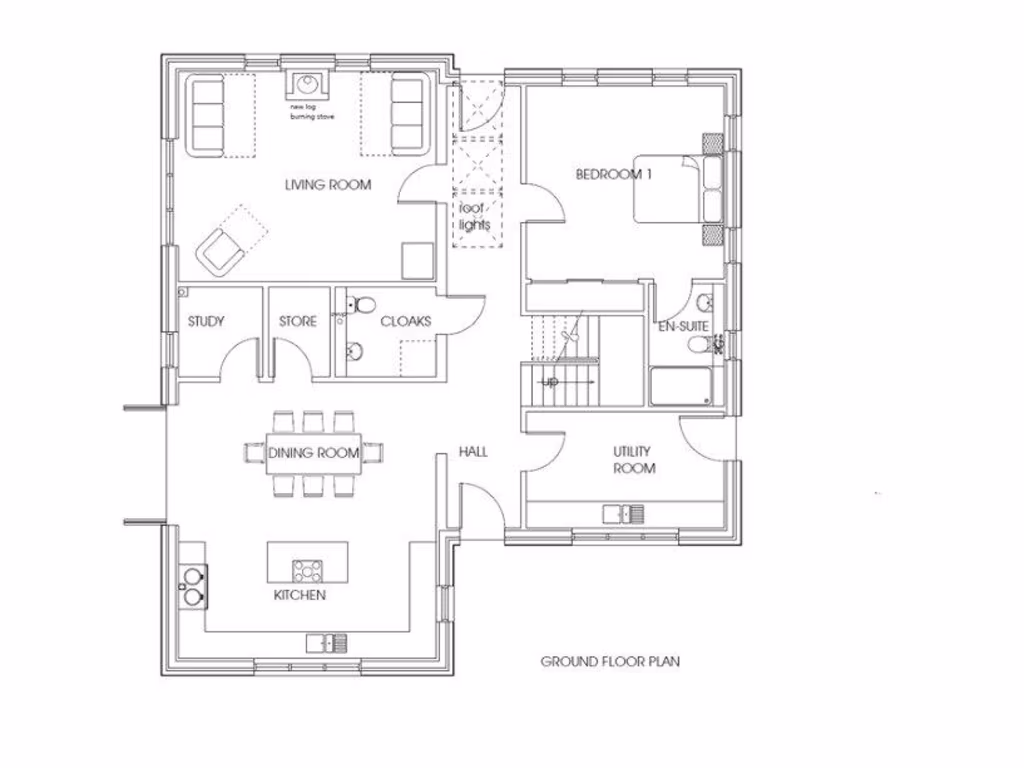
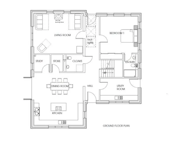
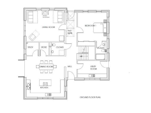
A rare cleared development plot with full planning permission for a 1,733 sq ft family home, set in a small, semi-rural enclave roughly 3.5 miles from Linlithgow. Foundations are already in place and a service track provides immediate vehicular access, so an incoming buyer can progress building more quickly than from a greenfield start. The site is bounded by traditional stone walls and timber fencing, giving privacy and sheltered garden space, with wide-ranging views over arable fields.
The approved design by a local architectural practice offers a contemporary, statement home within a traditional rural context. This location suits buyers seeking countryside living while remaining within commuting distance of Edinburgh and Glasgow. The plot sits amid converted outbuildings and a larger period house, so it benefits from a settled residential character rather than isolation.
Practical considerations are straightforward and must be accepted: mains foundations and service track exist but completion of the house and on-site services is required. Broadband speeds are reported as slow, and immediate site constraints include existing boundaries and neighbouring buildings that will influence final layout and landscaping. The plot is freehold and has no recorded flood risk, but local council tax and some service connections are not yet confirmed.
This opportunity will suit a buyer who wants control over design and specification and who is prepared to manage the build process or appoint a contractor. It is a fast route to a bespoke rural home with established planning, but not a turnkey purchase—factor in build costs, service connections and finishing timescales when considering budget and timetable.
Land for sale in Afton Plots, Candie, FK1 — £160,000 • 1 bed • 1 bath
Land for sale in Pardovan Holdings Building Plot, Linlithgow, EH49 — £190,000 • 1 bed • 1 bath
Plot for sale in Development Site At Limefield Mains, Limefield Mains, Polbeth, West Calder, EH55 — £600,000 • 1 bed • 1 bath
Mixed use property for sale in Land & Buildings by Cathlaw Lane Torphichen, West Lothian , EH48 — £175,000 • 1 bed • 1 bath
Plot for sale in Residential Development Opportunity, Linlithgow, EH49 — £210,000 • 1 bed • 1 bath • 320 ft²
Plot for sale in Plot 11, McBeath Avenue, Limefield Mains, EH55 8FZ, EH55 — £150,000 • 1 bed • 1 bath • 2701 ft²






































