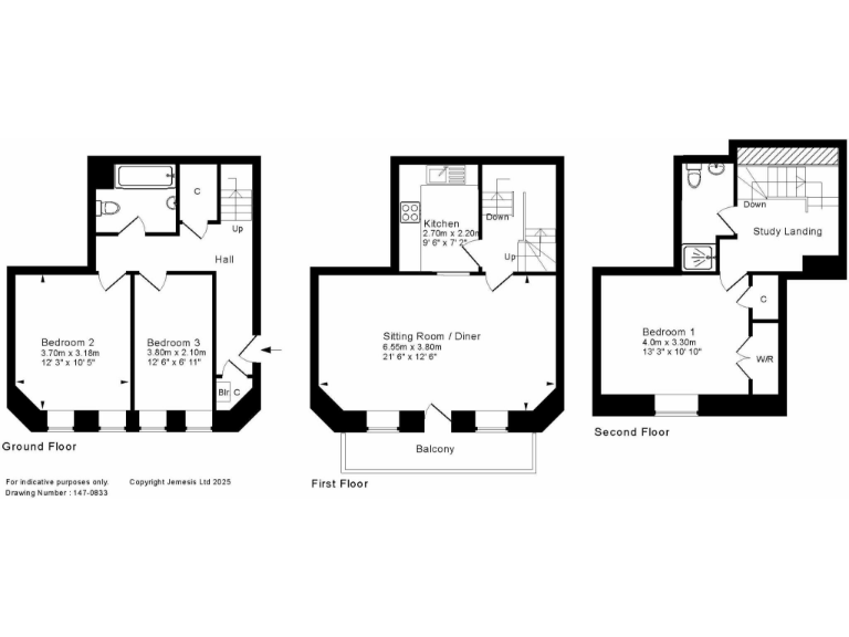
Characterful three-bedroom house with balcony, patio and communal grounds.
21' sitting room/diner with oak floor and first-floor balcony
Set within a converted Grade II listed former hospital, this three-storey terraced house offers characterful living with modern updates. The principal room is a 21' sitting room/diner with oak flooring, high ceilings and a first-floor balcony that looks over open farmland. A private ground-floor patio and park-like communal grounds add outdoor space and a lock-up-and-leave feel.
The layout suits families or professionals seeking village-edge living: two bedrooms on the ground floor, a principal bedroom with a newly refitted en-suite shower room on the second floor, and a recently refitted bathroom serving the other bedrooms. The kitchen includes fitted units, oven, hob and washing machine plumbing, while allocated off-street parking and ample visitor spaces meet practical needs.
Buyers should note material points plainly. The building’s Grade II listing may restrict alterations and can complicate maintenance or permissions. The property is leasehold with an annual service charge of approximately £1,814 and a ground rent of £75. There is a mandatory identity verification/disbursement fee for purchasers. Despite recent renovations, prospective buyers should confirm any outstanding listed-building responsibilities and running costs.
This home is chain-free and set in a popular Wells location with nearby schools, green spaces and easy access to Bath and Bristol. It’s an attractive, characterful option for those wanting a mix of period charm and recently improved interiors, so viewings are recommended to appreciate the outlook and layout.
3 bedroom terraced house for sale in Lower Chapel Court, South Horrington Village, Wells, BA5 — £280,000 • 3 bed • 2 bath • 808 ft²
3 bedroom terraced house for sale in East Court, South Horrington Village, Wells, Somerset, BA5 — £284,000 • 3 bed • 1 bath • 1384 ft²
2 bedroom flat for sale in South Horrington, Nr Wells, BA5 — £160,000 • 2 bed • 1 bath • 603 ft²
3 bedroom terraced house for sale in South Horrington Village, Wells, BA5 — £425,000 • 3 bed • 2 bath • 1348 ft²
2 bedroom flat for sale in South Horrington, Wells, BA5 — £235,000 • 2 bed • 2 bath • 678 ft²
2 bedroom terraced house for sale in Lower Chapel Court, South Horrington, Wells, Somerset, BA5 — £215,000 • 2 bed • 1 bath • 425 ft²


















































































