**Standout Features:**
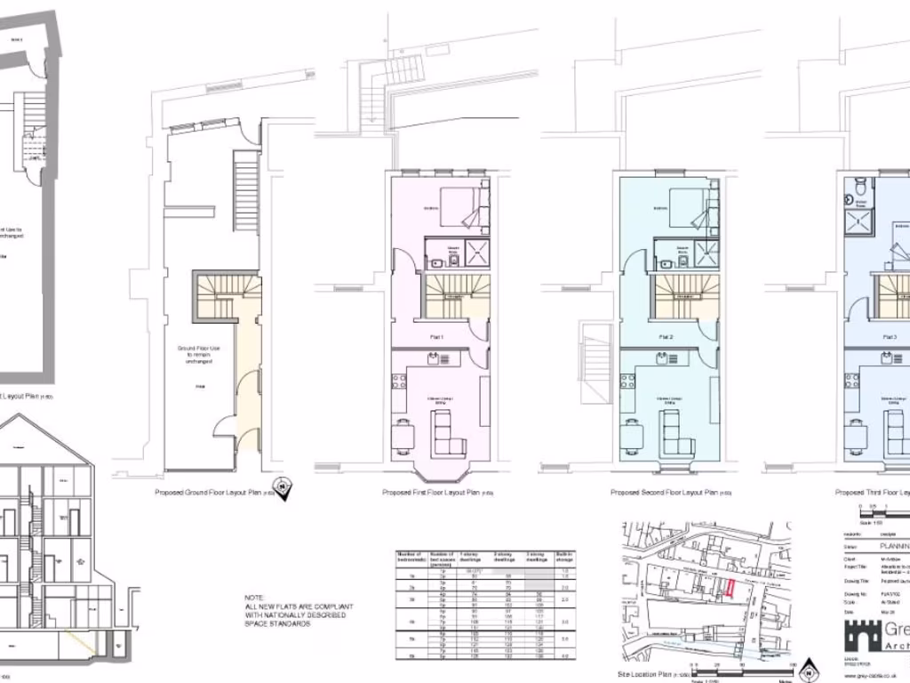
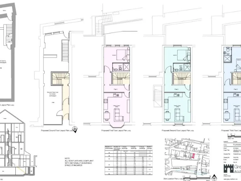
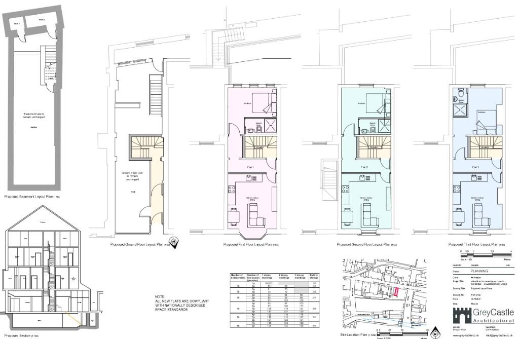
- Four-storey city center property with an impressive Victorian facade.
- Total internal area of 213 sq.m (2,290 sq.ft) provides ample space.
- Recently granted planning permission to convert floors into three 1-bedroom flats.
- Air conditioning throughout, ensuring comfort across all levels.
- Located in Lincoln's vibrant prime shopping area, close to major brands and amenities.
- Vacant possession upon completion, making it immediately available.
**Concerns:**
- Older building structure; potential for required updates or renovations.
- Limited plot size, which may restrict certain expansions or alterations.
**Summary:**
Discover an exceptional investment opportunity at 4 Guildhall Street, a charming Victorian property nestled in the heart of Lincoln's bustling city center. Boasting over 2,300 square feet of versatile space, this four-storey building captures the essence of urban living with its historic appeal and modern potential. The property currently features a combination of commercial and residential areas, with the first, second, and third floors primed for transformation into three spacious 1-bedroom flats, thanks to recently approved planning permission.
Ideal for investors or developers looking to capitalize on Lincoln's vibrant city life, this property offers a wealth of possibilities, including retail, leisure, or residential development. Its prime location ensures easy access to a diverse range of amenities, making it a great choice for future tenants or customers. Experience the high ceilings, ample natural light, and the buzz of city living—this unique property is a must-see and won't last long in this hot market!
High street retail property for sale in 9 West Parade, Lincoln, Lincolnshire, LN1 1NL, LN1 — £550,000 • 1 bed • 1 bath • 3000 ft²
High street retail property for sale in High Street, Lincoln, Lincolnshire, LN5 — £175,000 • 1 bed • 1 bath • 980 ft²
House for sale in 320a High Street, Lincoln, LN5 7DW, LN5 — £140,000 • 1 bed • 1 bath • 560 ft²
5 bedroom apartment for sale in West Parade, Lincoln, Lincolnshire, LN1 1NL, LN1 — £550,000 • 5 bed • 4 bath • 3000 ft²
Office for sale in Offices for Sale, 19 Corporation Street, Lincoln, Lincolnshire, LN2 — £150,000 • 1 bed • 1 bath • 915 ft²
High street retail property for sale in Investment Property, 13 Steep Hill, Lincoln, Lincolnshire, LN2 — £400,000 • 1 bed • 1 bath • 1578 ft²


















































































