**Standout Features:**
- Prime location on historic Steep Hill, Lincoln.
- Fully let income-generating property, £32,500 per annum.
- Recently refurbished with a stylish beauty treatment facility and retail space.
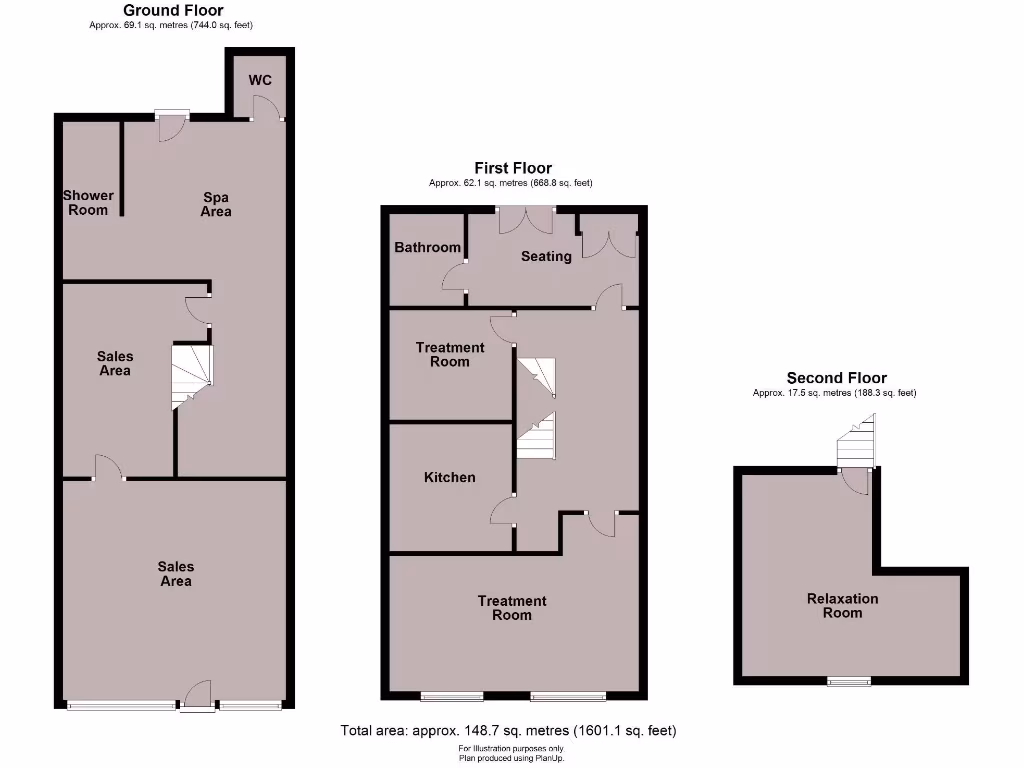
- Unique three-floor layout with total floor area of 1,578 sq.ft (146.6 sq.m).
- Surrounded by vibrant amenities and tourist attractions.
**Concerns:**
- Lease expiring in 2027 may affect mortgage options.
- Listed status may limit renovation or extension potential.
- Broadband speeds are slow.
Discover an exceptional investment opportunity at 13 Steep Hill, Lincoln, nestled in the heart of the city's bustling tourist district. This beautifully refurbished freehold property generates an impressive annual income of £32,500 and is currently operating as a retail space combined with a luxurious beauty treatment facility, complete with treatment rooms, a sauna, and outdoor relaxation areas. Spanning 1,578 sq.ft, the property boasts a charming historic aesthetic with exposed beams and brickwork that enhance its unique character.
This prime location not only attracts travelers visiting the nearby Lincoln Castle and Cathedral but also benefits from a thriving local community, making it ideal for first-time investors looking to tap into the growing demand for quality retail and service spaces. While the property is set in a sought-after area, buyers should note the remaining lease until 2027, potentially complicating mortgage financing. The property’s listed status may also limit future renovations. Don't miss out on this rare opportunity to own a piece of Lincoln's rich heritage—schedule your viewing today!
High street retail property for sale in High Street, Lincoln, Lincolnshire, LN5 — £175,000 • 1 bed • 1 bath • 980 ft²
High street retail property for sale in Park Street, Lincoln, Lincolnshire, LN1 — £265,000 • 1 bed • 1 bath • 448 ft²
High street retail property for sale in 9 West Parade, Lincoln, Lincolnshire, LN1 1NL, LN1 — £550,000 • 1 bed • 1 bath • 3000 ft²
High street retail property for sale in High Street, Lincoln, Lincolnshire, LN5 — £200,000 • 1 bed • 1 bath • 1243 ft²
Residential development for sale in 4 Guildhall Street, Lincoln, LN1 1TT, LN1 — £310,000 • 1 bed • 1 bath • 2290 ft²
6 bedroom link detached house for sale in Spa Buildings, Lincoln, LN2 — £350,000 • 6 bed • 4 bath • 913 ft²










































































