Well-connected, budget-friendly two-bed for practical first-time buyers.
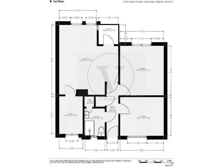
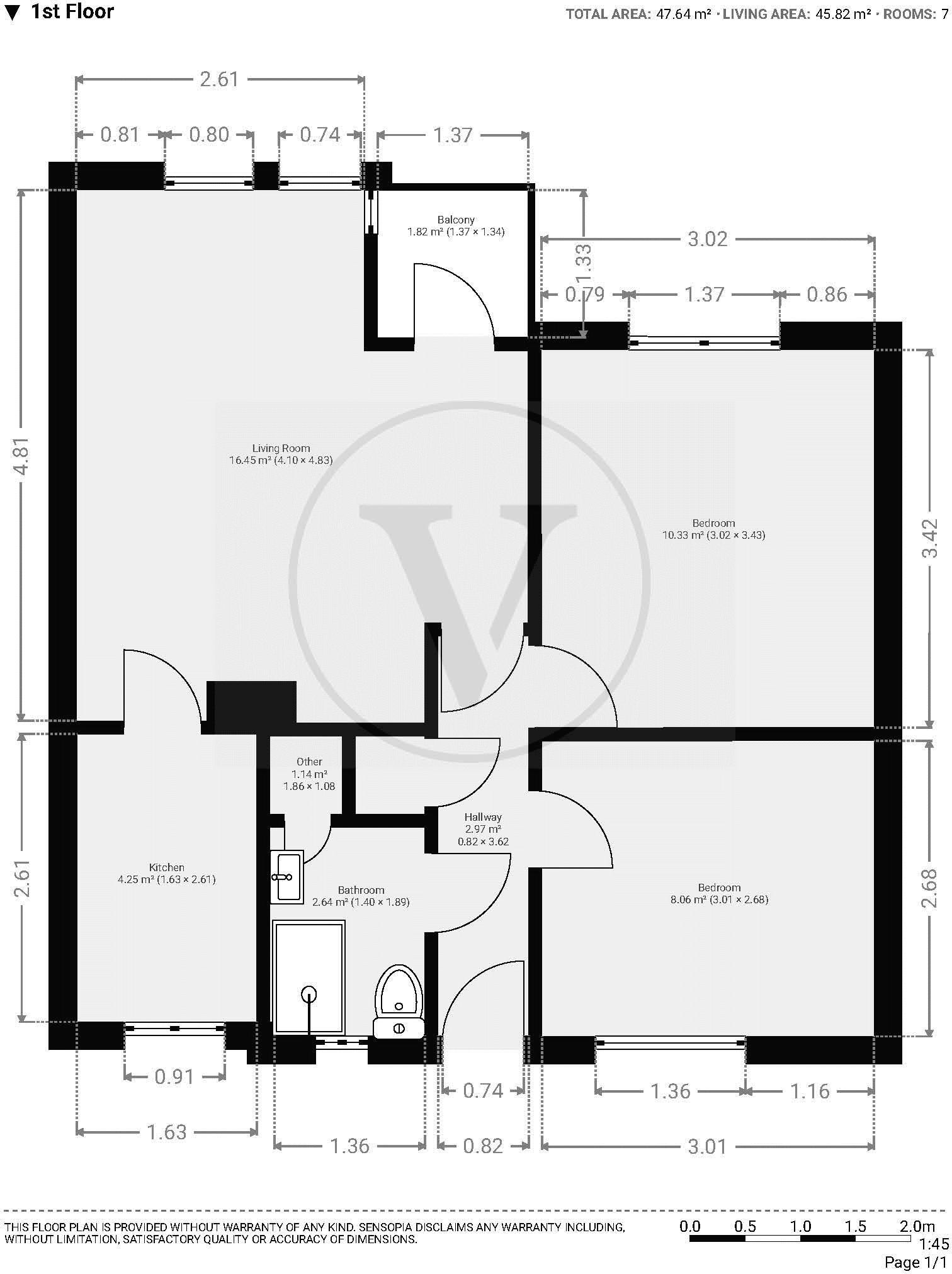
Two double bedrooms in compact 504 sq ft flat
Private balcony off a bright reception room
Long lease: 143 years remaining
Ground rent low: £150 per year
Council Tax Band B — inexpensive running cost
Very slow broadband speeds — affects home working
System-built walls assumed uninsulated — potential heat loss
Local area: high crime and very deprived — research recommended
This compact two-bedroom flat offers a practical, well-lit home for first-time buyers seeking easy transport links and low running costs. At about 504 sq ft the layout is efficient: two double bedrooms, a bright reception opening onto a private balcony, and a modern shower room. The building is a small, purpose-built block from the 1967–75 era with double glazing and gas central heating.
The property’s long lease (143 years remaining) and modest ground rent (£150) make it straightforward to mortgage and manage. Council tax is low (Band B), and the location provides outstanding public transport access to the City and Canary Wharf — a strong convenience for commuters.
Buyers should note practical downsides: the block is system-built with assumed minimal wall insulation, broadband speeds are reported as very slow, and the local area has higher crime levels and significant deprivation. These factors may affect comfort, broadband-dependent work, and rental appeal without some local-context research and potential upgrades.
Overall this is a sensible entry-price home with immediate usability and clear potential for improvement. It suits someone prioritising connectivity and low upfront tenure risk, who is comfortable addressing energy and connectivity upgrades over time.
2 bedroom flat for sale in Vallance Road, Bethnal Green, E1 — £425,000 • 2 bed • 1 bath • 643 ft²
2 bedroom flat for sale in Tower Hamlets, E14, Tower Hamlets, London, E14 — £350,000 • 2 bed • 2 bath • 667 ft²
2 bedroom flat for sale in Norton House, Bigland Street, Shadwell, London, E1 — £350,000 • 2 bed • 1 bath • 725 ft²
2 bedroom flat for sale in Ridley House, E14, Tower Hamlets, London, E14 — £400,000 • 2 bed • 1 bath • 669 ft²
2 bedroom flat for sale in Firewatch Court, 2 Candle Street, London, E1 — £435,000 • 2 bed • 1 bath • 620 ft²
2 bedroom apartment for sale in Coburg Dwellings, Hardinge Street, London, E1 — £400,000 • 2 bed • 1 bath • 584 ft²














































