Bright, low‑maintenance apartment ideal for first-time buyers or sharers close to transport.
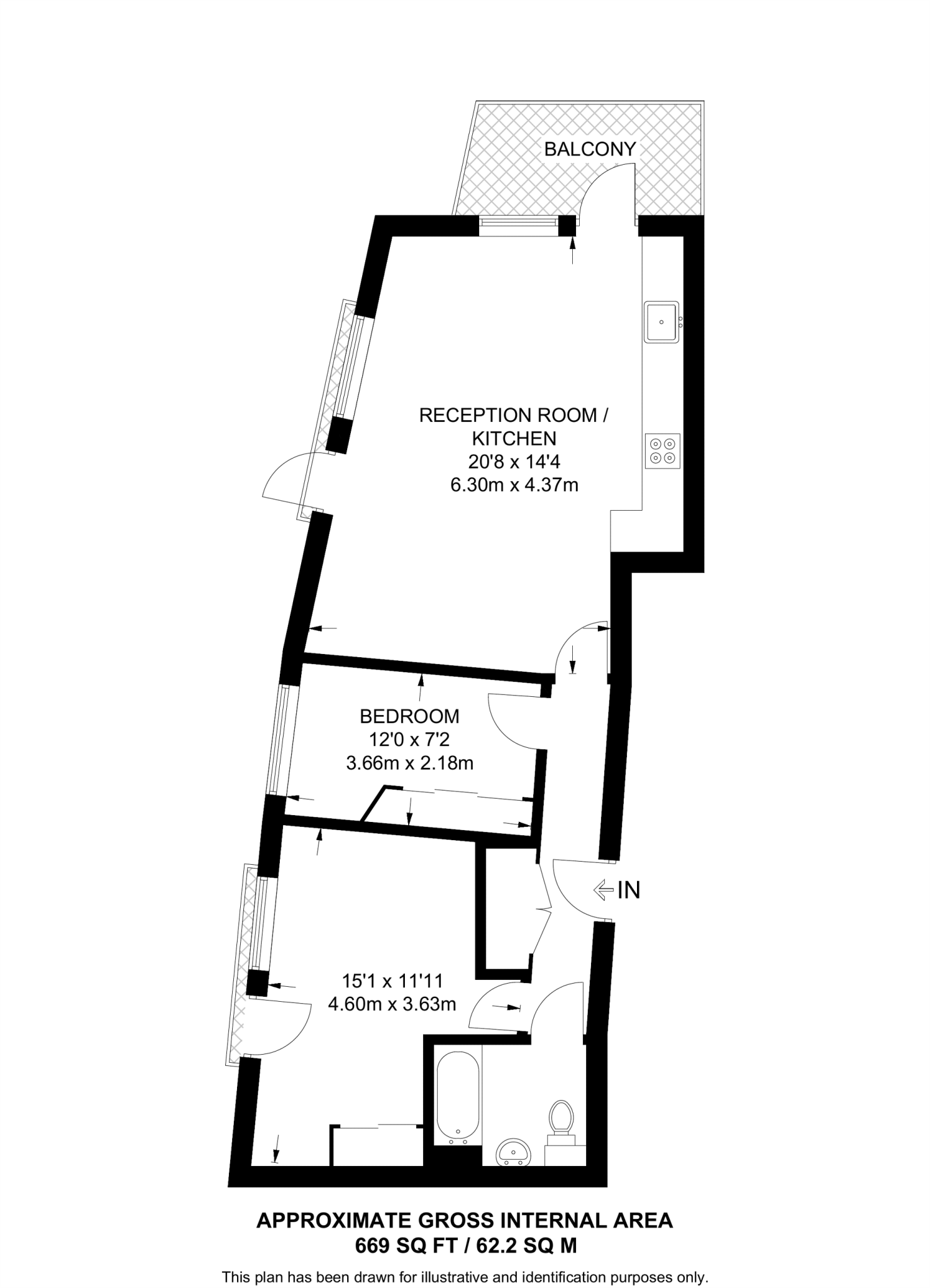
Private balcony with city views
Open-plan kitchen/reception, bright and airy
Two generous bedrooms with built-in storage
Approx 669 sq ft (average-sized flat)
115 years remaining on the lease (leasehold)
Service charge ~£2,206pa; ground rent £183pa
Community heating system; mains gas fuel
Area classed as deprived despite low crime rates
This bright two-bedroom apartment offers ready-to-live-in accommodation with a private balcony and an open-plan kitchen/reception room. At approximately 669 sq ft the bedrooms are generous and include built-in storage, making the layout practical for everyday living or sharers.
The property sits in a modern block built between 2007–2011, with double glazing and community heating. Broadband and mobile signals are strong, and local transport links put central London within easy reach — a definite appeal for first-time buyers who need reliable connectivity and commute options.
Buyers should note this is a leasehold flat with 115 years remaining, an annual service charge of about £2,206 and ground rent of £183. The local area scores as deprived despite low crime levels; that brings lower prices and investment potential but also means some neighbourhood services vary. The flat is well presented and suits purchasers seeking a low-maintenance, city-base property with straightforward scope for personalisation.
2 bedroom flat for sale in Ben Jonson Road, Tower Hamlets, London, E1 — £475,000 • 2 bed • 2 bath • 723 ft²
2 bedroom flat for sale in 6 Hay Currie Street, Tower Hamlets, London, E14 — £475,000 • 2 bed • 2 bath • 856 ft²
2 bedroom flat for sale in Sailors House, Tower Hamlets, London, E14 — £475,000 • 2 bed • 2 bath • 758 ft²
2 bedroom flat for sale in Geoff Cade Way, E3, Bow, London, E3 — £550,000 • 2 bed • 2 bath • 877 ft²
2 bedroom flat for sale in Rainhill Way, E3, Bow, London, E3 — £400,000 • 2 bed • 2 bath • 786 ft²
2 bedroom flat for sale in Christian Street, Aldgate, London, E1 — £490,000 • 2 bed • 2 bath • 853 ft²


































































































































































































