**Standout Features:**
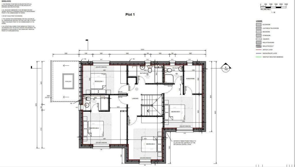
- Freehold land with planning permission (SL/2021/0571) for a detached 4-bedroom home.
- Access to essential services: water, septic tank, and electricity.
- Scenic location on the outskirts of Swarthmoor, surrounded by natural greenery.
- Spacious plot with potential for gardens, private parking, and a garage.
- Low local crime rate and excellent schools nearby, ideal for families.
**Summary:**
Discover an exceptional opportunity to create your dream home on this generous plot of land located on Ulverston Road, Swarthmoor. With planning permission approved for a modern detached 4-bedroom house, this freehold property is ready for development and already equipped with essential utilities. Imagine stunning forest views from your future home, along with the potential for private gardens and convenient off-street parking.
This peaceful setting offers a family-friendly atmosphere within a highly regarded community, with multiple 'Good' rated schools just a short distance away. The area boasts a low crime rate, making it a secure choice for your future family residence. Potential buyers can seize this rare chance to invest in a fast-growing region known for its affluent living and beautiful surroundings. Don’t miss out—this outstanding plot won’t remain available for long!
Land for sale in Ulverston Road, Swarthmoor, Ulverston, LA12 — £180,000 • 1 bed • 1 bath
Land for sale in Ulverston Road, Swarthmoor, Ulverston, LA12 — £300,000 • 1 bed • 1 bath
Plot for sale in 2 Woodland Road, Ulverston, LA12 0DX, LA12 — £400,000 • 1 bed • 1 bath • 850 ft²
Land for sale in Yarlside Road, Barrow-In-Furness, LA13 — £240,000 • 1 bed • 1 bath
Plot for sale in Daltongate, Ulverston, LA12 — £725,000 • 1 bed • 1 bath
Land for sale in Residential Development Site, Ulverston, LA12 — £1,100,000 • 1 bed • 1 bath


























































