**Standout Features:**
- Extremely large plot size of 473 sqm with potential for development
- Planning permission granted to build 5 apartments
- Off-street parking available
- Located within a low-crime, family-friendly residential area
- Proximity to excellent local primary and secondary schools
- Fast broadband speeds
**Potential Downsides:**
- Original property may need demolition
- CIL (Community Infrastructure Levy) of £60,000 applies
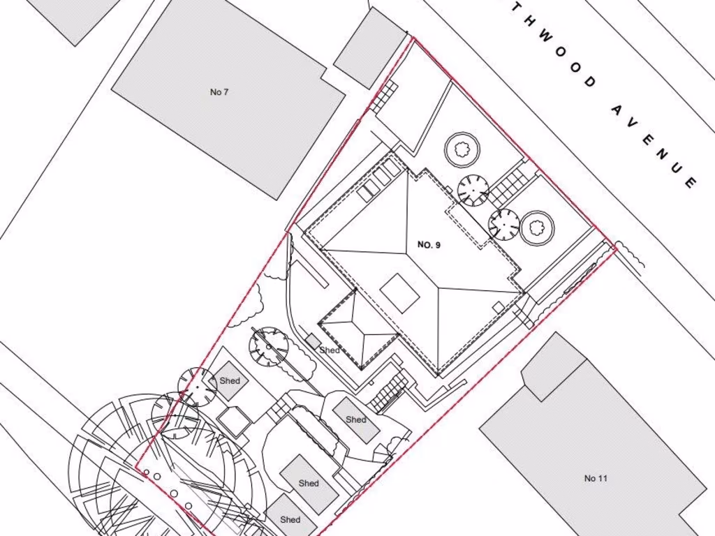
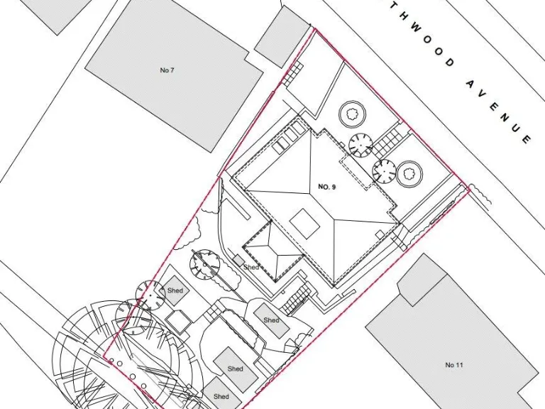
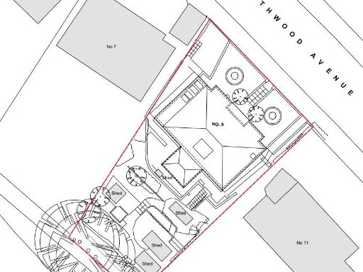
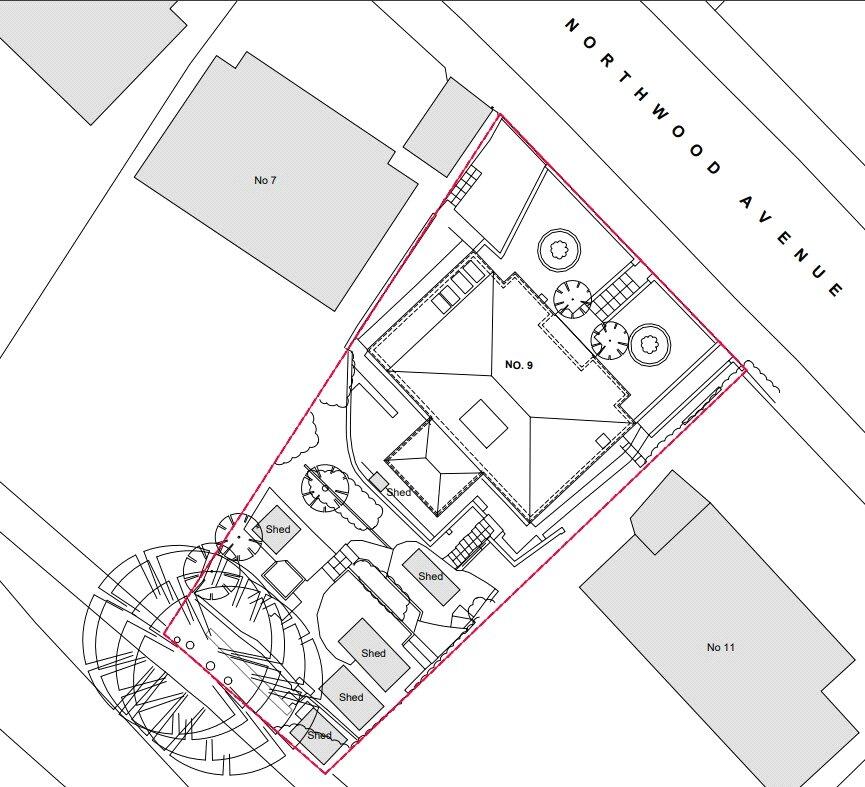
This exceptional development opportunity in postcode CR8 2ER presents a fantastic investment prospect. Currently featuring a detached chalet bungalow, the large plot allows for the construction of five stylish apartments—two one-bedroom units, two two-bedroom units, and one spacious three-bedroom unit—each with its own private outdoor space. The planned development taps into a lucrative rental market, bolstered by local amenities and reputable schools, including the outstanding Beaumont Primary School just 0.2 miles away.
Situated within a thriving urban community, you will benefit from easy access to Purley High Street for shopping and Reedham rail station for seamless transport links, creating a comfortable and connected living experience. While the property is positioned for exciting renovation and investment potential, buyers should be aware of the existing planning conditions and the associated CIL costs. Explore this rare opportunity to create a modern residential haven in a sought-after area—properties of this caliber don’t linger long!
Land for sale in Purley, Croydon, CR8 — £1,100,000 • 1 bed • 1 bath • 934 ft²
Residential development for sale in 11 Bramley Hill, Croydon, Surrey, CR0 — £1,400,000 • 1 bed • 1 bath • 4090 ft²
Plot for sale in Outwood Lane, Chipstead, CR5 — £1,250,000 • 1 bed • 1 bath • 3284 ft²
Plot for sale in St. George's Vicarage, Elstan Way, Shirley, Croydon, CR0 — £1,250,000 • 1 bed • 1 bath
3 bedroom detached house for sale in Beech Avenue, South Croydon, CR2 0, CR2 — £850,000 • 3 bed • 1 bath • 2417 ft²
5 bedroom detached house for sale in Love Lane, Mitcham, CR4 — £800,000 • 5 bed • 2 bath • 1751 ft²














