Rare Grade I palace with extensive grounds — major restoration and listed-consent work required.
Grade I listed and Scheduled Ancient Monument; major conservation constraints
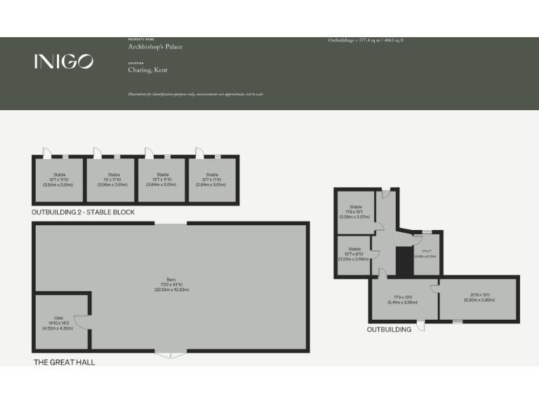
A staggeringly rare Grade I-listed and Scheduled Ancient Monument palace in Charing, offering an extraordinary conservation and development opportunity. The complex dates from the 13th–15th centuries (with fabric possibly older) and comprises the archbishop’s palace, great barn, lodgings, stables and outbuildings arranged around a medieval quadrangle with mature grounds and paddocks.
The buildings are historic and substantial: five bedrooms, roughly 31 rooms and around 16,014 sq ft across the site (the listing gives c.6,000 sq ft across main house and outbuildings). The roofscapes, timber trusses and high ceilings create dramatic spaces ideal for a private residence, events use, studios or workshops — subject to receiving necessary planning and listed-building consents.
There are significant practical constraints. The site requires ongoing restoration and maintenance work; parts are neglected and some interiors show damp and decay. Only one bathroom is recorded for the residential accommodation and the property has high ongoing running and repair costs. As a Grade I-listed Scheduled Ancient Monument, any alteration will be tightly controlled and may limit conversions or subdivision.
For the right custodian — a developer with conservation experience, a heritage trust or a private buyer prepared for a long-term restoration — this is a once-in-a-generation opportunity to secure a nationally important medieval complex in a picturesque Kent village. Good digital connectivity and direct rail services to London (around 90 minutes) add practical value, while opportunities for formal gardens, studios or event spaces exist subject to permissions.
4 bedroom semi-detached house for sale in Hope Haven, Charing, Kent, TN27 — £575,000 • 4 bed • 2 bath • 1992 ft²
4 bedroom detached house for sale in Central Charing, TN27 — £675,000 • 4 bed • 4 bath • 1805 ft²
4 bedroom terraced house for sale in High Street, Charing, Ashford, Kent, TN27 — £550,000 • 4 bed • 3 bath • 1734 ft²
4 bedroom terraced house for sale in School Road, Charing, Ashford, Kent, TN27 — £375,000 • 4 bed • 2 bath • 2029 ft²
3 bedroom terraced house for sale in The Moat, Ashford, TN27 0, TN27 — £675,000 • 3 bed • 2 bath • 2065 ft²
4 bedroom detached house for sale in The Street, Womenswold, Canterbury, Kent, CT4 — £650,000 • 4 bed • 2 bath • 2740 ft²










































































































































































