TN27 0JN - 4 bed georgian village home in School Road, TN27 0JN

View on Property Piper

4 bedroom terraced house for sale in School Road, Charing, Ashford, Kent, TN27

Summary - LEDBURY HOUSE SCHOOL ROAD CHARING ASHFORD TN27 0JN

4 bed 2 bath Terraced

Spacious four-bedroom period cottage with garden close to station and schools.
- Grade II listed Georgian terraced house, abundant period features
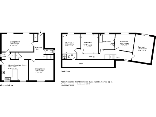
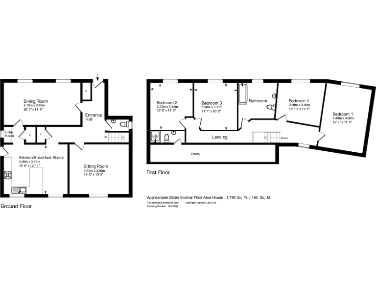
- Large overall size: approx. 2,029 sq ft across four bedrooms
- Two reception rooms, two bathrooms; garage and large terraced garden
- Listed status restricts alterations; conservation consent likely needed
- Some interior elements dated or worn; renovation likely required
- Fast broadband and excellent mobile signal; no flood risk
- Village centre location near shops, station and highly rated schools
- Tenure: Freehold; area classed as ageing rural neighbourhood
Set in the heart of Charing, this Grade II listed Georgian terraced house blends substantial floor area (about 2,029 sq ft) with period charm. The property offers four double bedrooms, two bathrooms, two reception rooms with original fireplaces and exposed floorboards, a garage and a large terraced garden — useful for families or those seeking flexible living and home working space.

The house is comfortable as-is but the listed status means alterations will be restricted and any renovation work may require specialist conservation consent and higher-cost materials. Buyers should budget for ongoing maintenance typical of historic buildings; parts of the interior (worn floorboards, dated fittings) will benefit from updating to reach modern standards.

Location is a genuine strength: a small-town setting with fast broadband and excellent mobile signal, close to Charing station and local amenities including shops, cafes and well-regarded primary and secondary schools. No flood risk is recorded, and the property sits in a largely peaceful, ageing rural neighbourhood popular with downsizers and families who value village life.

This home will suit purchasers who prize period character and space and are prepared to manage the responsibilities of owning a listed building. It offers strong scope for sympathetic refurbishment to increase comfort and value, subject to the necessary consents.

Property Details

Image Descriptions

Floorplan Description

Rooms

Textual Property Features

Target Audience

AI Tags

Detected Visual Features

Nearby Schools

Nearest Bars And Restaurants

,,,,}

Nearest General Shops

,,}

Nearest Grocery shops

,,}

Nearest Supermarkets

,,}

Nearest Religious buildings

,,}

Nearest Medical buildings

,,,}

Nearest Leisure Facilities

,,,,}

Nearest Tourist attractions

,,}

Nearest Train stations

,,,,}

Nearest Bus stations and stops

,,,,}

Nearest Hotels

,,}

Tags

Local Market Stats

Similar Properties

Meta

High Res Images

Compatible Images

Low res Images

Thumbnails

Raw Images

High Res Floorplan Images

Compatible Floorplan Images

Low res Floorplan Images

FloorplanImages Thumbnail

Raw Floorplan Images