Two beds plus attic — affordable starter or buy-to-let near retail park.
Chain free freehold Victorian mid-terrace, about 814 sq ft
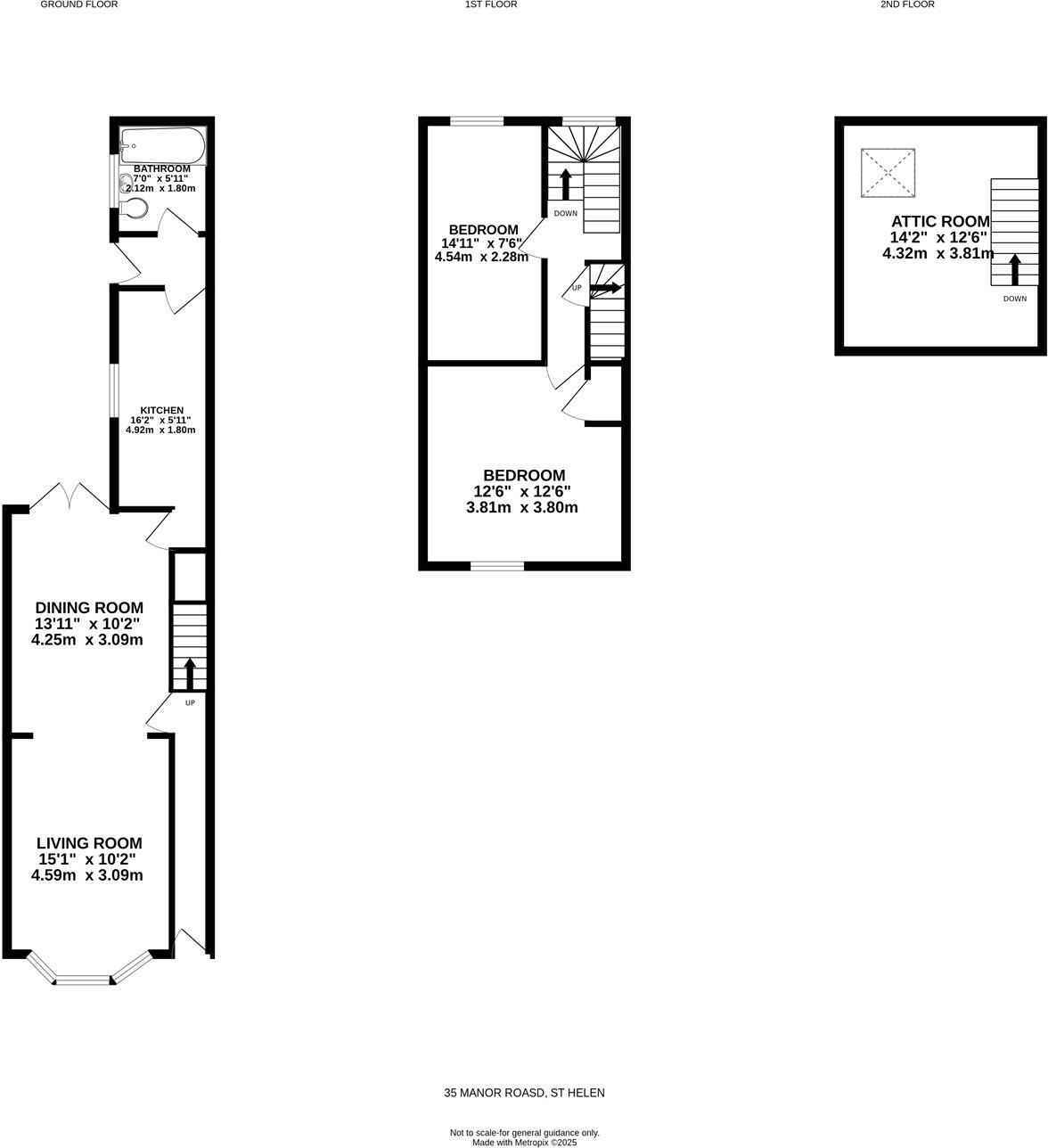
A compact Victorian mid-terrace offered chain-free and freehold, well suited to a first-time buyer or investor seeking steady rental demand. The house provides two double bedrooms plus a usable attic room, two reception rooms with period fireplaces and an open-plan feel from bay-fronted living to a rear yard. At around 814 sq ft, the layout is traditional and practical with a galley kitchen and a bathroom in good order.
Location is a key selling point: Manor Road sits a short walk from Tindale Retail Park and local amenities, with several Ofsted-rated good schools nearby. Heating is mains gas via a boiler and radiators, broadband and mobile signals are strong, and flood risk is very low.
Buyers should note material practicalities: the property sits in a very deprived area with a high local crime rate and small plot size. It lies within a historical mining area and a selective licensing zone. Some fixtures and finishes are dated and the glazing status is unclear, so a buyer seeking a turn-key modern home may want to budget for upgrades or a survey to confirm building condition.
Overall, this is a straightforward, affordable terrace that delivers period character and rental/entry-level purchase potential, with transparent risks for prospective purchasers to weigh.
3 bedroom house for sale in Manor Road, St. Helen Auckland, Bishop Auckland, DL14 — £75,000 • 3 bed • 1 bath • 777 ft²
3 bedroom terraced house for sale in Manor Road, St. Helen Auckland, Bishop Auckland, Durham, DL14 — £110,000 • 3 bed • 1 bath • 1274 ft²
2 bedroom terraced house for sale in Manor Road, West Auckland, DL14 — £69,950 • 2 bed • 2 bath • 672 ft²
3 bedroom terraced house for sale in Manor Road, St. Helen Auckland, Bishop Auckland, DL14 — £110,000 • 3 bed • 1 bath • 1378 ft²
2 bedroom terraced house for sale in Dilks Street, Bishop Auckland, DL14 — £52,950 • 2 bed • 1 bath • 775 ft²
2 bedroom terraced house for sale in Helena Terrace, Bishop Auckland, County Durham, DL14 — £85,000 • 2 bed • 1 bath • 736 ft²


































































