**Standout Features:**
- Spacious 3-bedroom Victorian terraced home.
- Convenient location near Tindale's retail park with multiple amenities.
- High ceilings, modern finishes, and maintained interiors.
- Enclosed rear yard with gated access for secure storage.
- Excellent public transport links and strong broadband speeds.
- Affordable council tax due to locality.
**Potential Concerns:**
- High crime rates in the area.
- Property located in a very deprived area.
---
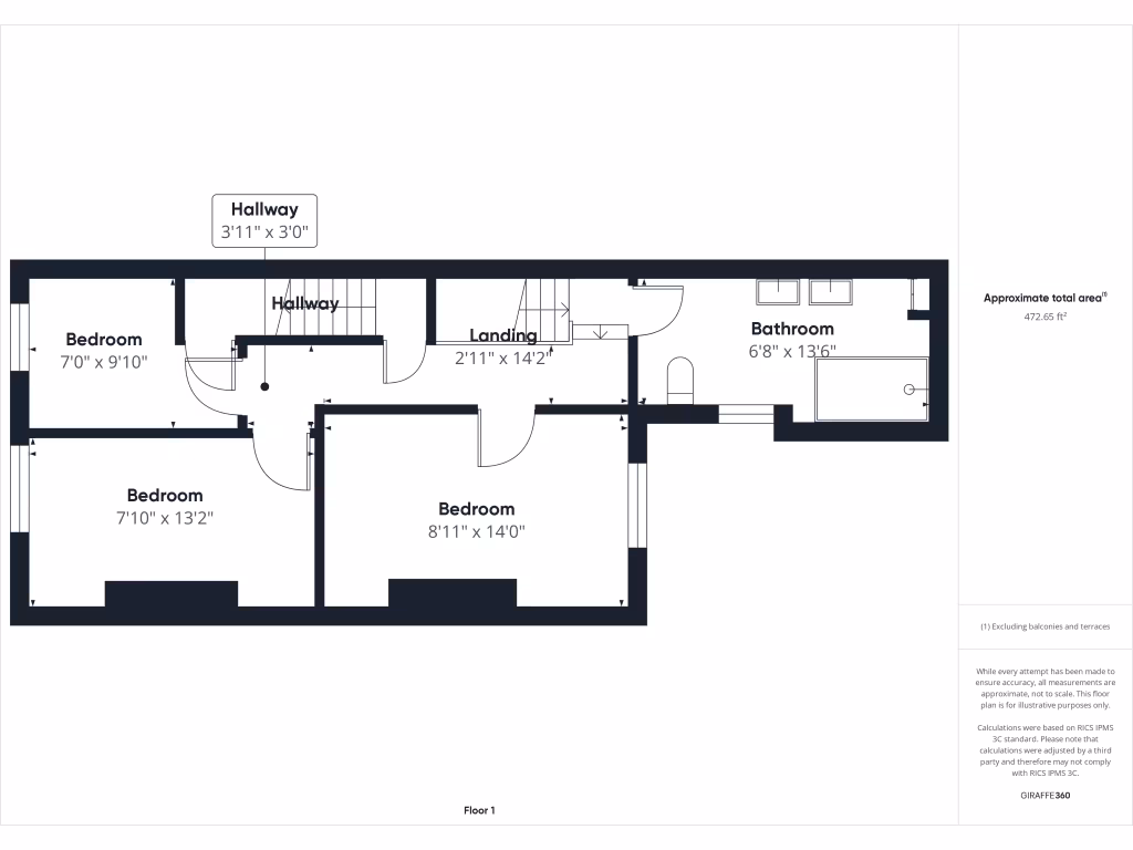
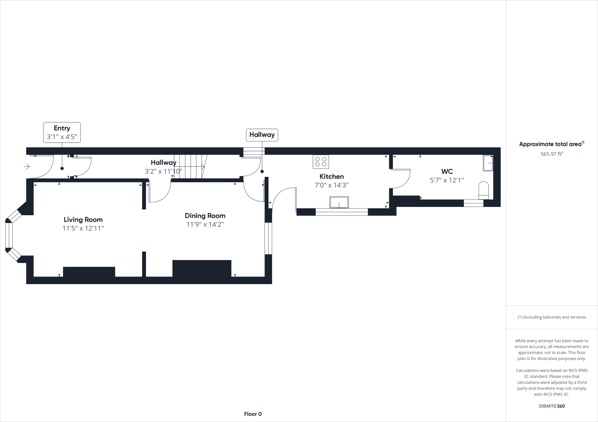
Discover the charm and convenience of this beautifully presented three-bedroom Victorian terraced home located on Manor Road in St. Helen Auckland. Spanning over 1,274 square feet, this character-filled property features high ceilings, spacious living areas, and a well-equipped kitchen seamlessly connecting to a utility room with a WC, ideal for everyday living. Enjoy the comfort of three generous bedrooms and an attic room, perfect for a home office or kids' play space.
With on-street parking and a private rear yard, this home offers a cozy outdoor escape, while its proximity to Tindale's expanding retail park, schools, and healthcare ensures a family-friendly environment. Public transport options make commuting to surrounding towns a breeze. Although the area reports high crime and deprivation levels, the property remains an excellent opportunity for families, first-time buyers, or investors seeking a well-located, low-maintenance home. Don’t miss out on a chance to secure your piece of this industrious community – schedule a viewing today!
3 bedroom terraced house for sale in Manor Road, St. Helen Auckland, Bishop Auckland, DL14 — £110,000 • 3 bed • 1 bath • 1378 ft²
3 bedroom house for sale in Manor Road, St. Helen Auckland, Bishop Auckland, DL14 — £75,000 • 3 bed • 1 bath • 777 ft²
3 bedroom terraced house for sale in Manor Road, St. Helen Auckland, Bishop Auckland, County Durham, DL14 — £95,000 • 3 bed • 1 bath
2 bedroom terraced house for sale in Manor Road, St. Helen Auckland, Bishop Auckland, DL14 — £87,000 • 2 bed • 1 bath • 814 ft²
3 bedroom town house for sale in Northbridge Park, St. Helen Auckland, DL14 — £129,950 • 3 bed • 2 bath • 991 ft²
2 bedroom semi-detached house for sale in Simpson Avenue, St. Helen Auckland, Bishop Auckland, Durham, DL14 — £95,000 • 2 bed • 1 bath • 736 ft²






















































































































