Well-presented family home with extended kitchen, south‑west garden and school links.
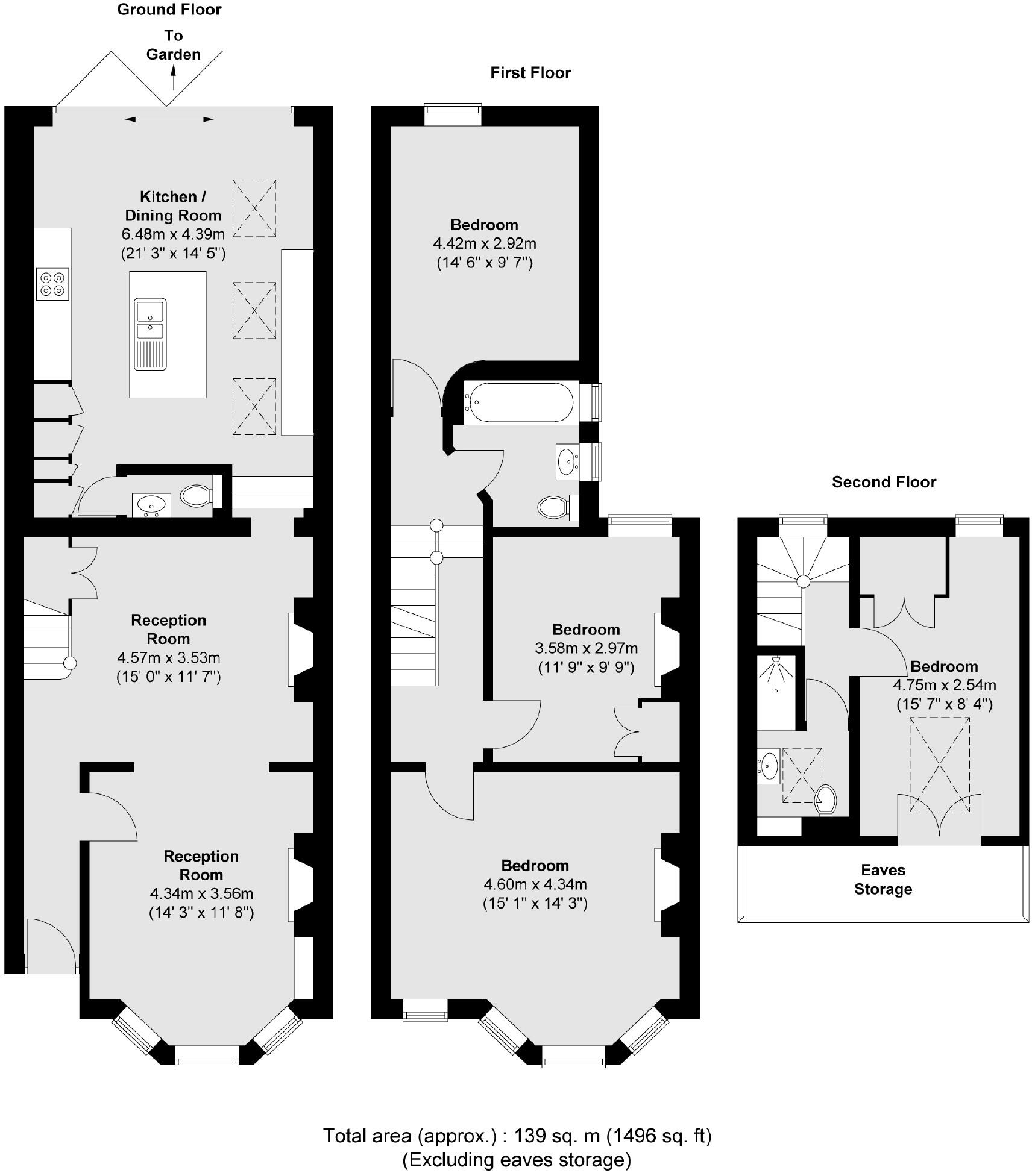
Four double bedrooms across three floors, including loft conversion bedroom
Bright open-plan kitchen/diner with skylights and garden access
South‑west facing rear garden; modest depth typical of terraces
Freehold tenure; mid-terrace Edwardian/Victorian red brick property
Energy Performance Rating D; solid brick walls assumed uninsulated
Potential to extend or loft-convert subject to planning permission (STPP)
Approx. 1,496 sq ft (139 sq m); well-presented, move-in ready condition
Excellent local schools, fast broadband, low crime, strong transport links
A spacious period family home on the Hyde Farm Estate, presented to a high standard with a bright extended kitchen/diner and generous reception rooms. The house offers four bedrooms across three floors, modern fittings, and high ceilings that retain Edwardian character while providing comfortable contemporary living.
Practical strengths include a south‑west facing garden, mains gas central heating with boiler and radiators, fast broadband and excellent mobile signal. The property is freehold, situated in a low‑crime, very affluent area with several outstanding primary and secondary schools within easy reach — well suited to families who want convenience and community.
Notable considerations: the Energy Performance rating is D and the building is of solid brick construction with no assumed wall insulation, which may mean higher running costs or future retrofit work. The plot is small and the garden modest in depth, and further extensions or loft conversions would require planning permission (STPP).
Overall this mid‑terrace Victorian house combines period charm with a modern extended layout and clear potential to personalise or improve. It suits households seeking a move‑in ready family home in Balham with scope to increase space or energy performance subject to permissions and budget.
4 bedroom terraced house for sale in Hydethorpe Road, London, SW12 — £1,350,000 • 4 bed • 2 bath • 1508 ft²
4 bedroom terraced house for sale in Hydethorpe Road, SW12 — £1,250,000 • 4 bed • 2 bath • 1394 ft²
4 bedroom terraced house for sale in Hydethorpe Road, Balham, SW12 — £1,475,000 • 4 bed • 2 bath • 1648 ft²
4 bedroom terraced house for sale in Hydethorpe Road, SW12 — £1,350,000 • 4 bed • 2 bath • 1631 ft²
5 bedroom terraced house for sale in Hydethorpe Road, SW12 — £1,650,000 • 5 bed • 2 bath • 1962 ft²
3 bedroom end of terrace house for sale in Hydethorpe Road, SW12 — £1,400,000 • 3 bed • 2 bath • 2088 ft²


















































