KA15 1HU - Land for sale in Plot of Land, Hessilhead, Beith, KA15 1HU,…

View on Property Piper

Land for sale in Plot of Land, Hessilhead, Beith, KA15 1HU, KA15

Summary - Plot of Land, Hessilhead, Beith, KA15 1HU KA15 1HU

1 bed 1 bath Land

**Standout Features:**
- Expansive land size of 2500 sqm.
- Full planning permission in place for a modern four-bedroom home (planning reference 18/00309/PP).
- Completed building warrant issued May 2023.
- Stunning countryside views and a serene location.
- Mains water, electricity, and fibre broadband available adjacent to the site.

**Potential Downsides:**
- Limited mobile coverage (average signal).
- Slow broadband speeds in the area.
- The locality is classified as very deprived.

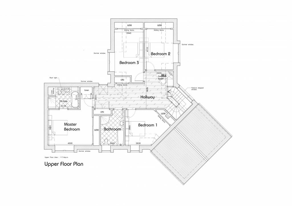
Discover the incredible potential of this generously-sized building plot, ideally situated in the desirable Hessilhead area, offering breathtaking countryside views. Measuring 2500 sqm, this uniquely positioned land comes with secured planning permission for a spacious modern four-bedroom home complete with a detached double garage. Envision your family's future in a striking 265 sqm layout featuring an open-plan design that promotes both comfort and entertaining.

While the location provides a tranquil retreat, keep in mind that mobile reception is limited, and broadband speed is notably slow. This unique opportunity is perfect for families looking to create a bespoke residence in a peaceful rural setting, with the chance to build a home that marries modern living with nature's embrace. Act now to secure your dream build in a location where serenity and stunning landscapes abound!

Property Details

Brochure Descriptions

Image Descriptions

Floorplan Description

Textual Property Features

Detected Visual Features

Nearest Bars And Restaurants

,,,,}

Nearest General Shops

,,}

Nearest Grocery shops

,,}

Nearest Supermarkets

,,}

Nearest Religious buildings

,,}

Nearest Medical buildings

,,,}

Nearest Airports

,}

Nearest Leisure Facilities

,,,,}

Nearest Tourist attractions

,,}

Nearest Train stations

,,,,}

Nearest Bus stations and stops

,,,,}

Nearest Hotels

,,}

Tags

Local Market Stats

Similar Properties

Meta

High Res Images

Compatible Images

Low res Images

Thumbnails

Raw Images

High Res Floorplan Images

Compatible Floorplan Images

Low res Floorplan Images

FloorplanImages Thumbnail

Raw Floorplan Images