Characterful two-bedroom mews with large garden and countryside views..
- Grade II listed two-bedroom mews with period character
- Generous enclosed rear garden with open countryside views
- Private parking for two cars plus double garage (converted)
- Efficient heat pump central heating and modern kitchens/bathrooms
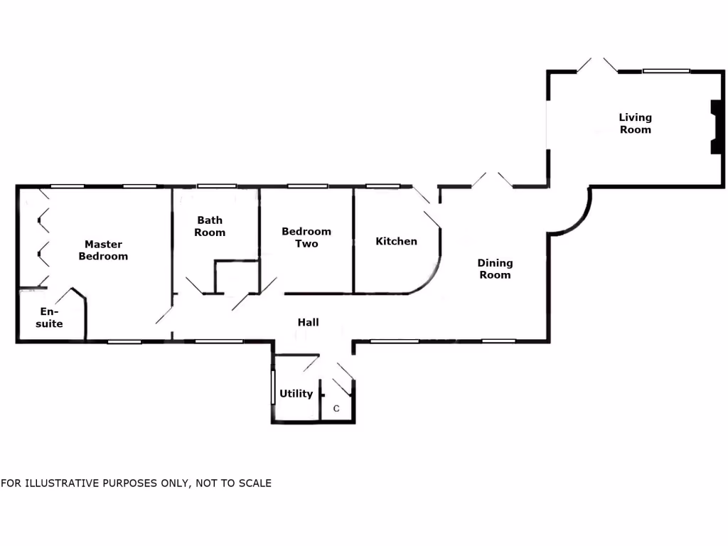
- Total internal area modest at approx. 754 sq ft
- Listed status restricts alterations; consent likely required
- Hamlet location: low crime, affluent, good local schools and links
A charming Grade II listed two-bedroom mews in Longdon Green, set within a small private estate of converted barns. The house blends traditional features — exposed beams, brick fireplace and pitched ceilings — with modern comforts including a fitted Bosch kitchen, stylish bathrooms and an efficient heat pump.
The property sits in a peaceful rural setting with attractive communal gardens, a fish pond approach and a generous enclosed rear garden that frames open countryside views — a rare combination of privacy and panorama for this type of conversion. Private parking for at least two cars is provided alongside a double garage currently configured as a golf simulator but retaining storage and scope for reversion.
Practical buyers will appreciate the low-crime, affluent hamlet location, good local schools and commuter links to Lichfield and the Midlands motorway network. Note this is a Grade II listed building: any alterations will require listed-building consent and could limit renovation options and increase costs. The property’s footprint is modest (approx. 754 sq ft), so buyers seeking large internal living spaces should view with that in mind.
Overall this home suits buyers who value period character, countryside views and a well-maintained garden, and who are comfortable living within the constraints and upkeep responsibilities of a listed building.
3 bedroom mews property for sale in Fisherwick Wood Lane, Fisherwick Wood, Lichfield, WS13 — £520,000 • 3 bed • 3 bath
2 bedroom barn conversion for sale in The Deer Yard, Hill Top, Longdon, Lichfield, WS15 — £675,000 • 2 bed • 1 bath • 862 ft²
3 bedroom barn conversion for sale in Hay Lane, Longdon Green, Rugeley, WS15 — £795,000 • 3 bed • 2 bath • 1792 ft²
3 bedroom manor house for sale in Coach House Mews, Admaston, Staffordshire, WS15 — £399,950 • 3 bed • 2 bath • 1294 ft²
2 bedroom barn conversion for sale in Mill Lane, Little Aston, WS9 — £499,000 • 2 bed • 2 bath • 1362 ft²
4 bedroom detached house for sale in Lysways Lane, Longdon Green - Timeless Period Cottage & No Upward Chain, WS15 — £975,000 • 4 bed • 3 bath • 2257 ft²






































































































































