Extended plot with double garage and low-maintenance gardens ideal for family living.
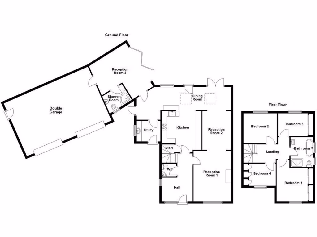
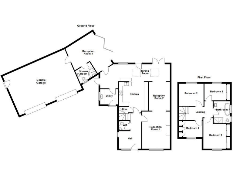
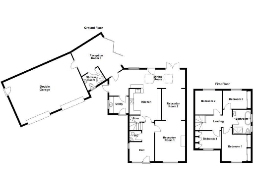
Four double bedrooms and two modern bathrooms
This extended four-bedroom detached house sits on a large corner plot in a desirable Rawtenstall suburb and has been updated throughout to create generous family living. An exceptional ground-floor extension opens into a bright dining/living corridor with Velux rooflights and bi-folding doors to a low-maintenance wraparound garden, making indoor-outdoor entertaining simple. The modern kitchen, utility and three reception rooms give flexibility for family life, home working or a playroom.
Practical strengths include a full-spec integral double garage with power, water and storage, ample off-road parking and a sizeable utility room. The rear garden is designed for easy upkeep — artificial lawns, decking, pergola, lighting, power and a hot tub — so outdoor space is usable year-round. The layout provides four good bedrooms and two contemporary bathrooms, suitable for a growing family.
Buyers should note a few material facts: the EPC rating is C and much of the double glazing dates from before 2002, so there is scope to improve energy performance. The property was built in the 1980s/90s rather than being a period home. Local school quality varies nearby, so families may want to review individual school reports when deciding.
Overall this is a spacious, well-presented family home on a large plot with strong entertaining and storage features, offered freehold and ready to move into. The combination of an extended ground floor, double garage and low-maintenance gardens will appeal to buyers wanting immediate space and long-term practicality.
4 bedroom detached house for sale in Horncliffe Close, Rawtenstall, Rossendale, BB4 — £389,950 • 4 bed • 2 bath • 1359 ft²
5 bedroom detached house for sale in Lee Brook Road, Rawtenstall, Rossendale, BB4 — £700,000 • 5 bed • 3 bath • 3000 ft²
4 bedroom semi-detached house for sale in Musbury View, Haslingden, Rossendale, BB4 — £320,000 • 4 bed • 2 bath • 1959 ft²
4 bedroom detached house for sale in Union Road, Rawtenstall, Rossendale, BB4 — £479,950 • 4 bed • 1 bath • 1281 ft²
4 bedroom semi-detached house for sale in Burnley Road, Rossendale, BB4 — £475,000 • 4 bed • 2 bath • 2110 ft²
4 bedroom detached house for sale in Ward Way, Rossendale, BB4 — £415,000 • 4 bed • 3 bath • 1012 ft²














































































































































































































