Energy-efficient three-bed with studio suite, garage and rooftop terrace for flexible living.
- New-build three-storey semi-detached freehold
- Separate studio with en-suite and rooftop terrace
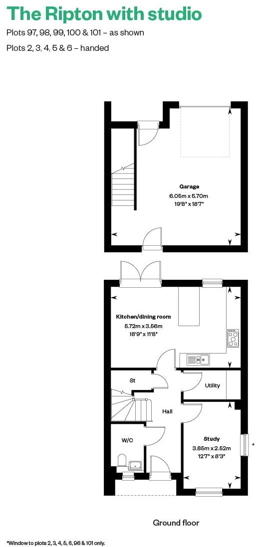
- Large open-plan kitchen/diner with garden access
- Air-source heat pump and EV charger fitted
- Garage parking and large plot
- Compact overall size (≈604 sq ft) — modest room sizes
- Optional upgrades and turf package (T&Cs apply)
- Local crime levels reported as high
A contemporary three-storey semi-detached house finished to a modern specification, offered as a new-build freehold close to Addenbrooke’s and the Cambridge Biomedical Campus. The layout includes a large open-plan kitchen/diner with breakfast bar and garden access, a ground-floor study, utility room and an independent studio with en-suite and private rooftop terrace above the garage — useful for guests, home working or rental income.
Energy-efficient features include an air-source heat pump and EV charger, supporting lower running costs and sustainable living. Upgrades such as Silestone worktops are available, and there is an optional flooring and turf package (T&Cs apply). The property benefits from a large plot and garage parking.
Be aware this is a compact three-bedroom home (approximately 604 sq ft overall) spread over three levels, so room sizes are modest despite the three bathrooms and flexible studio. Photos are from similar house types and measurements are guidance only; some finishes and layouts may vary on completion. The local area is very affluent and highly qualified, with excellent schools and excellent links for professionals, but recorded local crime levels are high — viewings should consider neighbourhood safety.
This home suits growing families and professionals who prioritise location, sustainability and flexible space over expansive internal square footage. It offers practical extras and low-maintenance outdoor space, while presenting potential for lettable studio income or a dedicated home office.
3 bedroom semi-detached house for sale in Kinloch Road, Cambridge, CB1 — £979,950 • 3 bed • 3 bath • 1655 ft²
3 bedroom semi-detached house for sale in Worts Causeway,
Cambridge,
CB1 8RJ, CB1 — £925,000 • 3 bed • 1 bath • 1835 ft²
4 bedroom semi-detached house for sale in Kinloch Road, Cambridge, CB1 — £849,950 • 4 bed • 1 bath • 365 ft²
3 bedroom end of terrace house for sale in Kinloch Road, Cambridge, CB1 — £750,000 • 3 bed • 2 bath • 1451 ft²
3 bedroom semi-detached house for sale in Netherhall Gardens, Worts Causeway, Cambridge, CB1 — £979,950 • 3 bed • 3 bath • 613 ft²
4 bedroom detached house for sale in Kinloch Road, Cambridge , Cambridge , CB1 — £879,950 • 4 bed • 2 bath • 1001 ft²


























































