Large adaptable home with studio, close to Cambridge biomedical employers.
5% deposit already paid on plot
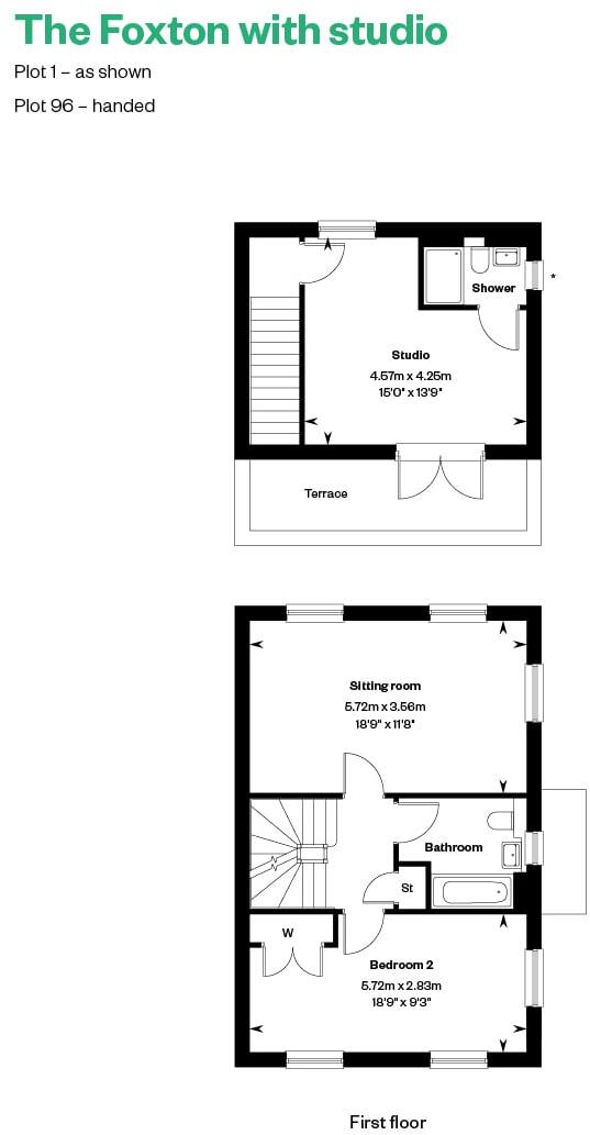
Large 1,655 sqft home plus 204 sqft studio over garage
Studio includes en-suite and private terrace
Energy-efficient: air source heat pump and EV charger
Full-width kitchen/diner opening to private garden
Ground-floor study; built-in wardrobes in two bedrooms
Garage parking; turf and flooring upgrade packages available
Local area records higher-than-average crime — consider cautiously
This unusually large three-storey semi-detached home provides flexible living across 1,655 sqft plus a self-contained 204 sqft studio over the garage. The layout suits families or professionals who need separate work or guest accommodation — the studio has its own en-suite and a private terrace, ideal for a home office or short-term let use.
New-build specification includes energy-efficient features such as an air source heat pump and an EV charger, helping reduce running costs. The ground-floor full-width kitchen/dining area opens to a private garden and there’s a dedicated study on the ground floor, while two bedrooms have built-in wardrobes and the principal bedroom benefits from an en-suite.
The location is strong for healthcare and science professionals: Addenbrooke’s and the Cambridge Biomedical Campus are within easy reach, with good schools and transport links nearby. The development targets sustainable living with biodiversity improvements and low-maintenance landscaping options.
Important practical points: the development’s marketing images are illustrative and internal measurements are provisional and may change during construction. The local area records a higher-than-average crime level, which should be considered alongside the property’s benefits.
3 bedroom semi-detached house for sale in Kinloch Road, Cambridge, Cambridge, CB1 — £925,000 • 3 bed • 3 bath • 604 ft²
3 bedroom semi-detached house for sale in Worts Causeway,
Cambridge,
CB1 8RJ, CB1 — £925,000 • 3 bed • 1 bath • 1835 ft²
3 bedroom semi-detached house for sale in Netherhall Gardens, Worts Causeway, Cambridge, CB1 — £979,950 • 3 bed • 3 bath • 613 ft²
2 bedroom end of terrace house for sale in Sparrowhawk Lane, Cambridge, CB1 — £584,950 • 2 bed • 1 bath • 894 ft²
4 bedroom detached house for sale in Kinloch Road, Cambridge, Cambridge, CB1 — £950,000 • 4 bed • 1 bath • 1714 ft²
2 bedroom terraced house for sale in Worts Causeway, Cambridge, CB1 — £579,950 • 2 bed • 1 bath • 894 ft²


































































